Woonopp.
352m2Perceel
858m2Slaapkamers
4Badkamers
3Zwembad
12 x 5 m352m2
4
3
1
1
1
Onafhankelijk
2020
H-1248-AMB
858m2
12 x 5 m
2
1
4
Zuiden
2.5 Km.
90 Km.
2 Km.
2 Km.
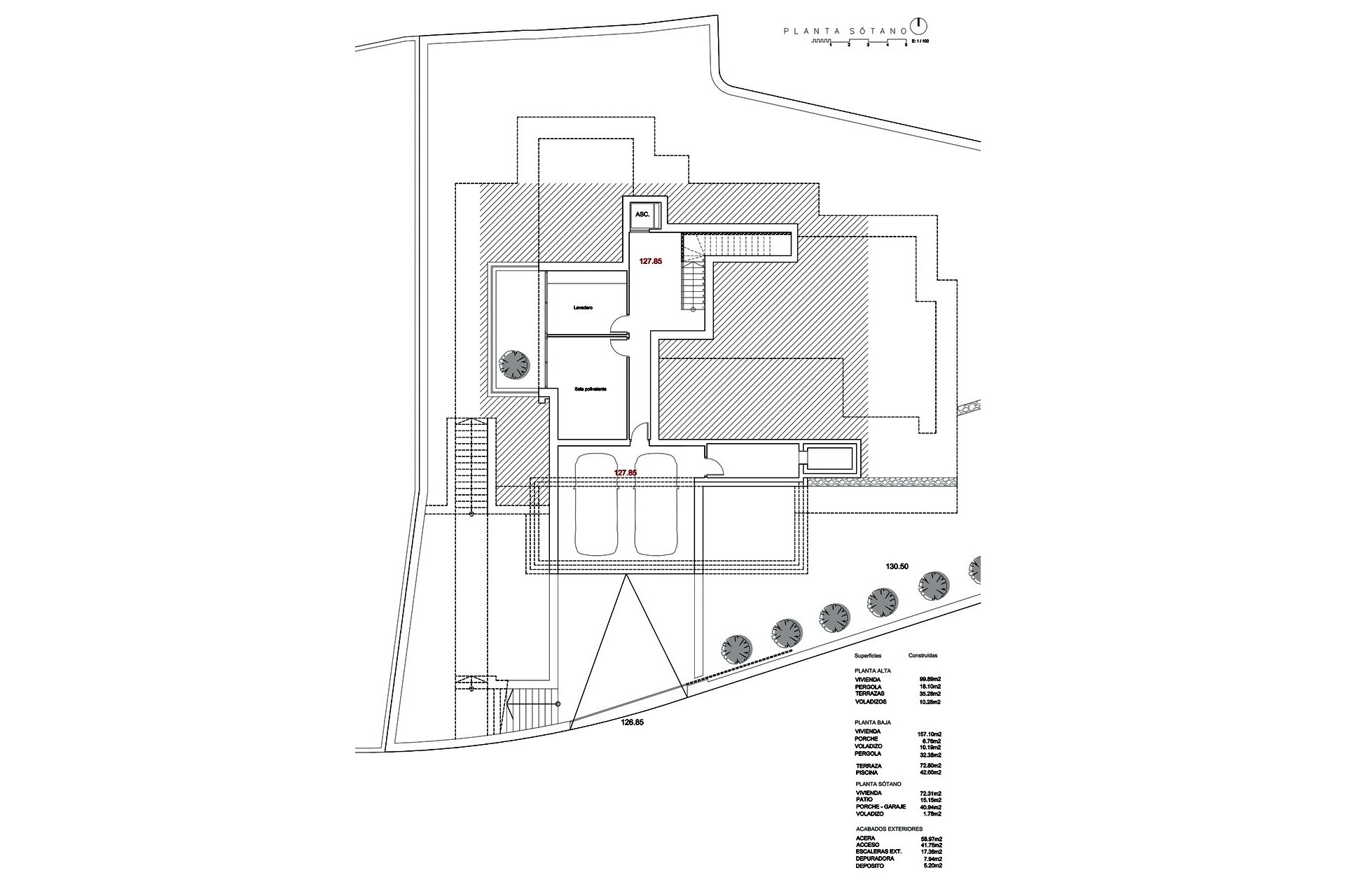
Deze moderne nieuwbouw villa zal in Moraira gebouwd worden volgens de hoogste specificaties. Met panoramisch uitzicht op zee zal deze 4 slaapkamers en 3 badkamers woning zeker een exclusieve en uitstekende ontwikkeling zijn. De woning biedt airconditioning, vloerverwarming, een interne lift, elektrische toegangspoorten, een overloopzwembad, een dubbele garage en een gemakkelijk te onderhouden tuin.
De dragende muren en buitenmuren worden gebouwd van 0,20 X 0,20 X 0,20 X 0,40m. Om de vloerconstructies te ondersteunen, worden alle muren bekroond met ringbalken, bestaande uit 0,20 x 0,20 m. betonnen goten gevuld met H-250 beton- en ijzeren wapening. In dit geval zal de basisstructuur bestaan uit een betonnen skelet van betonnen palen en vloeren.
Op de dakplaat wordt een metselwerk van 7 cm. dikke holle bakstenen gebouwd die de luchtkamer vormen. Hierop wordt een dek van holle terracotta platen en een cementmortelcompressiemortelvloer geplaatst en vochtbestendig gemaakt met een kunststof kern. Het plaatsen van vezel of isolatieplaat van polyurethaan. Het gehele dak wordt waterdicht gemaakt door de EPDM-rubberdekking.
Zowel de scheidingswanden als de binnenbladen van de spouwmuren worden gebouwd van 7 cm dikke dubbele holle baksteen. De bakstenen voor de buitenbladen zijn 11cm dik (totale wand met binnen- en buitenbladen inclusief spouw minimaal 25cm).
De spouw van de spouwmuren wordt gevuld met dubbele isolatieplaten van polyurethaan.
Alle buitenmuren, binnenplaats, terras en portieken en andere verticale gezichten die aan de buitenzijde worden blootgesteld, evenals de buitenplafonds, zullen met cementmortel of 'mono capa' worden gestuukt.
Aan de binnenkant hoogwaardige porseleinen tegels tot 50€/m2. Merk ́Saloni ́ zal worden gebruikt. Op verzoek van de eigenaar, in overleg met de bouwer over de prijs, kan het vloer- en wandtegelmateriaal worden gewijzigd.
De keuken wordt gekozen door de klant, keukenkasten, werkblad en apparatuur, prijs tot 20.000,-€.
Wat betreft de ramen: Elektrische rolluiken in de slaapkamers. Muggennetten in de slaapkamer worden geïnstalleerd. Voorinstallatie voor elektrische winkels in de woon-/eetkamer.
Het huis zal in een volledig schone staat worden opgeleverd na het verwijderen van alle afval, afval, afval, etc. en het achterlaten van al het glas, vloeren, etc. gewassen en vrij van verf, met andere woorden, in een optimale staat voor onmiddellijke bewoonbaarheid. Het perceel wordt ook vrijgemaakt van afval, puin en dergelijke.