Construidos
352m2Parcela
858m2Dormitorios
4Baños
3Piscina
12 x 5 m352m2
4
3
1
1
1
Independiente
2020
H-1248-AMB
858m2
12 x 5 m
2
1
4
Sur
2.5 Km.
90 Km.
2 Km.
2 Km.
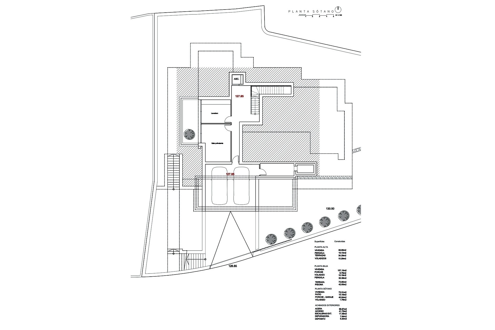
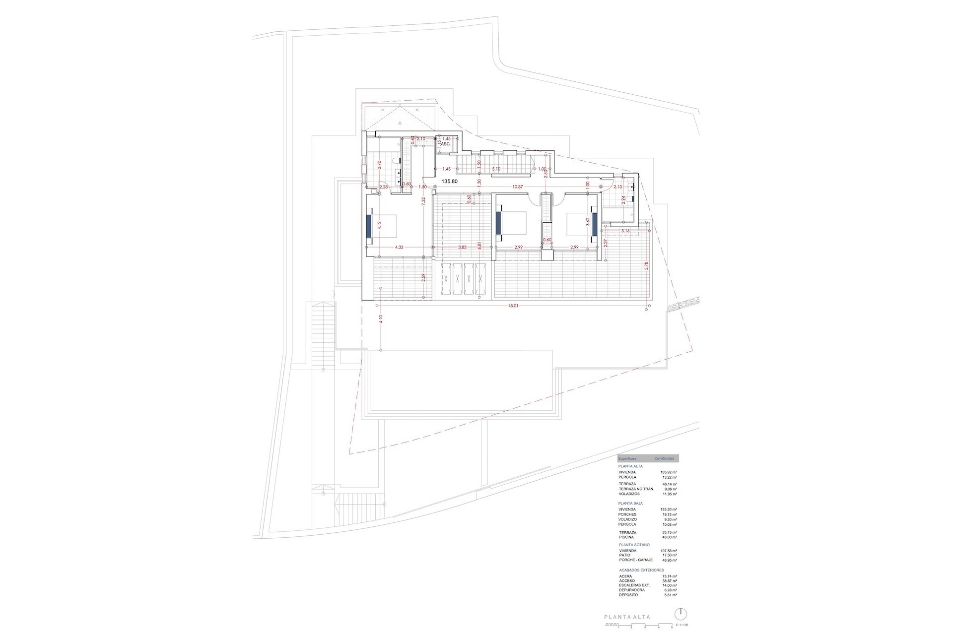
Esta moderna villa de nueva construcción se construirá en Moraira con las especificaciones más altas. Con vistas panorámicas al mar, esta propiedad de 4 dormitorios y 3 baños será sin duda un desarrollo exclusivo y excepcional. La propiedad ofrecerá aire acondicionado, calefacción por suelo radiante, ascensor interno, puertas de acceso eléctrico, una piscina infinita, un garaje doble y un jardín fácil de mantener.
Los muros de carga y los muros exteriores serán de 0,20 x 0,20 x 0,40 m. Bloques de mampostería de hormigón (clasificados como estructurales o de carga) Para soportar las estructuras del suelo, todas las paredes estarán coronadas por vigas de anillo. En este caso, la estructura básica será de esqueleto de hormigón de postes y suelos de hormigón.
En la losa de cubierta se construirá una cámara de aire de encofrado de ladrillo hueco de 7 cm. de espesor. Sobre ella se colocará un tablero de losas huecas de terracota y mortero de cemento de compresión, impermeabilizado con un núcleo de plástico. Colocación de fibra o placa aislante de poliuretano. Todo el techo será impermeabilizado gracias a la cubierta de caucho EPDM.
Tanto los tabiques como las hojas interiores de los muros huecos serán de ladrillo hueco doble de 7 cm de espesor. Los ladrillos para las hojas exteriores tienen un grosor de 11 cm (pared total con hojas interiores y exteriores con un hueco mínimo de 25 cm).
La cavidad de las paredes de la cavidad se rellenará con placas de poliuretano de doble aislamiento.
Todos los muros exteriores, muros de patio, terraza y porche y otras caras verticales expuestas al exterior, así como los techos exteriores, se revestirán con mortero de cemento o "mono capa".
En su interior porcelánico de alta calidad hasta 50€/m2. Se utilizará la marca ́Saloni ́ A petición del propietario y de acuerdo con el constructor en cuanto al precio, se podrán modificar los materiales del pavimento y alicatado.
La cocina será elegida por el cliente, armarios de cocina, encimera y electrodomésticos, precio hasta 20.000.-€.
En cuanto a las ventanas: Persianas eléctricas en dormitorios. Se instalarán mosquiteras en el dormitorio. Preinstalación para comercios eléctricos en salón/comedor.
La casa se entregará completamente limpia después de haber retirado todos los residuos, escombros, escombros, basuras, etc. y de haber dejado todos los cristales, suelos, etc. lavados y libres de pintura, es decir, en óptimas condiciones para su habitabilidad inmediata. También se limpiará la parcela de residuos, escombros, etc. a la mano.