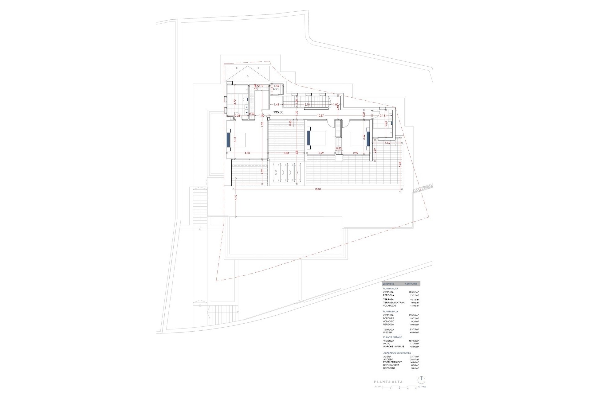
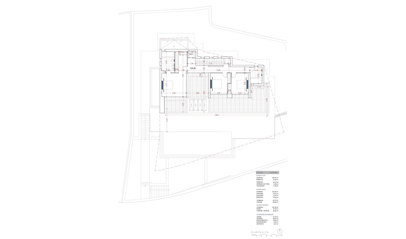
352m2
4
3
1
1
1
Independent
2020
H-1248-AMB
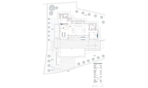
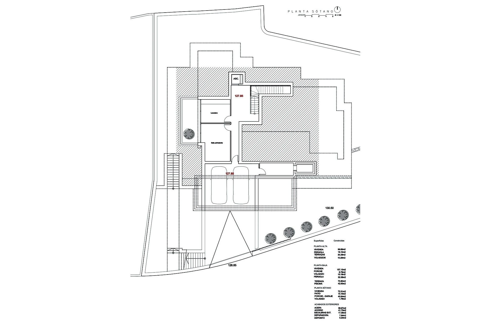
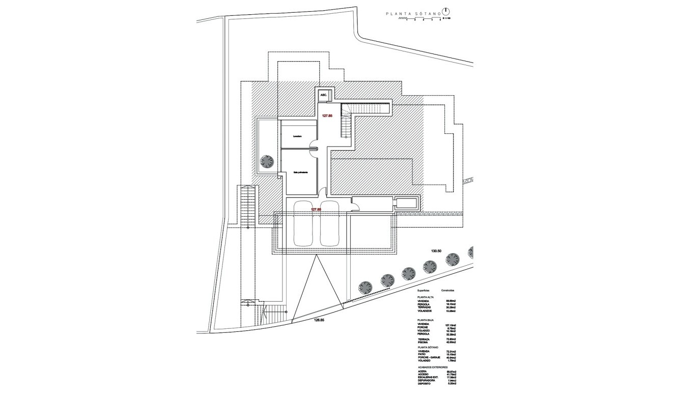
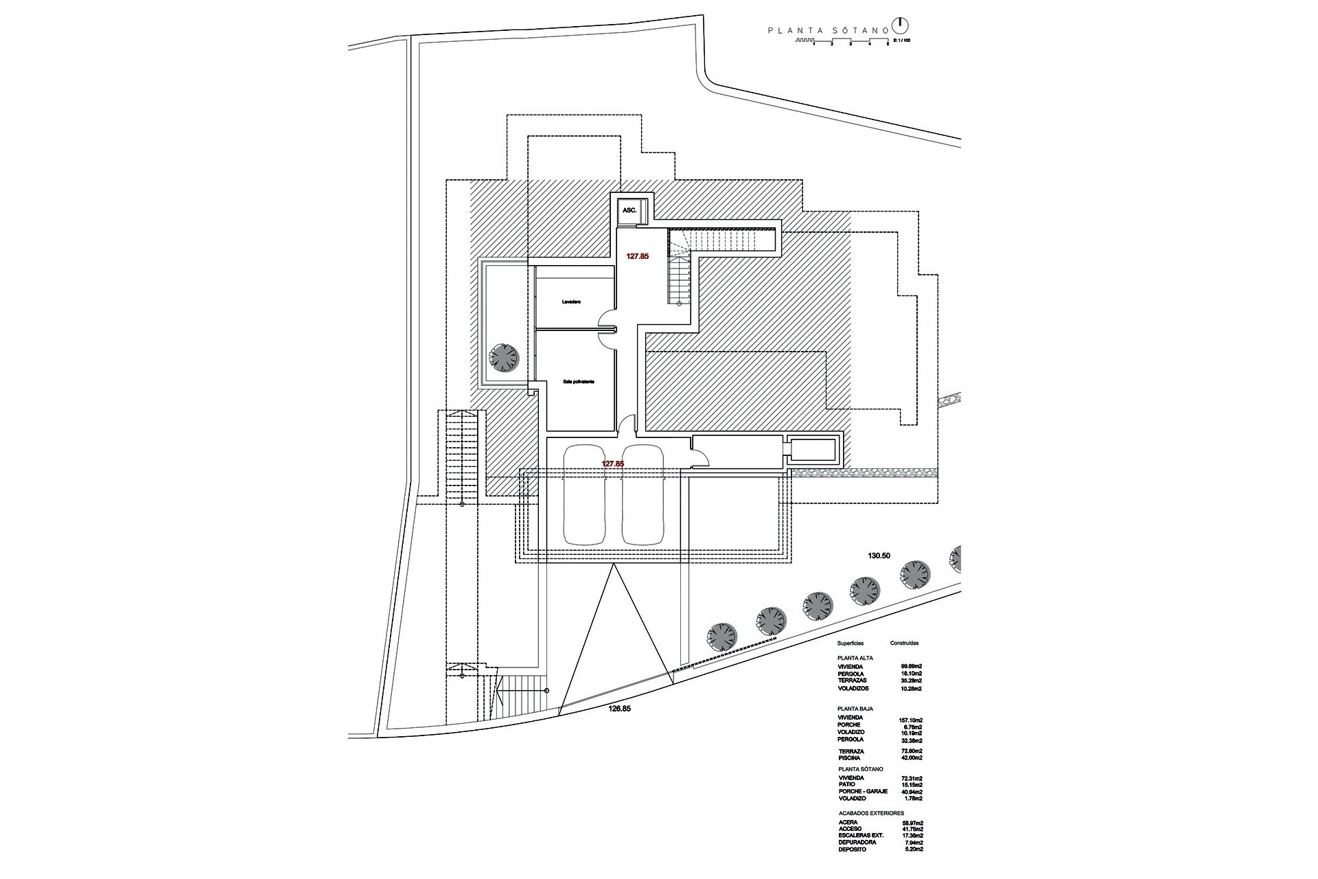
858m2
12 x 5 m
2
1m2
4
South
2.5 Km.
90 Km.
2 Km.
2 Km.
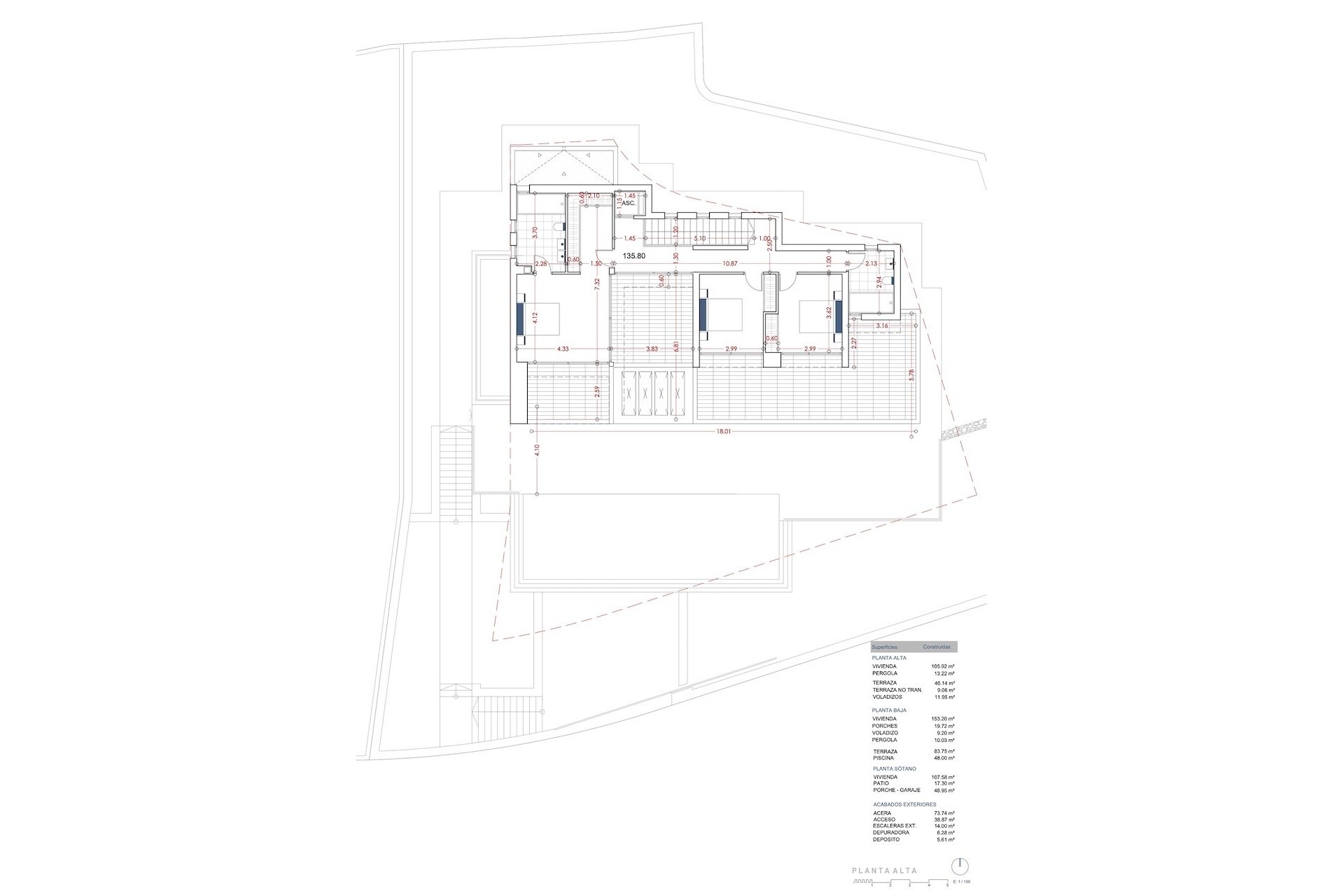
This modern new build villa will be build in Moraira to the highest specs. With panoramic sea views this 4 bedrooms and 3 bathrooms property will for sure be an exclusive and outstanding development. The property will offer air-conditioning throughout, underfloor heating, an internal lift, electrical access gates, an infinity pool a double garage and a easy to maintain garden.
The load-bearing walls and external walls will be built of 0.20 X 0.20 X 0.40m. Concrete masonry blocks (classified as structural or load-bearing blocks).To support the floor structures, all walls will be crowned by ring beams Comprising 0.20 x 0.20 m. concrete channels filled with H-250 concrete and iron reinforcement. In this case the basic structure will be made of concrete skeleton made of concrete poles and floors.
On the roofs slab, brickwork forming air chamber will be built of 7 cm. thick hollow bricks. A deck made of hollow terracotta slabs and cement mortar compression screed will be placed on this and damp-proofed with a plastic core. Placing of fibre or insulating plate of polyurethane. The entire roof will be water proofed due to EPDM rubber cover.
Both the partition walls and the inner leaves of the cavity walls will be built of 7cm thick double hollow brick. The bricks for the outside leaves are 11cm thick (total wall with inside and outside leaves including cavity 25cm minimum)
The cavity of the cavity walls will be filled with double insulating plates of polyurethane.
All exterior walls, courtyard, terrace and porch walls and other vertical faces exposed to the exterior, as well as exterior ceilings, will be rendered with cement mortar or ‘mono capa’.
On the inside high quality porcelain tiles up to 50€/m2. Brand ́Saloni ́ will be used.At the owner’s request, by agreement with the builder concerning the price, the floor and wall tiling materials could be changed.
The kitchen will be chosen by the client, kitchen cabinets, worktop and appliances, price up to 20.000.-€.
Regarding the windows: Electric blinds in bedrooms. Mosquito nets in the bedroom will be installed. Pre-installation for electric stores in living/dining area.
The house will be handed over in a completely clean state after removing all waste, rubble, rubbish, etc. and leaving all glass, floors etc. washed and free of paint, in other words, in an optimum condition for immediate habitability. The plot will also be cleared of waste, rubble, etc. at hand over.