€1.265.000
Wohnfl.
352m2Grundst.
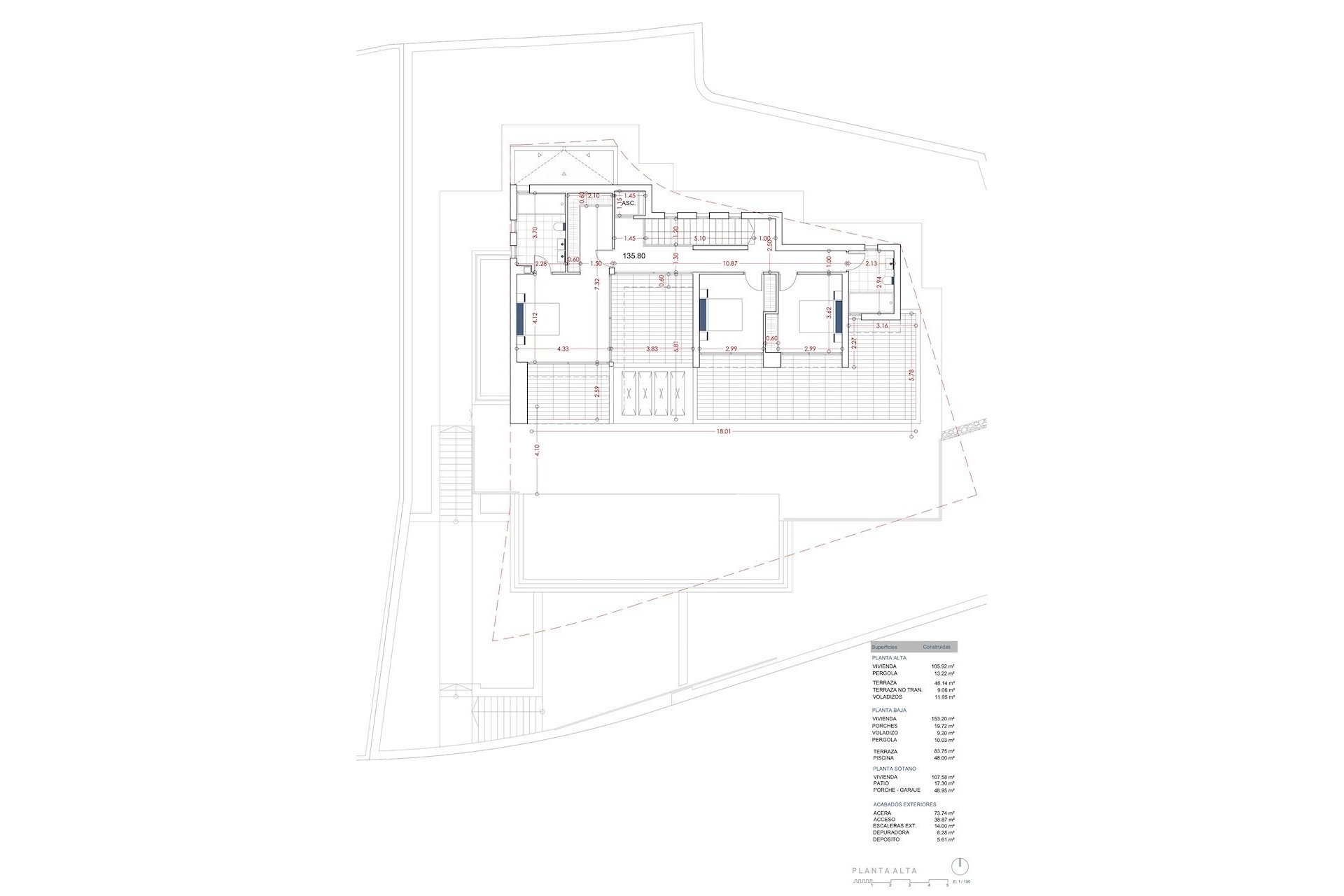
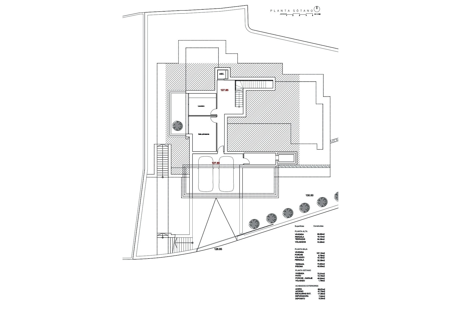
858m2Schlafzimmer
4Badezimmer
3Schwimmbad
12 x 5 m352m2
4
3
1
1
1
Geschlossen
2020
H-1248-AMB
858m2
12 x 5 m
2
1
4
Süd
2.5 Km.
90 Km.
2 Km.
2 Km.
Diese moderne Neubau-Villa wird in Moraira nach höchsten Maßstäben gebaut. Mit Panoramablick auf das Meer wird diese Immobilie mit 4 Schlafzimmern und 3 Badezimmern sicherlich eine exklusive und herausragende Entwicklung sein. Die Immobilie wird über eine Klimaanlage, Fußbodenheizung, einen internen Aufzug, elektrische Zugangstore, einen Infinity-Pool, eine Doppelgarage und einen pflegeleichten Garten verfügen.
Die tragenden Wände und Außenwände werden aus 0,20 x 0,20 x 0,20 x 0,40 m gebaut. Betonmauersteine (klassifiziert als Bau- oder Tragsteine) Zur Unterstützung der Deckenkonstruktionen werden alle Wände mit Ringbalken bekrönt. 0,20 x 0,20 m. Betonkanäle mit H-250 Beton- und Eisenbewehrung gefüllt. In diesem Fall wird die Grundkonstruktion aus einem Betonskelett aus Betonmasten und -böden hergestellt.
Auf der Dachplatte wird eine Luftkammer aus 7 cm dicken Hohlziegeln aus Mauerwerk gebildet. Darauf wird ein Deck aus Terrakotta-Hohldecken und Zementmörtel-Kompressionsbett verlegt und mit einem Kunststoffkern feuchtigkeitsdicht abgedichtet. Platzierung von Fasern oder Isolierplatten aus Polyurethan. Das gesamte Dach wird durch eine EPDM-Gummierung wasserdicht gemacht.
Sowohl die Trennwände als auch die Innenflügel der Hohlwände werden aus 7 cm dicken Doppelhohlziegeln gebaut. Die Ziegel für die Außenblätter sind 11 cm dick (Gesamtwand mit Innen- und Außenblättern einschließlich Hohlraum mindestens 25 cm).
Der Hohlraum der Hohlraumwände wird mit doppelten Isolierplatten aus Polyurethan gefüllt.
Alle Außenwände, Innenhof-, Terrassen- und Verandawände und andere vertikale Flächen, die der Außenseite ausgesetzt sind, sowie die Außendecken werden mit Zementmörtel oder "mono capa" verputzt.
Auf der Innenseite hochwertige Porzellanfliesen bis zu 50€/m2. Auf Wunsch des Bauherrn, nach Absprache mit dem Bauherrn über den Preis, können die Boden- und Wandfliesen geändert werden.
Die Küche wird vom Kunden selbst gewählt, Küchenschränke, Arbeitsplatte und Geräte, Preis bis zu 20.000.-€.
Was die Fenster betrifft: Elektrische Jalousien in den Schlafzimmern. Moskitonetze im Schlafzimmer werden installiert. Vorinstallation für Elektrogeschäfte im Wohn-/Essbereich.
Das Haus wird in einem völlig sauberen Zustand übergeben, nachdem alle Abfälle, Schutt, Müll usw. entfernt wurden und alle Gläser, Böden usw. gewaschen und frei von Farbe sind, d.h. in einem optimalen Zustand für eine sofortige Bewohnbarkeit. Das Grundstück wird auch von Abfall, Schutt usw. befreit, die bei der Übergabe anfallen.