Construit
352m2Terrain
858m2Chambres
4Salles de bain
3Piscine
12 x 5 m352m2
4
3
1
1
1
Indépendant
2020
H-1248-AMB
858m2
12 x 5 m
2
1
4
Sud
2.5 Km.
90 Km.
2 Km.
2 Km.
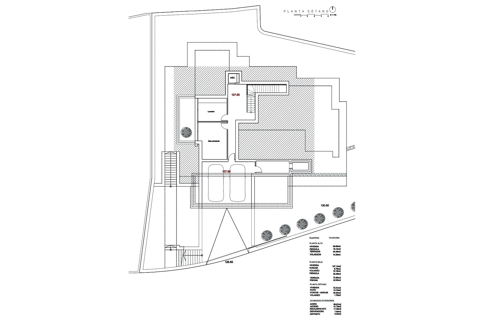
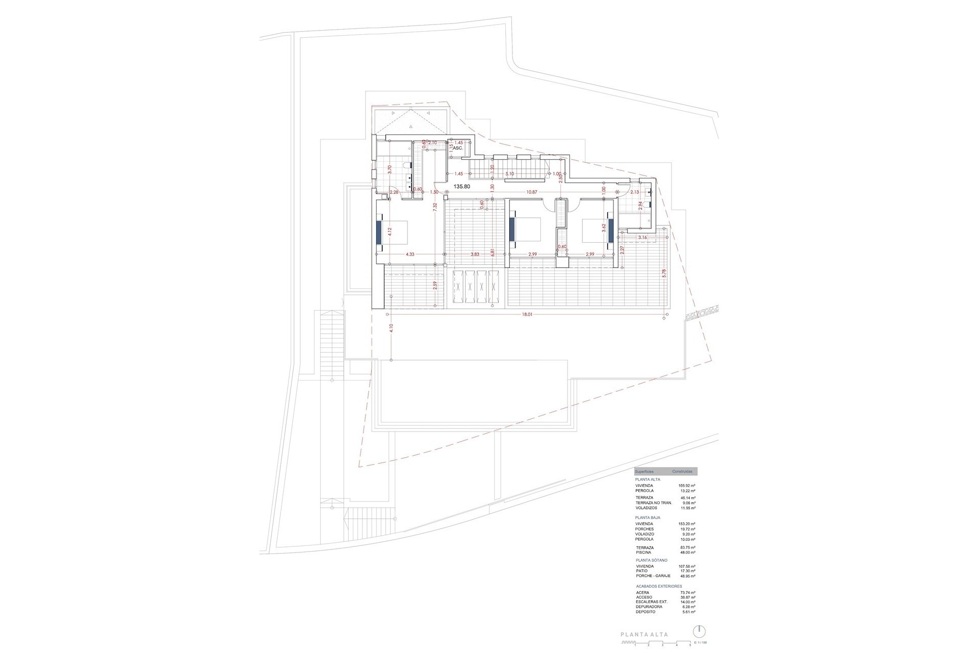
Cette villa moderne de construction neuve sera construite à Moraira selon les spécifications les plus strictes. Avec vue panoramique sur la mer, cette propriété de 4 chambres et 3 salles de bains sera à coup sûr un bien exclusif et exceptionnel. La villa offrira climatisation, chauffage par le sol, ascenseur interne, portes d'accès électriques, piscine à débordement, garage double et jardin facile à entretenir.
Les murs porteurs et les murs extérieurs seront de dimensions 0,20 X 0,20 X 0,20 X 0,40m avec blocs de maçonnerie en béton (classés comme blocs structuraux ou porteurs). Pour supporter les structures du plancher, tous les murs seront couronnés par des soubassements en béton de 0,20 x 0,20 m., remplis de béton H-250 et de ferraillage. Dans ce cas, la structure de base sera constituée d'une ossature en béton faite de poteaux et de planchers en béton.
Sur la dalle de toiture, la maçonnerie formant la chambre à air sera construite en briques creuses de 7 cm. d'épaisseur. Un tablier composé de dalles creuses en terre cuite et d'une chape de compression en mortier de ciment y sera posé et imperméabilisé à l'humidité avec un noyau en plastique. Pose de fibre ou plaque isolante en polyuréthane. La toiture entière sera imperméable à l'eau grâce à un revêtement en caoutchouc EPDM.
Les cloisons et les vantaux intérieurs des murs creux seront construits en briques creuses doubles de 7 cm d'épaisseur. Les briques pour les vantaux extérieurs ont une épaisseur de 11 cm (mur total avec vantaux intérieurs et extérieurs, cavité de 25 cm minimum).
La cavité des murs creux sera remplie avec des plaques de polyuréthane à double isolation.
Tous les murs extérieurs, les murs de la cour, de la terrasse et du porche et les autres faces verticales exposées à l'extérieur, ainsi que les plafonds extérieurs, seront enduits de mortier de ciment ou " mono capa ".
A l'intérieur, se trouveront des carreaux en porcelaine de haute qualité jusqu'à 50€/m2 de la marque ́Saloni ́. Sur demande du propriétaire, en accord avec le constructeur concernant le prix, les matériaux du sol et du carrelage pourront être changés.
La cuisine sera choisie par le client, notamment armoires de cuisine, plan de travail et électroménagers, prix allant jusqu'à 20.000.-€.
En ce qui concerne les fenêtres se trouveront des stores électriques dans les chambres. Des moustiquaires seront installées dans la chambre à coucher. Pré-installation pour les magasins électriques dans le salon/salle à manger.
La maison sera remise dans un état de propreté totale après enlèvement de tous les déchets, gravats, ordures, etc. et après avoir laissé le verre, les sols, etc. lavés et débarrassés de toute peinture, en d'autres termes, dans un état optimal pour un emménagement immédiat. La parcelle sera également débarrassée des déchets, gravats, etc. à la main.