Luxe nieuwbouw villa te koop in Sierra Altea. 4 slaapkamers, zwembad, lift, dakterras en grote garage. Start bouw 2026. Nabij golfbaan, centrum en strand.
Deze nieuwbouw villa te koop in Altea wordt gerealiseerd in het exclusieve Sierra Altea, op slechts 650 meter van de golfbaan. De ligging is rustig, terwijl het centrum van Altea en het strand binnen tien autominuten bereikbaar zijn. De constructie van de villa zal zeer waarschijnlijk in de loop van 2026 starten.
Beschrijving
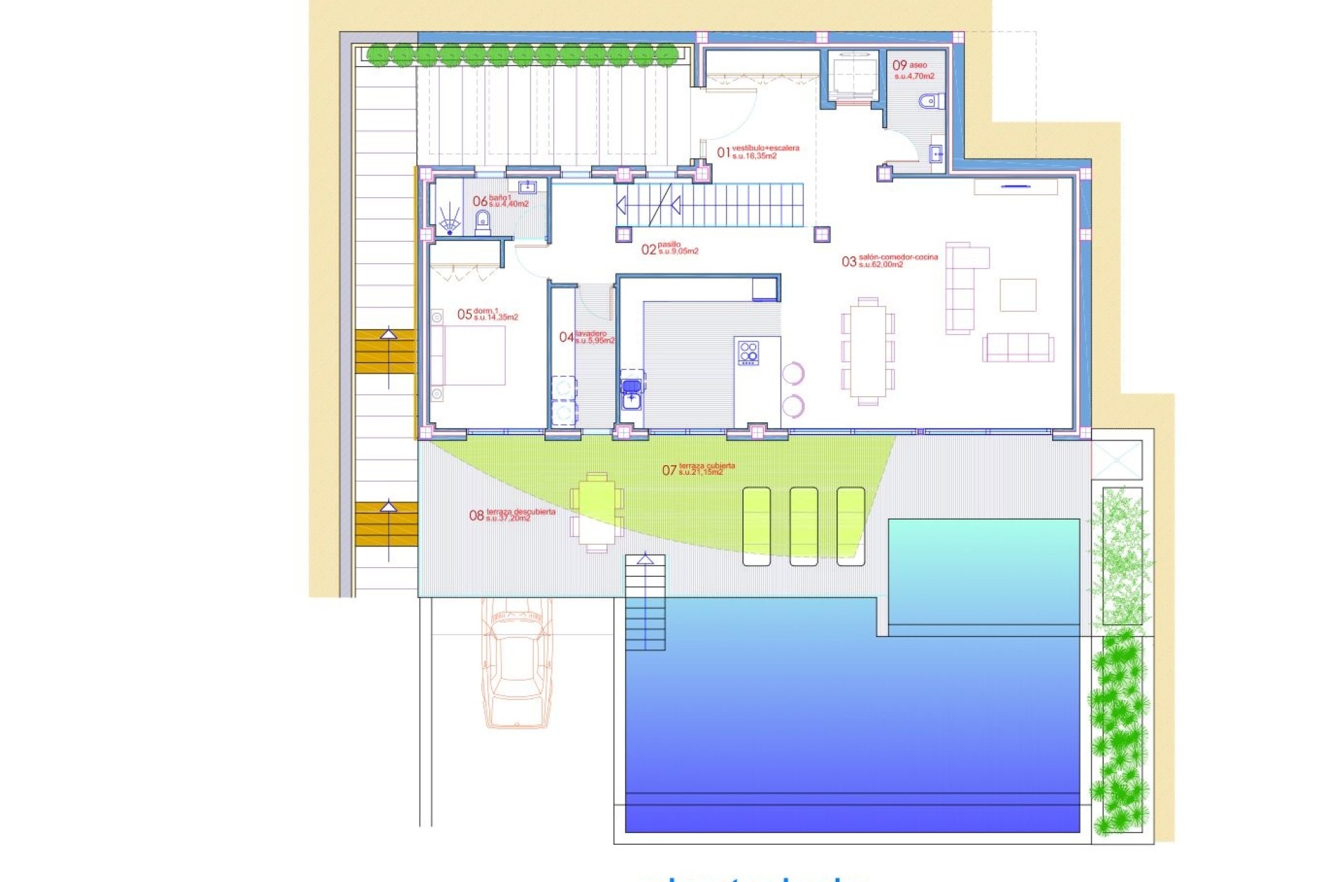
Op de begane grond bevindt zich een royale woon-eetkamer met een grote open keuken, voorzien van een kookeiland met ontbijtbar. Op deze verdieping liggen tevens een slaapkamer met en-suite badkamer, een wasruimte en een gastentoilet. Vanuit de woonkamer, keuken en slaapkamer is er directe toegang tot het terras met een ruim zwembad. Een deel van het terras is overdekt.
Met de lift of binnentrap bereikte u de bovenverdieping. Hier bevinden zich twee slaapkamers met en-suite badkamers en inbouwkasten. De master bedroom beschikt over een aparte kleedruimte en een badkamer met zowel douche als ligbad. Alle slaapkamers hebben toegang tot het terras.
Een trap leidt verder naar het dakterras, dat kan worden ingericht als extra buitenruimte. In de onderbouw bevindt zich een garage van circa 136 m² en een extra ruimte van bijna 40 m², geschikt voor opslag of multifunctioneel gebruik. De villa wordt uitgevoerd met moderne installaties, hoogwaardige materialen en een mediterrane tuin.
Bijzonderheden
Nieuwbouw villa in AlteaLocatie: Sierra Altea4 slaapkamers met en-suite badkamersLift aanwezigZeezichtZwembad en meerdere terrassenDakterrasGarage ca. 136 m² + extra ruimteStart bouw gepland in 2026Waarom deze villa bezichtigen
Rustige ligging nabij golfbaanKorte afstand tot centrum en strandOp en top luxeEen toekomstgerichte villa op een strategische locatie in Altea, ontworpen voor comfortabel wonen met ruimte en privacy.
Meer weten over deze zeezicht villa te koop in Sierra Altea? Laat u informeren door één van onze medewerkers.