Villa de lujo de nueva construcción en venta en Sierra Altea. 4 dormitorios, piscina, ascensor, azotea y amplio garaje. Inicio de la construcción en 2026. Cerca del campo de golf, el centro y la playa.
Esta villa de nueva construcción en venta en Altea se construirá en la exclusiva Sierra Altea, a solo 650 metros del campo de golf. La ubicación es tranquila, mientras que el centro de Altea y la playa se encuentran a diez minutos en coche. Es muy probable que la construcción de la villa comience a lo largo de 2026.
Descripción
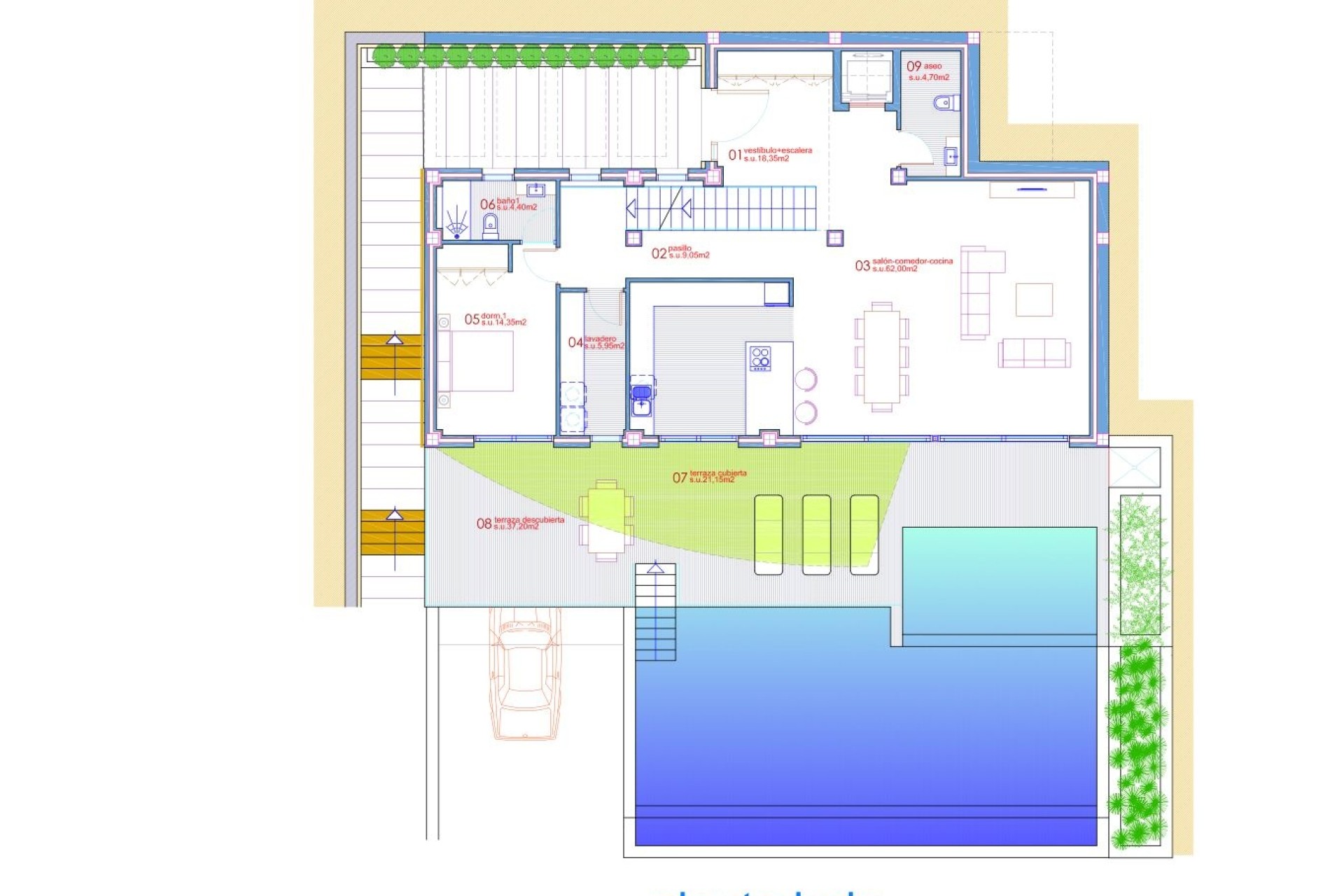
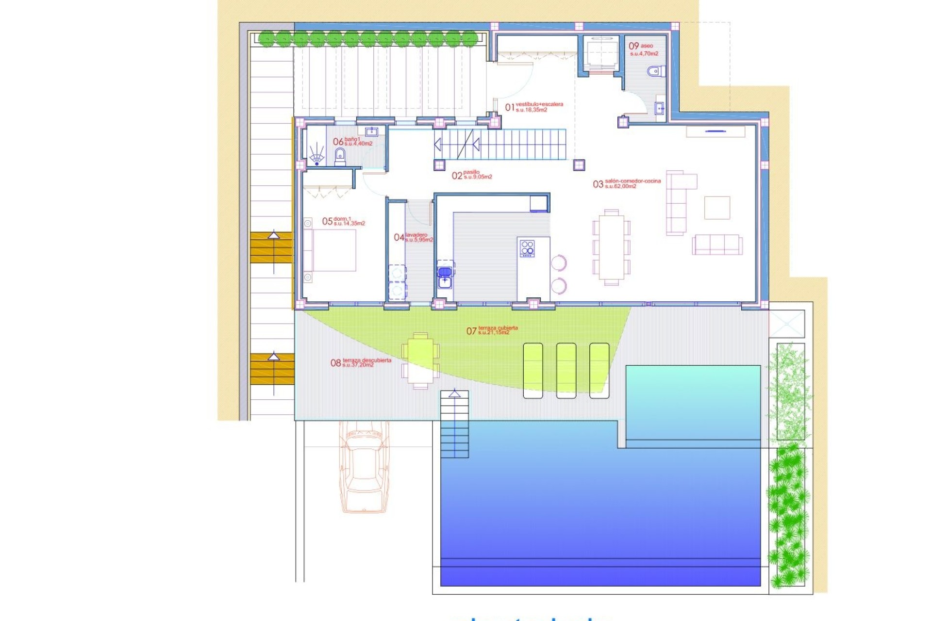
En la planta baja hay un amplio salón-comedor con una gran cocina abierta, equipada con una isla de cocina con barra de desayuno. En esta planta también hay un dormitorio con baño en suite, un lavadero y un aseo de invitados. Desde el salón, la cocina y el dormitorio hay acceso directo a la terraza con una amplia piscina. Parte de la terraza está cubierta.
Se puede acceder a la planta superior mediante el ascensor o la escalera interior. Aquí hay dos dormitorios con baños en suite y armarios empotrados. El dormitorio principal tiene un vestidor independiente y un baño con ducha y bañera. Todos los dormitorios tienen acceso a la terraza.
Una escalera conduce a la azotea, que puede acondicionarse como espacio exterior adicional. En el sótano hay un garaje de aproximadamente 136 m² y un espacio adicional de casi 40 m², adecuado para almacenamiento o uso multifuncional. La villa cuenta con instalaciones modernas, materiales de alta calidad y un jardín mediterráneo.
Características
Villa de nueva construcción en AlteaUbicación: Sierra Altea4 dormitorios con baños en suiteAscensorVistas al marPiscina y varias terrazasAzoteaGaraje de aproximadamente 136 m² + espacio adicionalInicio de la construcción previsto para 2026Por qué visitar esta villa
Ubicación tranquila cerca del campo de golfA poca distancia del centro y la playaLujo en su máxima expresiónUna villa con visión de futuro en una ubicación estratégica en Altea, diseñada para una vida cómoda con espacio y privacidad.
¿Quiere saber más sobre esta villa con vistas al mar en venta en Sierra Altea? Deje que uno de nuestros agentes le informe.