Villa de luxe neuve à vendre à Sierra Altea. 4 chambres, piscine, ascenseur, terrasse sur le toit et grand garage. Début de la construction en 2026. Proche du terrain de golf, du centre-ville et de la plage.
Cette villa neuve à vendre à Altea sera construite dans le quartier exclusif de Sierra Altea, à seulement 650 mètres du terrain de golf. L'emplacement est calme, tandis que le centre d'Altea et la plage sont accessibles en moins de dix minutes en voiture. La construction de la villa devrait commencer dans le courant de l'année 2026.
Description
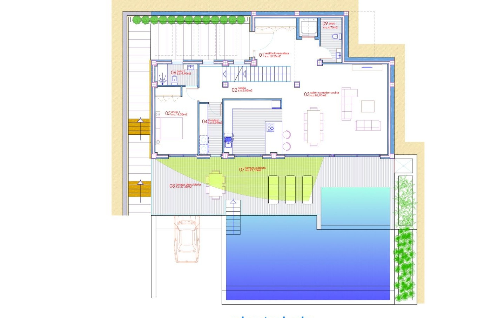
Au rez-de-chaussée se trouve un spacieux salon-salle à manger avec une grande cuisine ouverte, équipée d'un îlot central avec un bar pour le petit-déjeuner. À cet étage se trouvent également une chambre avec salle de bains attenante, une buanderie et des toilettes pour invités. Le salon, la cuisine et la chambre donnent directement accès à la terrasse avec une grande piscine. Une partie de la terrasse est couverte.
L'ascenseur ou l'escalier intérieur vous permet d'accéder à l'étage supérieur. Vous y trouverez deux chambres avec salles de bains attenantes et placards intégrés. La chambre principale dispose d'un dressing séparé et d'une salle de bains avec douche et baignoire. Toutes les chambres ont accès à la terrasse.
Un escalier mène à la terrasse sur le toit, qui peut être aménagée en espace extérieur supplémentaire. Au sous-sol se trouvent un garage d'environ 136 m² et un espace supplémentaire de près de 40 m², pouvant servir d'espace de rangement ou à usage multifonctionnel. La villa est équipée d'installations modernes, de matériaux de haute qualité et d'un jardin méditerranéen.
Particularités
Villa neuve à AlteaEmplacement : Sierra Altea4 chambres avec salles de bains attenantesAscenseur disponibleVue sur la merPiscine et plusieurs terrassesTerrasse sur le toitGarage d'environ 136 m² + espace supplémentaireDébut de la construction prévu en 2026Pourquoi visiter cette villa
Situation calme près d'un terrain de golfÀ proximité du centre et de la plageLe luxe à l'état purUne villa tournée vers l'avenir, située à un emplacement stratégique à Altea, conçue pour un confort de vie optimal, alliant espace et intimité.
Vous souhaitez en savoir plus sur cette villa avec vue sur la mer à vendre à Sierra Altea ? Laissez-vous informer par l'un de nos collaborateurs.