Woonopp.
360m2Perceel
1274m2Slaapkamers
4Badkamers
4Zwembad
12 x 5 m360m2
4
4
1
1
1
Onafhankelijk
2027
H-1945-AMB
1274m2
150 m2
12 x 5 m
2
1
4
1,4 Km.
88 Km.
0,5 Km.
6 Km.
Moderne mediterrane villa met uitzicht op zee en uitzonderlijk architectonisch ontwerp
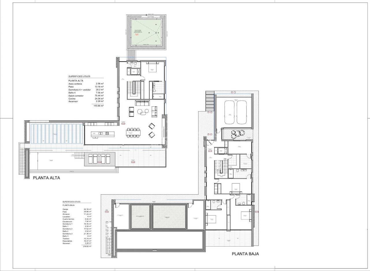
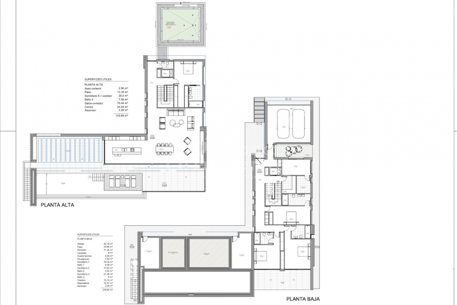
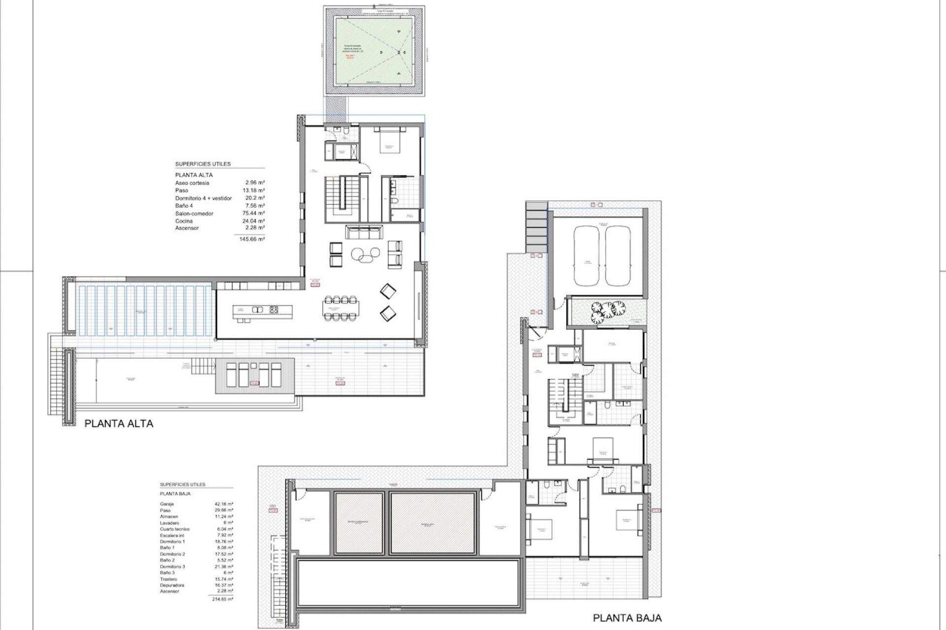
Deze prachtig ontworpen villa staat op een royaal perceel van 1.274 m² en combineert eigentijdse geometrie met de warmte van mediterrane materialen. Horizontale betonnen vlakken en verticale natuurstenen muren zorgen voor structuur en elegantie, terwijl ruime terrassen en grote ramen een naadloze verbinding creëren tussen binnen- en buitenruimtes. Met 360 m² verfijnde leefruimte verdeeld over twee verdiepingen biedt deze woning comfort, verfijning en een tijdloze stijl.
De indeling is ontworpen met het oog op zowel functionaliteit als schoonheid. Op de begane grond bevindt zich het slaapgedeelte met drie ruime slaapkamers met eigen badkamer en een garage voor twee auto's, opslagruimtes en wasruimtes, die privacy en gemak garanderen. Een interne lift biedt moeiteloze toegang tot de bovenverdieping, waar de belangrijkste leefruimte zich ontvouwt. Hier bevindt zich een lichte vierde slaapkamer met eigen badkamer naast een prachtige open woon-, eet- en keukenruimte met een gastentoilet. Kamerhoge ramen bieden een prachtig uitzicht op zee en kunnen volledig worden geopend naar het terras, waar een pergola een tweede buitenwoonkamer en een elegante barbecueplaats creëert.
Binnen combineert het materiaalpalet wit stucwerk, droogsteen en subtiele houten accenten voor warmte en verfijning. Alle badkamers zijn voorzien van hoogwaardige afwerkingen, waaronder verzonken glazen schermen, grootformaat porseleinen tegels en hoogwaardige armaturen. De buitenkant wordt gecompleteerd door royale terrassen en een opvallend zwembad van 5 × 11 m - een ideale plek om de mediterrane levensstijl te omarmen.
Belangrijkste kenmerken:
Neem contact met ons op voor meer informatie of om een bezichtiging te regelen. Wij helpen u graag verder.