€2.350.000
Wohnfl.
360m2Grundst.
1274m2Schlafzimmer
4Badezimmer
4Schwimmbad
12 x 5 m360m2
4
4
1
1
1
Geschlossen
2027
H-1945-AMB
1274m2
150 m2
12 x 5 m
2
1
4
1,4 Km.
88 Km.
0,5 Km.
6 Km.
Moderne mediterrane Villa mit Meerblick und außergewöhnlichem architektonischem Design
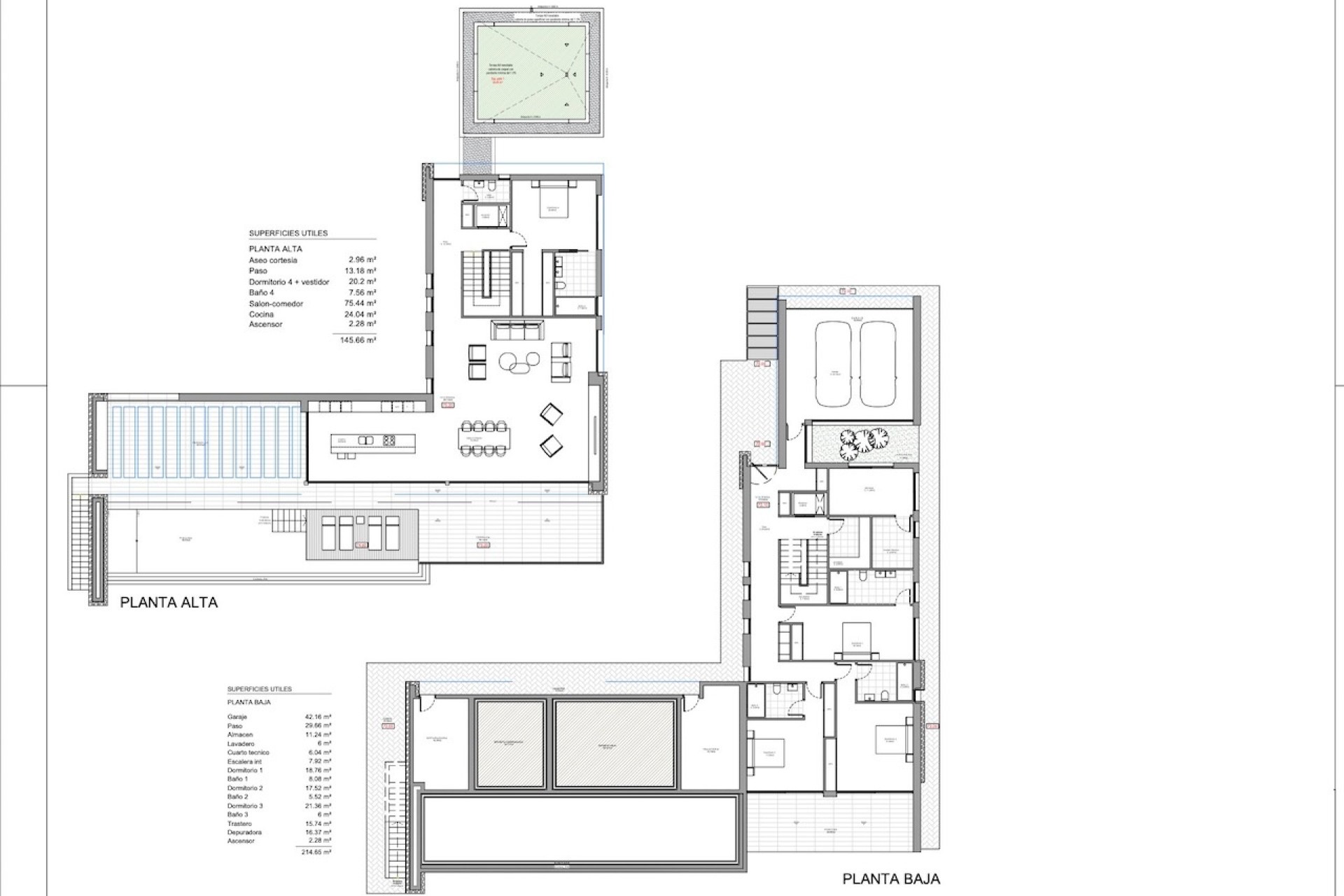
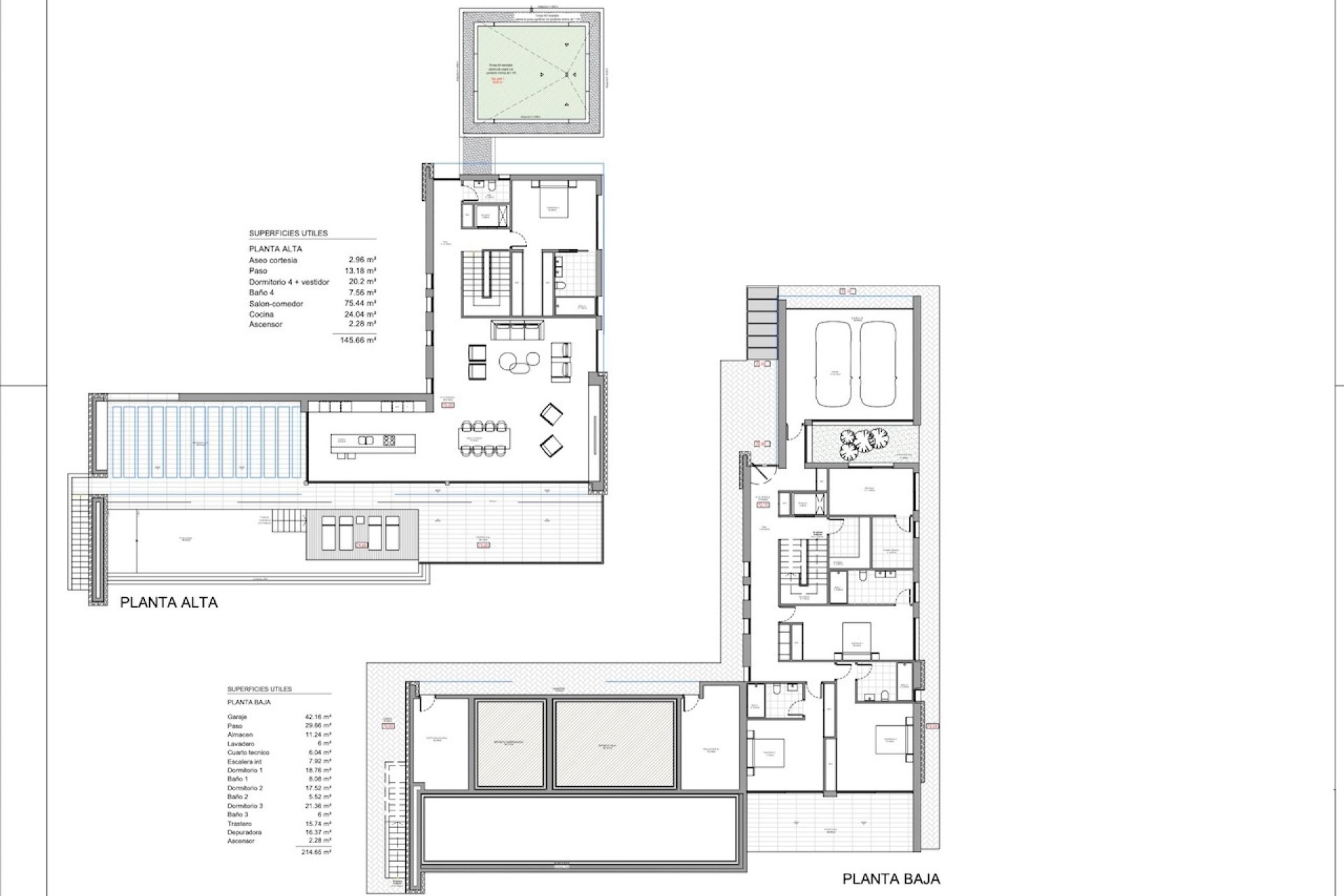
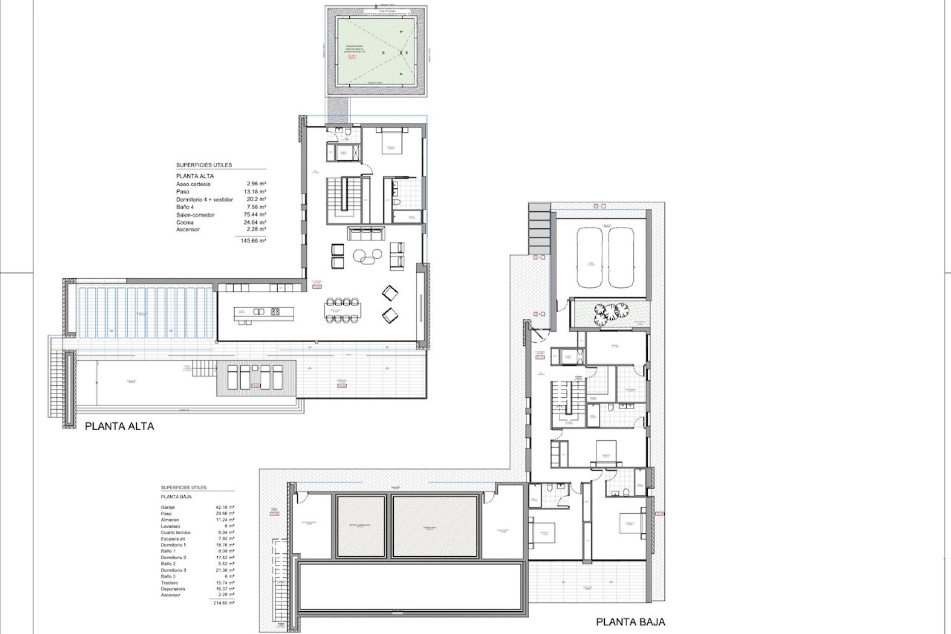
Auf einem großzügigen 1.274 m² großen Grundstück gelegen, verbindet diese wunderschön gestaltete Villa zeitgenössische Geometrie mit der Wärme mediterraner Materialien. Horizontale Betonflächen und vertikale Natursteinwände verleihen Struktur und Eleganz, während weitläufige Terrassen und große Fenster eine nahtlose Verbindung zwischen Innen- und Außenräumen schaffen. Mit 360 m² raffinierter Wohnfläche auf zwei Ebenen bietet dieses Haus Komfort, Eleganz und zeitlosen Stil.
Der Grundriss wurde sowohl auf Funktionalität als auch auf Ästhetik ausgelegt. Im Erdgeschoss befinden sich der Schlafbereich mit drei geräumigen Schlafzimmern mit eigenem Bad sowie eine Garage für zwei Autos, Abstell- und Waschräume, die Privatsphäre und Komfort gewährleisten. Ein interner Aufzug ermöglicht einen mühelosen Zugang zum Obergeschoss, wo sich der Hauptwohnbereich befindet. Hier befindet sich ein helles viertes Schlafzimmer mit eigenem Bad neben einem atemberaubenden offenen Wohn-, Ess- und Küchenbereich mit Gästetoilette. Raumhohe Fenster rahmen den wunderschönen Meerblick ein und lassen sich vollständig zur Terrasse hin öffnen, wo eine Pergola einen zweiten Außenwohnbereich und einen eleganten Grillplatz bildet.
Im Inneren sorgt die Materialpalette aus weißem Stuck, Trockenmauerwerk und dezenten Holzakzenten für Wärme und Raffinesse. Alle Badezimmer sind hochwertig ausgestattet, unter anderem mit versenkten Glaswänden, großformatigem Feinsteinzeug und erstklassigen Armaturen. Das Äußere wird durch großzügige Terrassen und einen beeindruckenden 5 × 11 m großen Pool abgerundet – ein idealer Ort, um den mediterranen Lebensstil zu genießen.
Hauptmerkmale:
Wenn Sie weitere Informationen wünschen oder einen Besichtigungstermin vereinbaren möchten, kontaktieren Sie uns bitte – wir helfen Ihnen gerne weiter.