Construit
360m2Terrain
1274m2Chambres
4Salles de bain
4Piscine
12 x 5 m360m2
4
4
1
1
1
Indépendant
2027
H-1945-AMB
1274m2
150 m2
12 x 5 m
2
1
4
1,4 Km.
88 Km.
0,5 Km.
6 Km.
Villa méditerranéenne moderne avec vue sur la mer et conception architecturale exceptionnelle
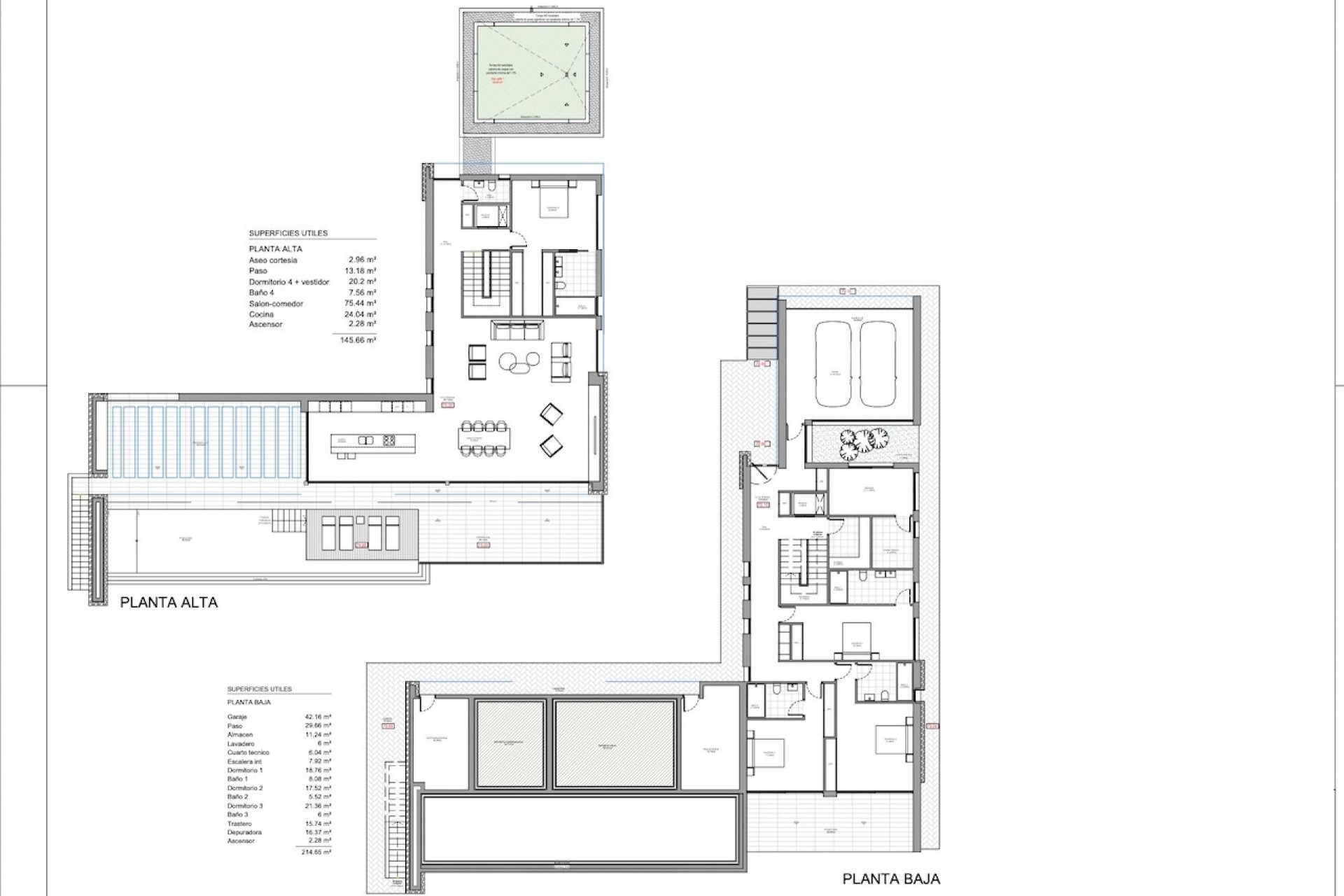
Située sur un terrain généreux de 1 274 m², cette villa magnifiquement conçue allie la géométrie contemporaine à la chaleur des matériaux méditerranéens. Les plans horizontaux en béton et les murs verticaux en pierre naturelle confèrent structure et élégance, tandis que les vastes terrasses et les grandes fenêtres créent une connexion harmonieuse entre les espaces intérieurs et extérieurs. Avec ses 360 m² d'espace de vie raffiné répartis sur deux niveaux, cette maison offre confort, sophistication et style intemporel.
L'agencement a été conçu pour allier fonctionnalité et esthétique. Le rez-de-chaussée abrite l'espace nuit avec trois chambres spacieuses avec salle de bains privative et un garage pour deux voitures, des espaces de rangement et une buanderie, garantissant intimité et commodité. Un ascenseur interne permet d'accéder facilement à l'étage supérieur, où se trouve l'espace de vie principal. Ici, une quatrième chambre lumineuse avec salle de bains attenante côtoie un superbe espace ouvert comprenant le salon, la salle à manger et la cuisine, avec des toilettes pour invités. Les baies vitrées offrent une vue magnifique sur la mer et s'ouvrent entièrement sur la terrasse, où une pergola crée un deuxième salon extérieur et un élégant espace barbecue.
À l'intérieur, la palette de matériaux combine stuc blanc, pierre sèche et subtiles touches de bois pour créer une atmosphère chaleureuse et raffinée. Toutes les salles de bains offrent des finitions haut de gamme, notamment des parois en verre encastrées, du grès cérame grand format et des équipements de première qualité. L'extérieur est complété par de généreuses terrasses et une superbe piscine de 5 × 11 m, un endroit idéal pour profiter du style de vie méditerranéen.
Caractéristiques principales :
Si vous souhaitez obtenir plus d'informations ou organiser une visite, n'hésitez pas à nous contacter, nous serons ravis de vous aider.