€1.650.000
Wohnfl.
242m2Grundst.
885m2Schlafzimmer
3Badezimmer
2Schwimmbad
12 x 5 m242m2
3
2
1
1
1
Geschlossen
H-1951-AMB
885m2
150 m2
12 x 5 m
2
1m2
3
Südosten
1 Km.
90 Km.
1 Km.
7 Km.
Moderne Luxusvilla in Gehweite zum Strand in Moraira
Diese moderne Luxusvilla in Moraira besticht durch ihr elegantes, minimalistisches Design mit klaren architektonischen Linien und einer harmonischen Mischung aus natürlichen Materialien wie Holz, Stein und Glas. Große, raumhohe Fenster und Schiebetüren verbinden den Innenbereich nahtlos mit den Außenbereichen und lassen viel Tageslicht in das gesamte Haus strömen.
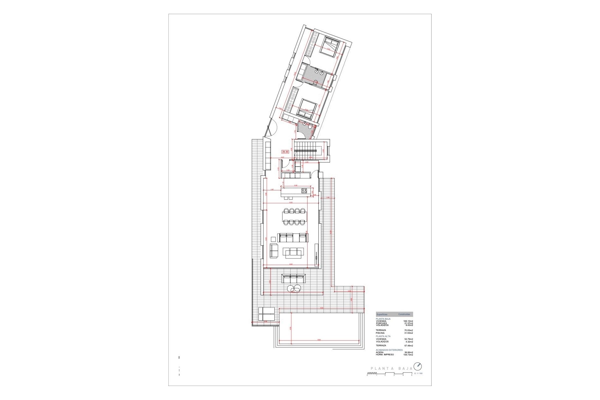
Der offene Wohnbereich ist hell und geräumig, hochwertig mit vom Kunden ausgewählten Materialien ausgestattet und öffnet sich direkt zu den Terrassen. Im Außenbereich verfügt die Villa über einen stilvollen überdachten Loungebereich, eine Sonnenterrasse und einen ruhigen privaten Swimmingpool mit Dusche, alles inmitten eines wunderschön angelegten Gartens. Der Strand ist nur fünf Gehminuten entfernt, was diesen Ort zu einem außergewöhnlichen Standort sowohl für das dauerhafte Wohnen als auch für den Urlaub macht.
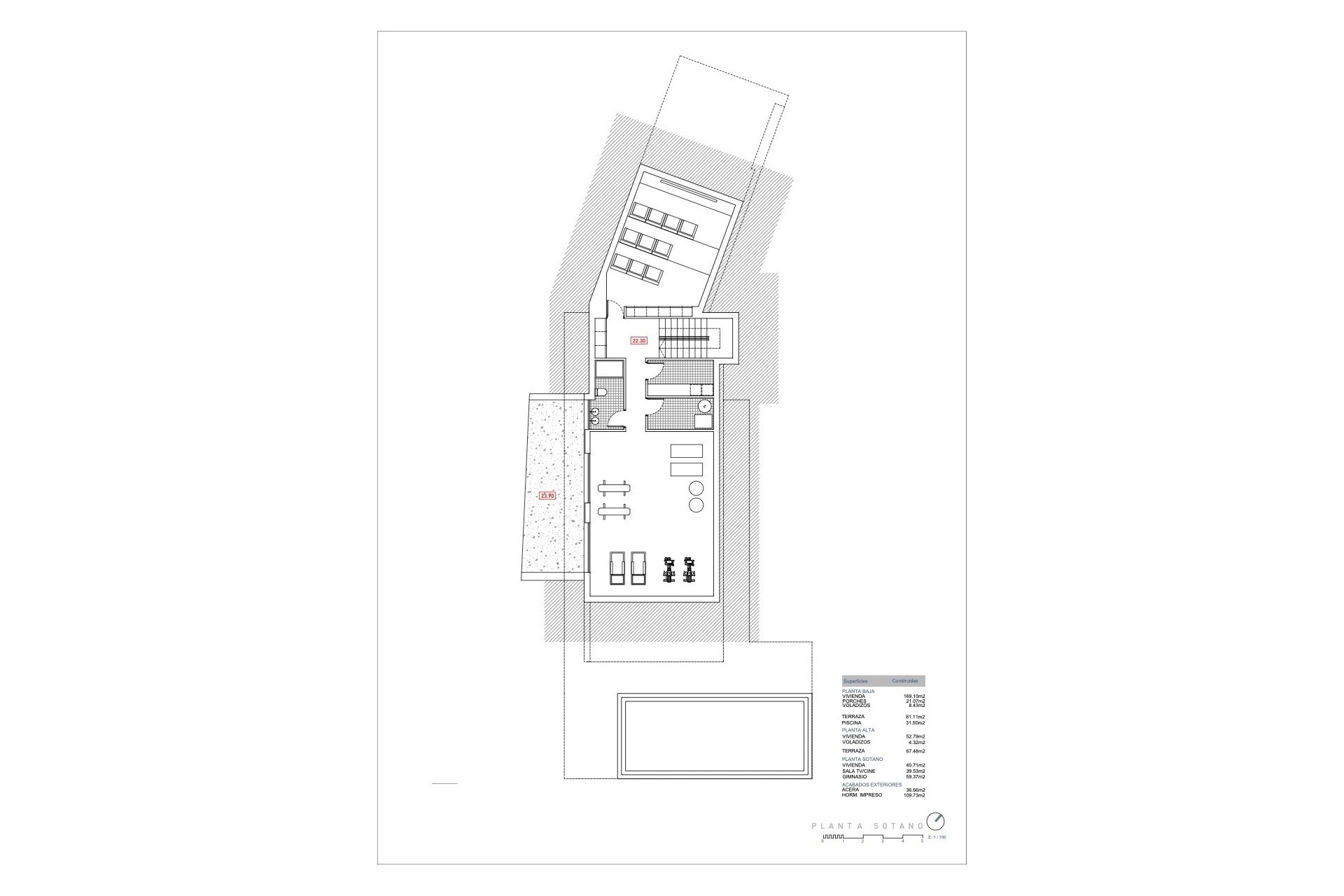
Auf einem Grundstück von 885 m² mit einer bebauten Fläche von 242,9 m² bietet die Villa drei Schlafzimmer, zwei Badezimmer, ein Gäste-WC und einen Hauswirtschaftsraum. Gegen Aufpreis besteht die Möglichkeit, einen Keller einzubauen, in dem ein Fitnessraum, ein Heimkino, ein zusätzliches Badezimmer oder andere individuell gestaltete Räume nach den Wünschen des Käufers untergebracht werden können.
Die Immobilie wurde mit Blick auf Komfort und Effizienz entworfen und ist mit Fußbodenheizung, einer Klimaanlage mit Luftkanälen im gesamten Gebäude, Fenstern mit Guardian Sun-Technologie, automatischen Rollläden und einem automatischen Eingangstor ausgestattet. Die neutrale Farbpalette und die moderne Architektur schaffen eine elegante und dennoch einladende Atmosphäre, ideal zum Entspannen und für Unterhaltung in Meeresnähe.
Hauptmerkmale
Wenn Sie weitere Informationen wünschen oder einen Besichtigungstermin vereinbaren möchten, zögern Sie bitte nicht, mich zu kontaktieren – ich helfe Ihnen gerne weiter.