Woonopp.
242m2Perceel
885m2Slaapkamers
3Badkamers
2Zwembad
12 x 5 m242m2
3
2
1
1
1
Onafhankelijk
H-1951-AMB
885m2
150 m2
12 x 5 m
2
1
3
Zuidoosten
1 Km.
90 Km.
1 Km.
7 Km.
Moderne luxe villa op loopafstand van het strand in Moraira
Deze moderne luxe villa in Moraira heeft een strak, minimalistisch ontwerp met zuivere architectonische lijnen en een harmonieuze mix van natuurlijke materialen zoals hout, steen en glas. Grote kamerhoge ramen en schuifdeuren verbinden het interieur naadloos met de buitenruimtes, waardoor er veel natuurlijk licht in het hele huis binnenkomt.
De open woonkamer is licht en ruim, afgewerkt volgens hoge normen met door de klant geselecteerde kwaliteitsmaterialen, en komt direct uit op de terrassen. Buiten beschikt de villa over een stijlvolle overdekte lounge, een zonneterras en een rustig privézwembad met douche, allemaal gelegen in een prachtig aangelegde tuin. Het strand ligt op slechts vijf minuten lopen, waardoor dit een uitzonderlijke locatie is voor zowel permanent wonen als vakanties.
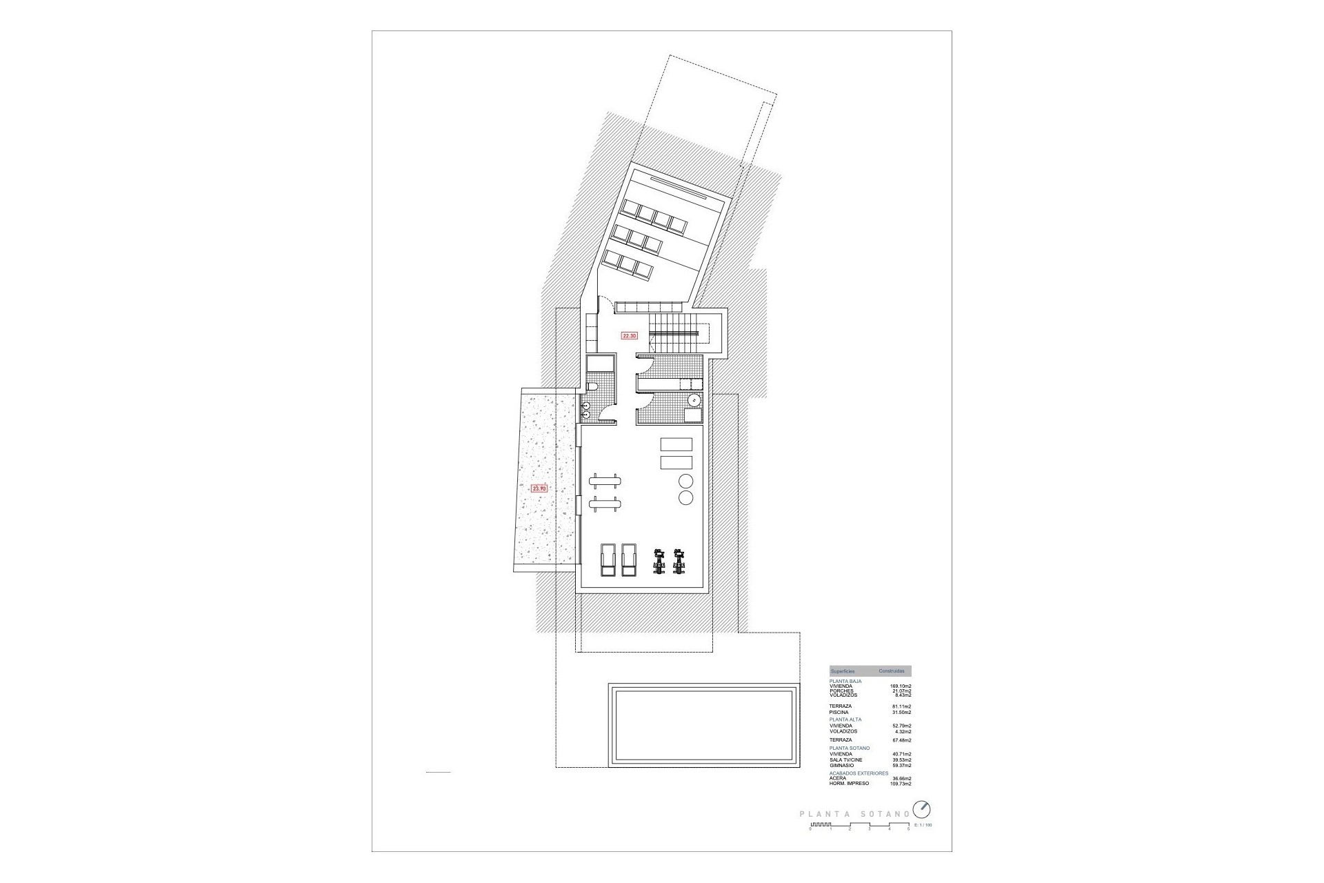
De villa staat op een perceel van 885 m² met een bebouwde oppervlakte van 242,9 m² en biedt drie slaapkamers, twee badkamers, een gastentoilet en een bijkeuken. Tegen meerprijs kan er een kelder worden aangebouwd, die plaats biedt aan een fitnessruimte, een thuisbioscoop, een extra badkamer of andere ruimtes die aan de wensen van de koper kunnen worden aangepast.
Het pand is ontworpen met het oog op comfort en efficiëntie en is uitgerust met vloerverwarming, airconditioning in het hele huis, ramen met Guardian Sun-technologie, automatische rolluiken en een automatische toegangspoort. Het neutrale kleurenpalet en de eigentijdse architectuur creëren een elegante en toch uitnodigende sfeer, ideaal om te ontspannen en te entertainen aan zee.
Belangrijkste kenmerken
Als u meer informatie wilt of een bezichtiging wilt regelen, aarzel dan niet om contact op te nemen - ik help u graag verder.