Construit
242m2Terrain
885m2Chambres
3Salles de bain
2Piscine
12 x 5 m242m2
3
2
1
1
1
Indépendant
H-1951-AMB
885m2
150 m2
12 x 5 m
2
1
3
Sud-est
1 Km.
90 Km.
1 Km.
7 Km.
Villa moderne de luxe à quelques pas de la plage à Moraira
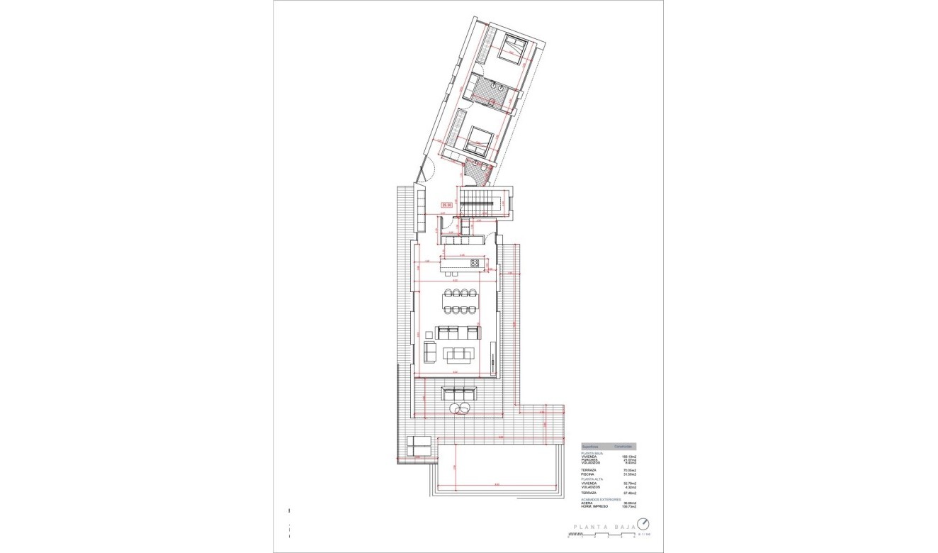
Cette villa moderne de luxe à Moraira offre un design élégant et minimaliste avec des lignes architecturales épurées et un mélange harmonieux de matériaux naturels tels que le bois, la pierre et le verre. De grandes baies vitrées et des portes coulissantes relient harmonieusement l'intérieur aux espaces extérieurs, laissant entrer une lumière naturelle abondante dans toute la maison.
L'espace de vie ouvert est lumineux et spacieux, fini avec des matériaux de qualité sélectionnés par le client, et s'ouvre directement sur les terrasses. À l'extérieur, la villa dispose d'un élégant salon couvert, d'une terrasse ensoleillée et d'une piscine privée paisible avec douche, le tout dans un magnifique jardin paysager. La plage se trouve à seulement cinq minutes à pied, ce qui en fait un emplacement exceptionnel pour y vivre à l'année ou passer des vacances.
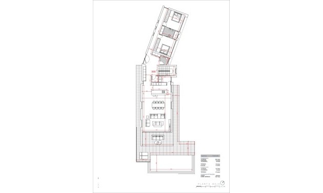
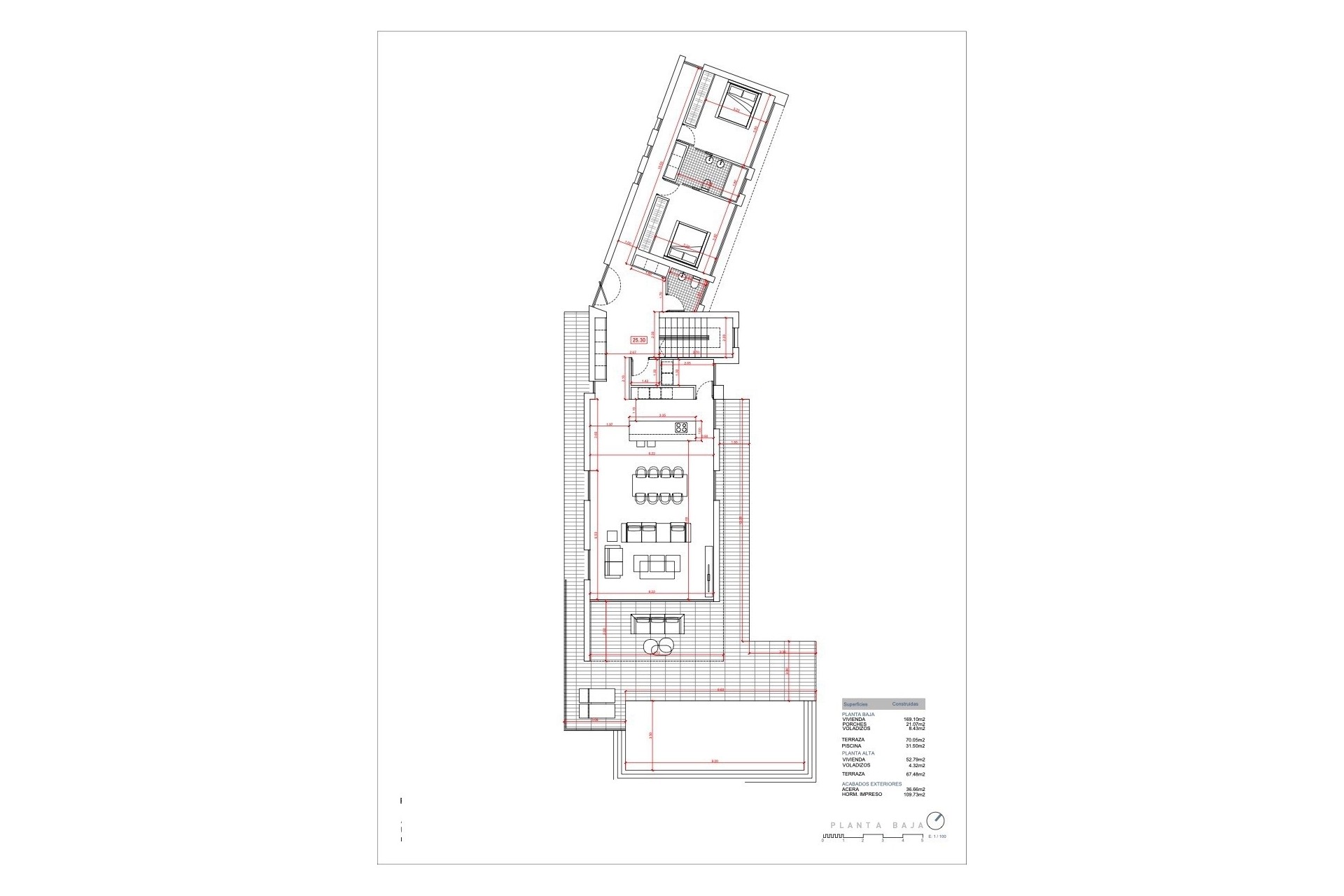
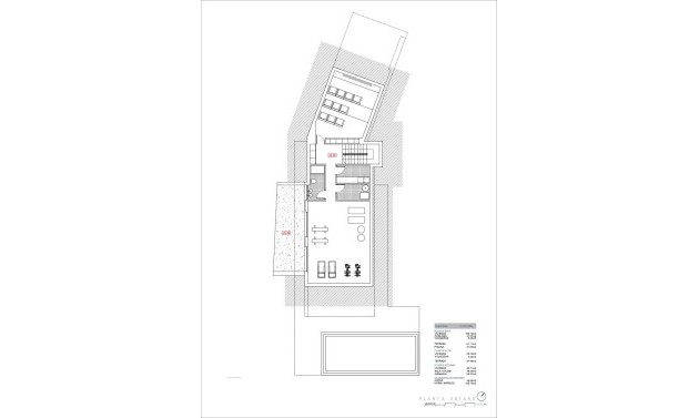
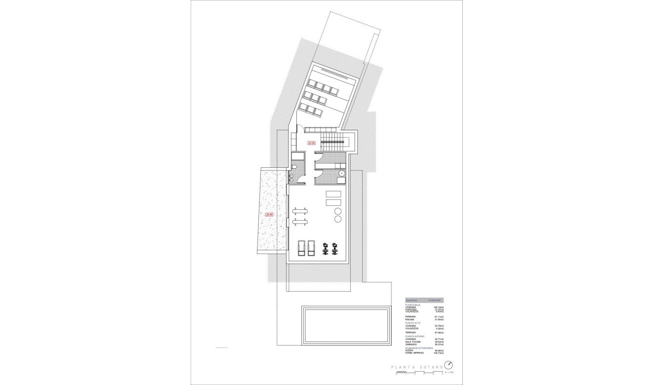
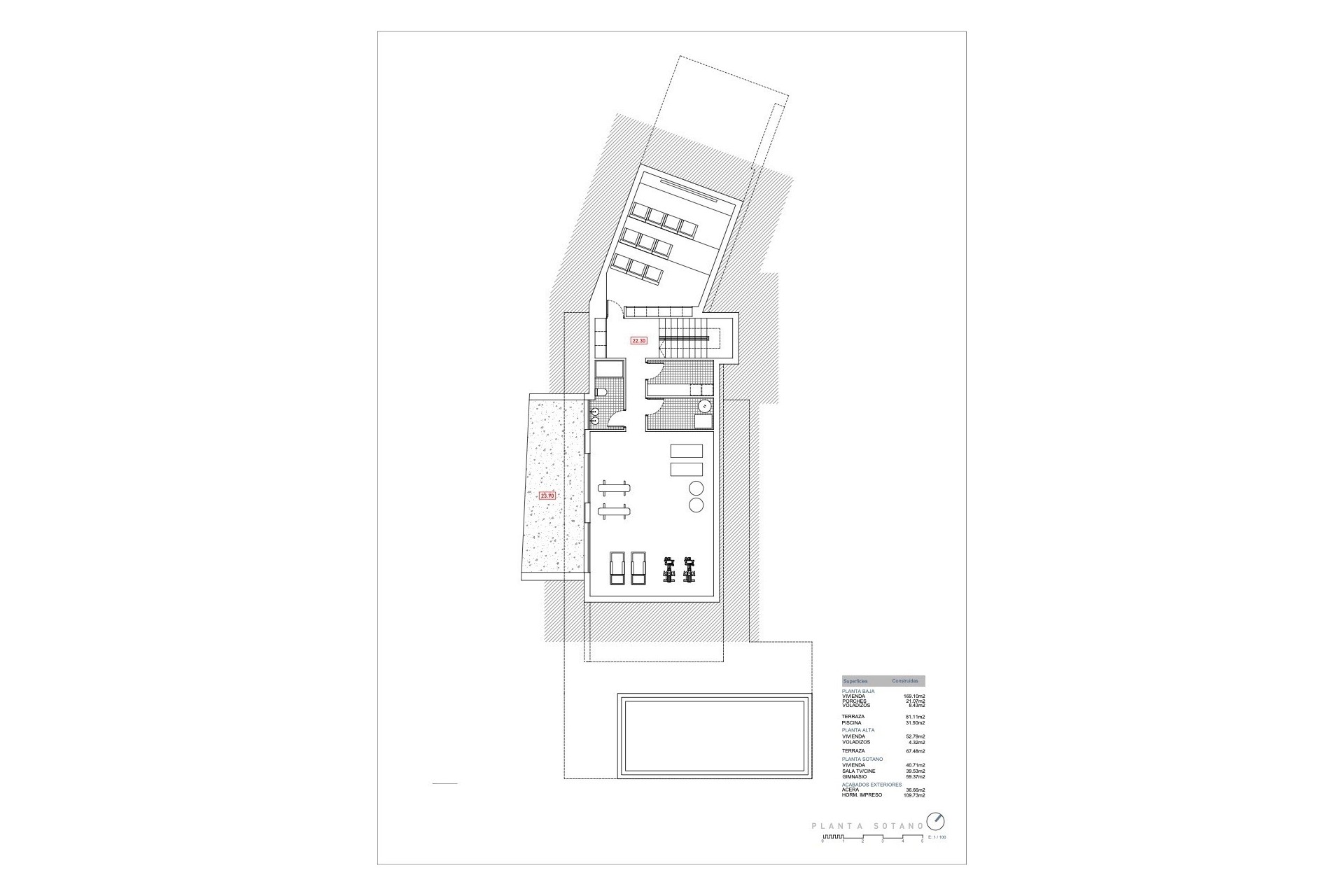
Située sur un terrain de 885 m² avec une surface construite de 242,9 m², la villa offre trois chambres, deux salles de bains, des toilettes pour invités et une buanderie. Il est possible d'ajouter un sous-sol moyennant un coût supplémentaire, qui pourrait accueillir une salle de sport, un home cinéma, une salle de bains supplémentaire ou d'autres espaces personnalisés selon les besoins de l'acheteur.
Conçue pour offrir confort et efficacité, la propriété est équipée d'un chauffage au sol, d'une climatisation centralisée, de fenêtres Guardian Sun, de volets automatiques et d'un portail d'entrée automatique. La palette de couleurs neutres et l'architecture contemporaine créent une atmosphère élégante et accueillante, idéale pour se détendre et recevoir près de la mer.
Caractéristiques principales
Si vous souhaitez obtenir plus d'informations ou organiser une visite, n'hésitez pas à me contacter, je me ferai un plaisir de vous aider.