Woonopp.
716m2Perceel
800m2Slaapkamers
4Badkamers
4Zwembad
12 x 5 m716m2
4
4
1
1
1
Onafhankelijk
H-1937-AMB
800m2
150 m2
12 x 5 m
2
1
4
Zuidoosten
0,3 Km.
85 Km.
0,3 Km.
0,8 Km.
Moderne Villa te Koop in La Fustera, Benissa Costa – Panoramisch Zeezicht en Tijdloze Elegantie
Op slechts 300 meter van het prachtige strand van La Fustera en op loopafstand van restaurants, bars en voorzieningen, biedt deze nieuwgebouwde villa een perfecte combinatie van natuurlijke materialen, verfijnd design en modern comfort. Gelegen op een perceel van 800 m² in een rustige woonwijk, omringd door moderne woningen en op slechts 800 meter van de golfbaan, heeft de woning een zuidoostelijke oriëntatie en adembenemend panoramisch zeezicht.
Gebouwd volgens de hoogste kwaliteitsnormen, met warme houtaccenten, natuursteen en zachte neutrale tinten, straalt de villa een elegante en uitnodigende sfeer uit. Grote ramen zorgen voor overvloedig natuurlijk licht en verbinden het interieur naadloos met de terrassen en het zwembad.
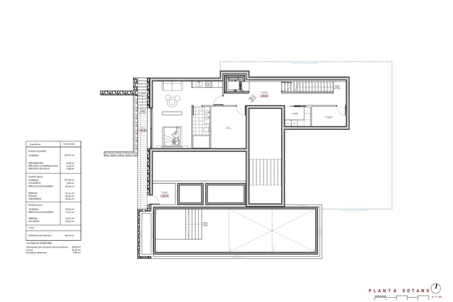
De villa heeft een totale bebouwde oppervlakte van 716 m² verdeeld over drie niveaus. Het hoofdverdieping biedt een open woonruimte met volledig uitgeruste keuken, eetkamer en woonkamer met directe toegang tot het terras en het infinity zwembad. Buiten vind je zowel overdekte als open terrassen, een buitendouche en prachtig uitzicht op zee. Op deze verdieping bevinden zich ook twee slaapkamers, een badkamer en een gastentoilet.
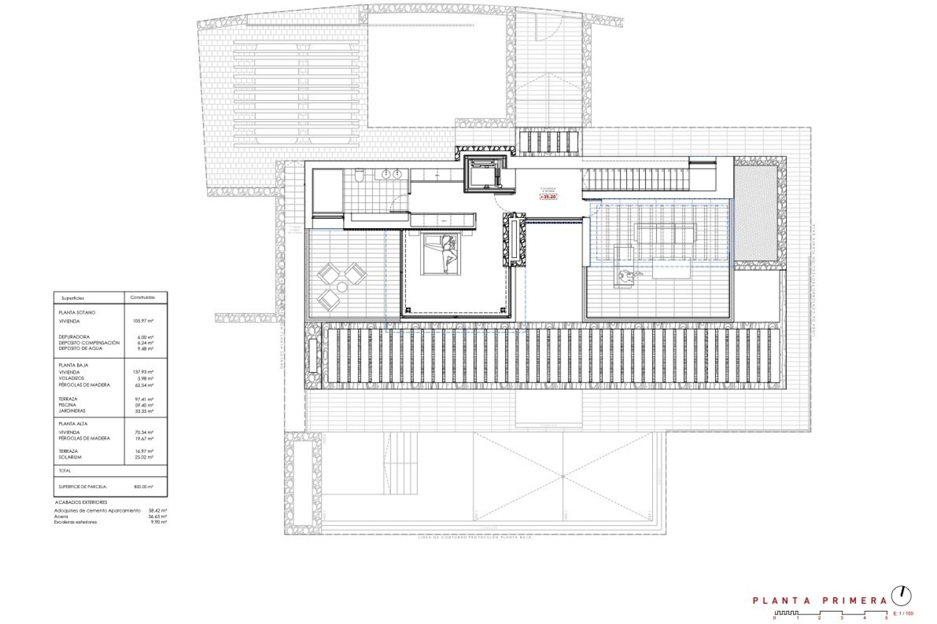
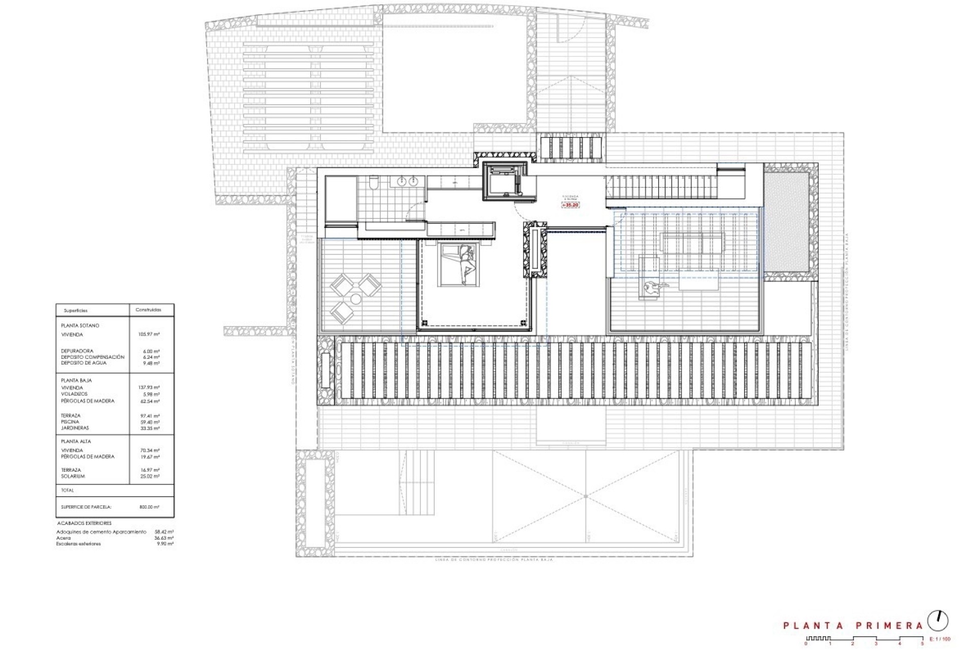
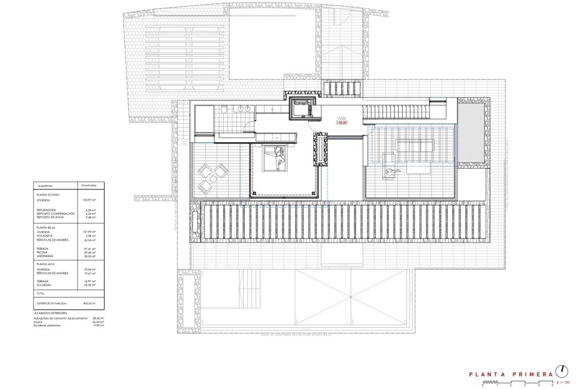
De bovenverdieping is gewijd aan de mastersuite met inloopkast, en-suite badkamer en groot privéterras met panoramisch uitzicht op zee. Een extra slaapkamer of kantoorruimte en een solarium maken dit niveau compleet.
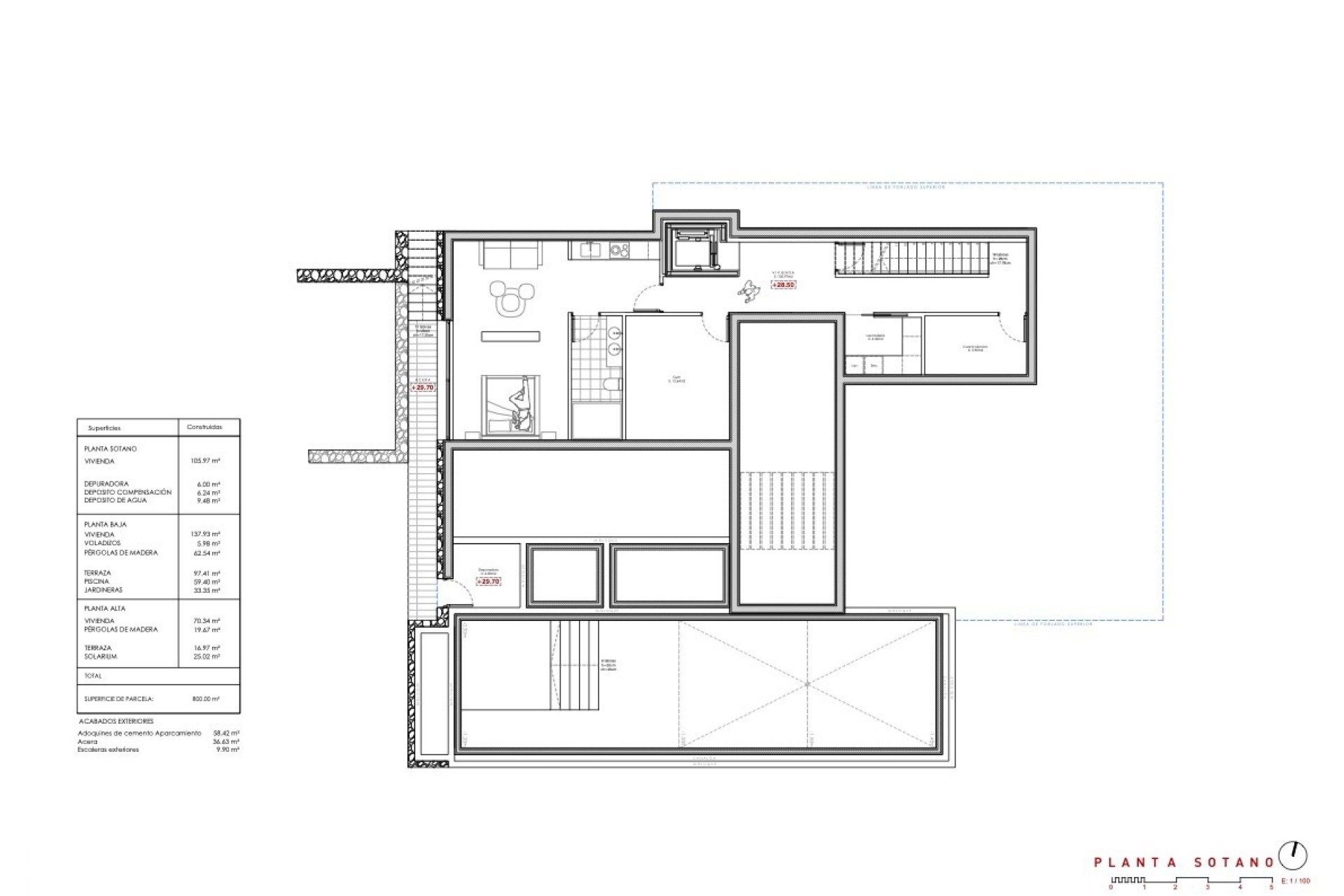
Het souterrain beschikt over een fitnessruimte, een gastenappartement, een wasruimte en extra bergruimte.
De villa is uitgerust met kanaalairconditioning, vloerverwarming met warmtepomp, mechanische ventilatie, elektrische rolluiken in de slaapkamers, alarmsysteem, elektrisch toegangshek en lift. Het infinity zwembad van 11 × 5 m vormt het middelpunt van het buitenterrein met adembenemend zeezicht.
Belangrijkste kenmerken:
• Nieuwbouw villa met panoramisch zeezicht
• 716 m² bebouwd op perceel van 800 m²
• 3 niveaus met lift
• 4 slaapkamers en 3 badkamers + gastentoilet
• Open woon-, eet- en keukenruimte
• Infinity zwembad 11 × 5 m
• Gym, gastenappartement, wasruimte, berging
• Vloerverwarming en kanaalairconditioning
• Warmtepomp en mechanische ventilatie
• Elektrische rolluiken en alarm
• Zuidoost oriëntatie, 300 m van het strand, 800 m van golf
Een uitzonderlijke woning die design, comfort en functionaliteit combineert in een van de meest gewilde gebieden van Benissa Costa. Neem vandaag nog contact met ons op voor meer informatie of een bezichtiging.