Construidos
716m2Parcela
800m2Dormitorios
4Baños
4Piscina
12 x 5 m716m2
4
4
1
1
1
Independiente
H-1937-AMB
800m2
150 m2
12 x 5 m
2
1
4
Sureste
0,3 Km.
85 Km.
0,3 Km.
0,8 Km.
Villa Contemporánea en Venta en La Fustera, Benissa Costa – Vistas Panorámicas al Mar y Elegancia Atemporal
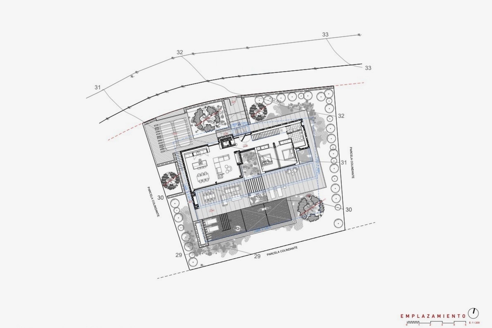
A solo 300 metros de la hermosa playa de La Fustera y a poca distancia de restaurantes, bares y todos los servicios, esta villa de nueva construcción ofrece una extraordinaria combinación de materiales naturales, diseño refinado y confort moderno. Situada en una parcela de 800 m² en una tranquila calle residencial, rodeada de villas contemporáneas y a solo 800 metros del campo de golf, esta propiedad con orientación sureste y vistas panorámicas al mar encarna a la perfección el estilo de vida mediterráneo.
Construida con los más altos estándares, la villa utiliza tonos cálidos de madera, piedra natural y colores neutros suaves para crear un ambiente acogedor y elegante. Grandes ventanales inundan cada estancia de luz natural y conectan perfectamente el interior con las amplias terrazas y la zona de la piscina.
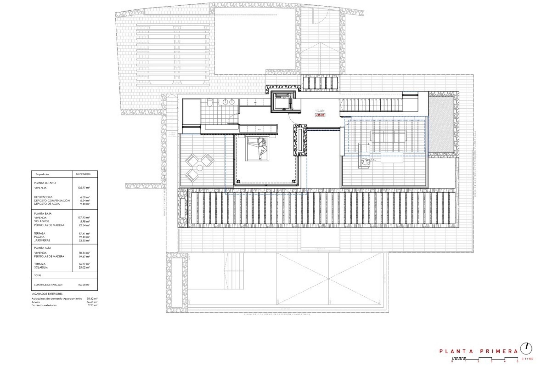
La villa se distribuye en tres niveles, con una superficie total construida de 716 m². En la planta principal, se encuentra un amplio espacio diáfano con una cocina moderna totalmente equipada, comedor y sala de estar con acceso directo a la terraza y a la piscina infinita. El área exterior incluye terrazas cubiertas y descubiertas, una ducha junto a la piscina y vistas panorámicas al mar. En esta planta también hay dos dormitorios dobles, un baño completo y un aseo de invitados.
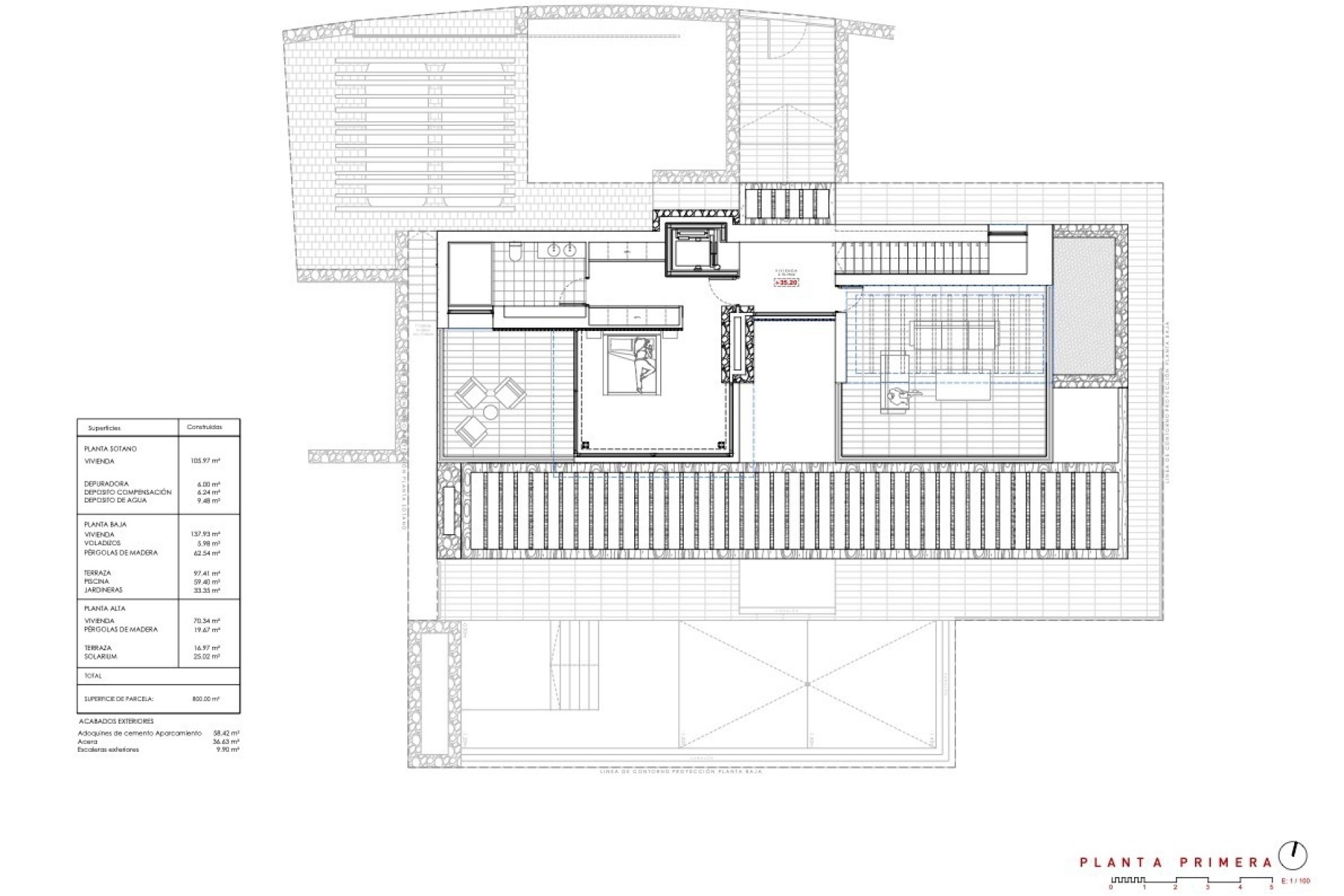
La primera planta está dedicada a la suite principal, un refugio privado con vestidor, baño en suite y una gran terraza privada con impresionantes vistas al mar. También hay un dormitorio adicional o despacho y acceso a un solárium perfecto para disfrutar del sol y de la tranquilidad.
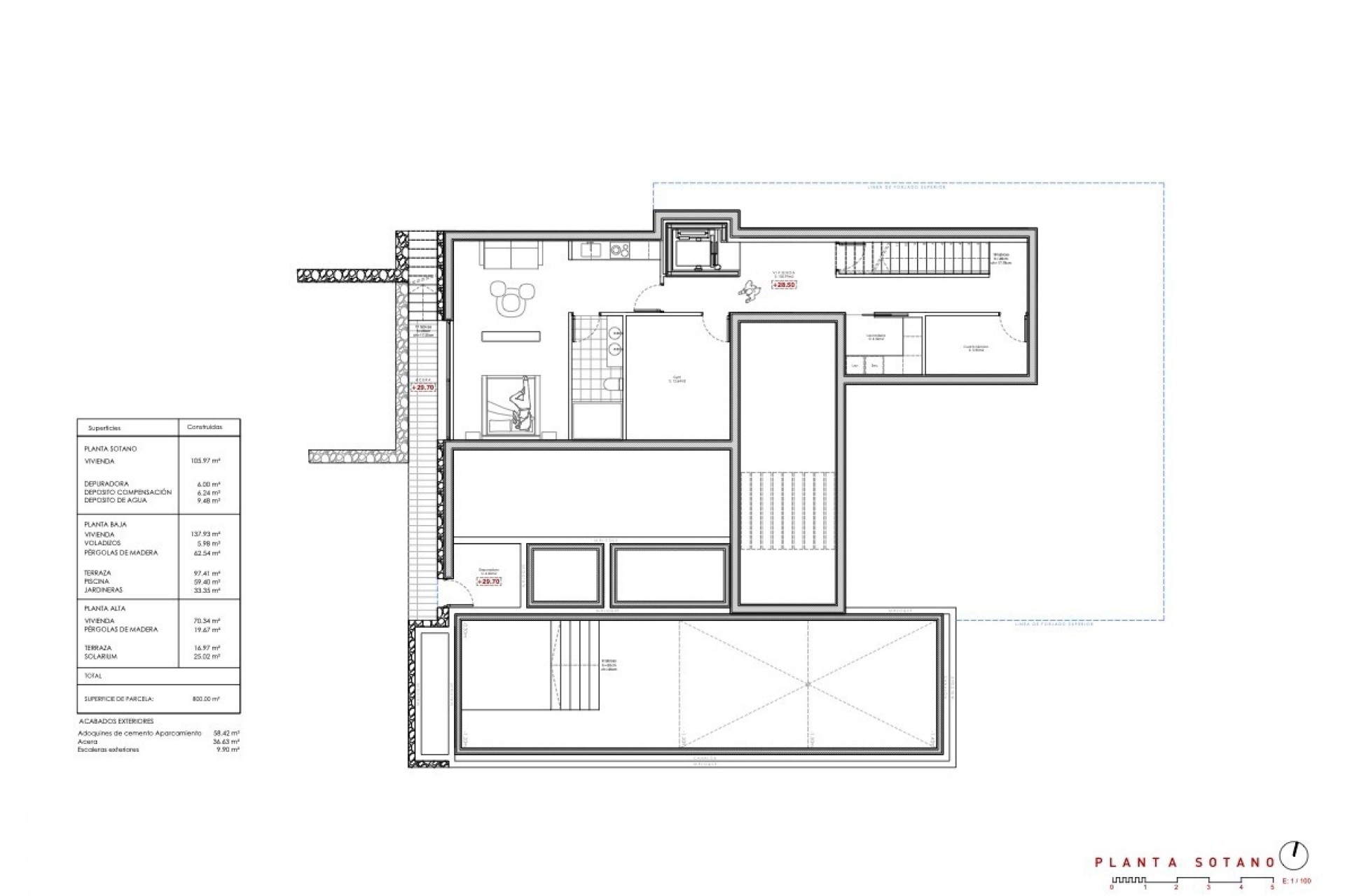
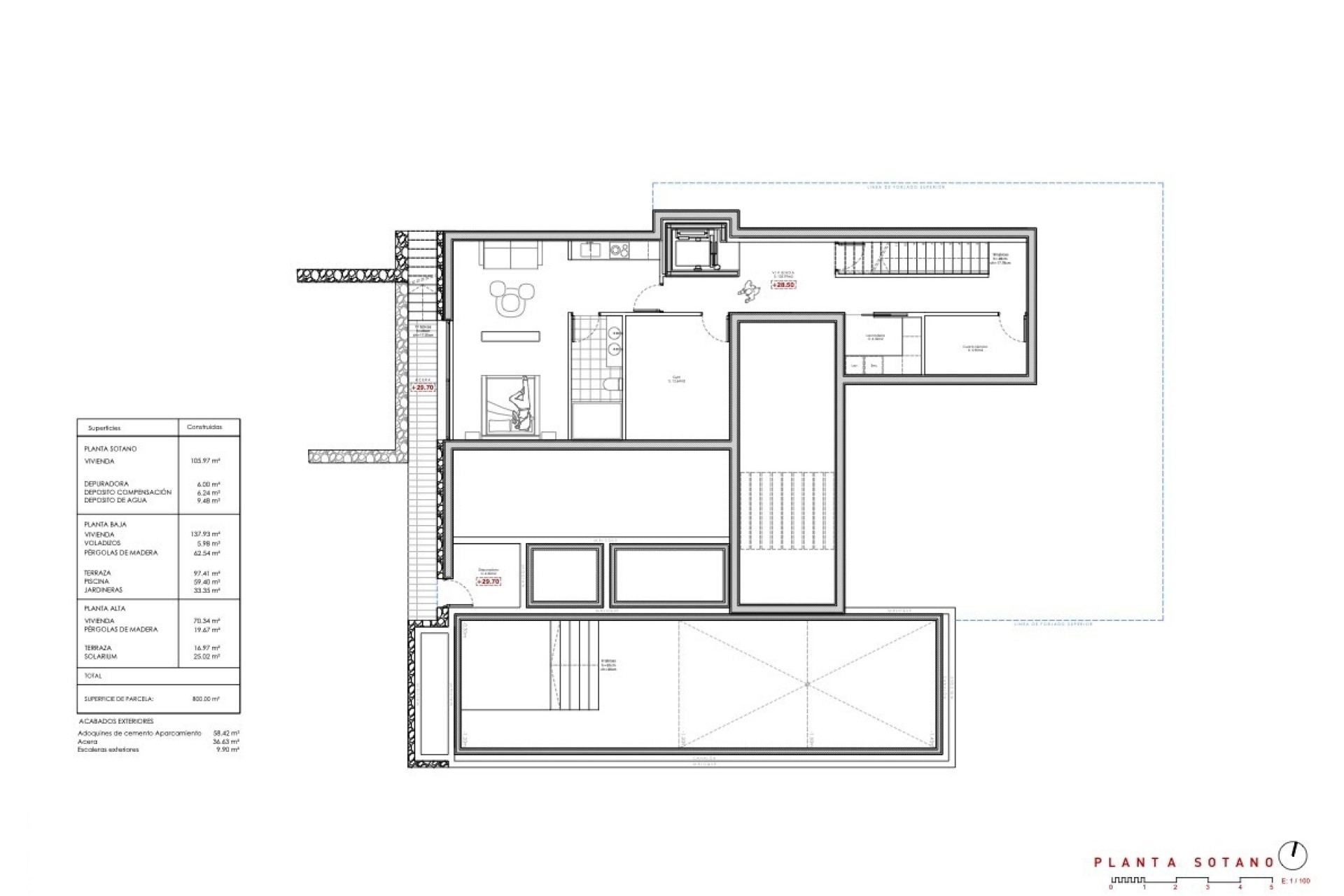
El sótano ofrece funcionalidad y comodidad, con un gimnasio, un apartamento de invitados, lavadero y varias zonas de almacenamiento. También alberga los sistemas técnicos, depósito de agua y filtración de la piscina.
La villa está equipada con aire acondicionado por conductos, calefacción por suelo radiante mediante bomba de calor, ventilación mecánica, persianas eléctricas en los dormitorios, sistema de alarma, portón eléctrico y ascensor. La piscina infinita de 11 × 5 m es el punto focal del exterior, ofreciendo espectaculares vistas al mar.
Características principales:
• Villa contemporánea de nueva construcción con vistas panorámicas al mar
• 716 m² construidos sobre parcela de 800 m²
• 3 niveles con ascensor
• 4 dormitorios y 3 baños + aseo de invitados
• Salón, comedor y cocina de planta abierta
• Piscina infinita de 11 × 5 m con vistas al mar
• Gimnasio, apartamento de invitados, lavadero y trasteros
• Calefacción por suelo radiante y aire acondicionado por conductos
• Bomba de calor y ventilación mecánica
• Persianas eléctricas en dormitorios
• Sistema de alarma y portón eléctrico
• Orientación sureste, a 300 m de la playa y 800 m del golf
Una propiedad excepcional que combina diseño, confort y funcionalidad en una de las zonas más exclusivas de Benissa Costa. Un elegante hogar mediterráneo donde cada detalle ha sido pensado para ofrecer un estilo de vida lujoso y relajado.
¿Interesado? Contáctenos hoy para más información o para concertar una visita privada.