Woonopp.
290m2Perceel
1178m2Slaapkamers
4Badkamers
4Zwembad
12 x 5 m290m2
4
4
H-4790-CA
1178m2
12 x 5 m
Moderne villa met zeezicht in Gran Sol, Calpe
Dit moderne villaproject in Calpe ligt in de rustige en gewilde wijk Gran Sol en biedt een combinatie van moderne architectuur, functioneel ontwerp en prachtig zeezicht.
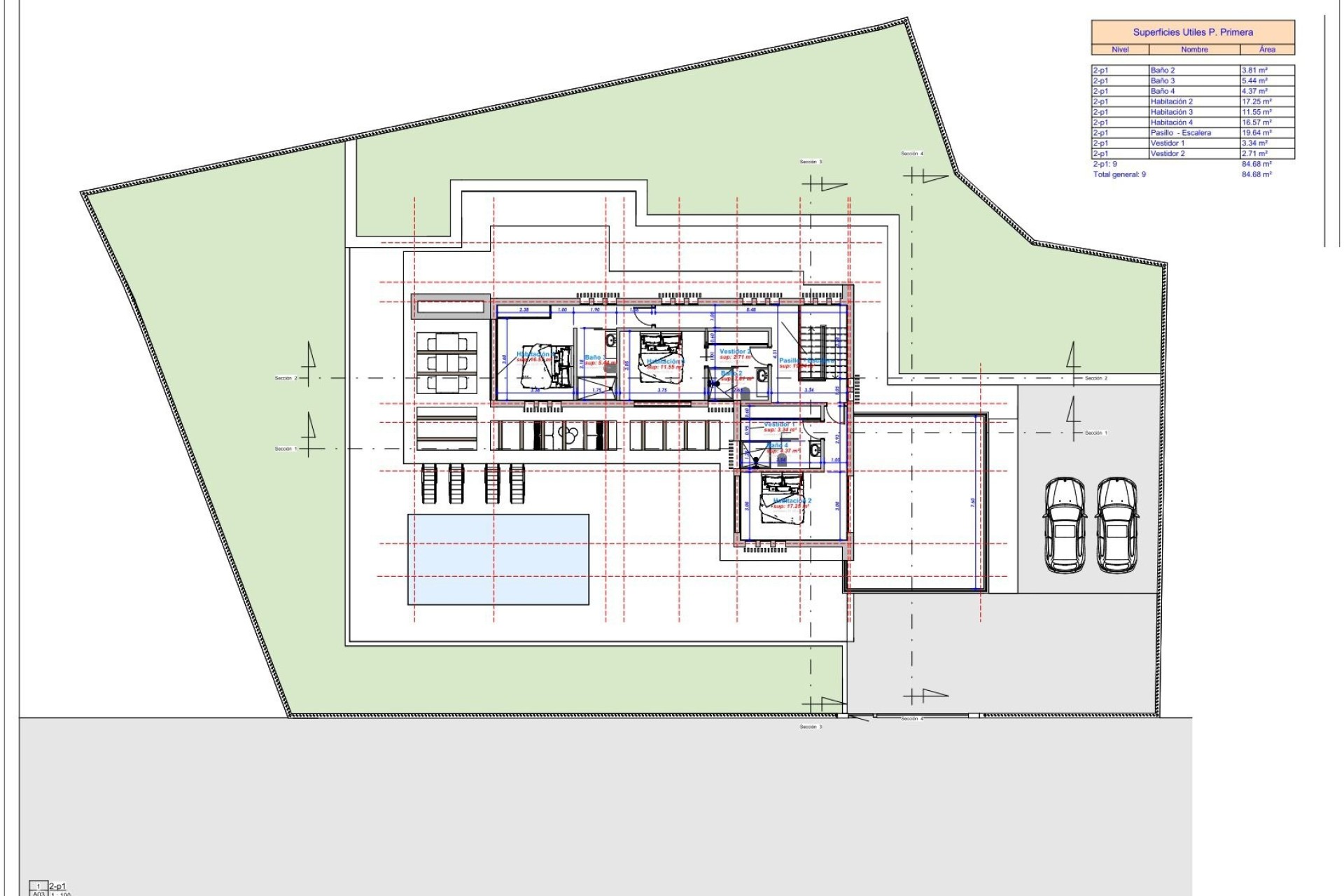
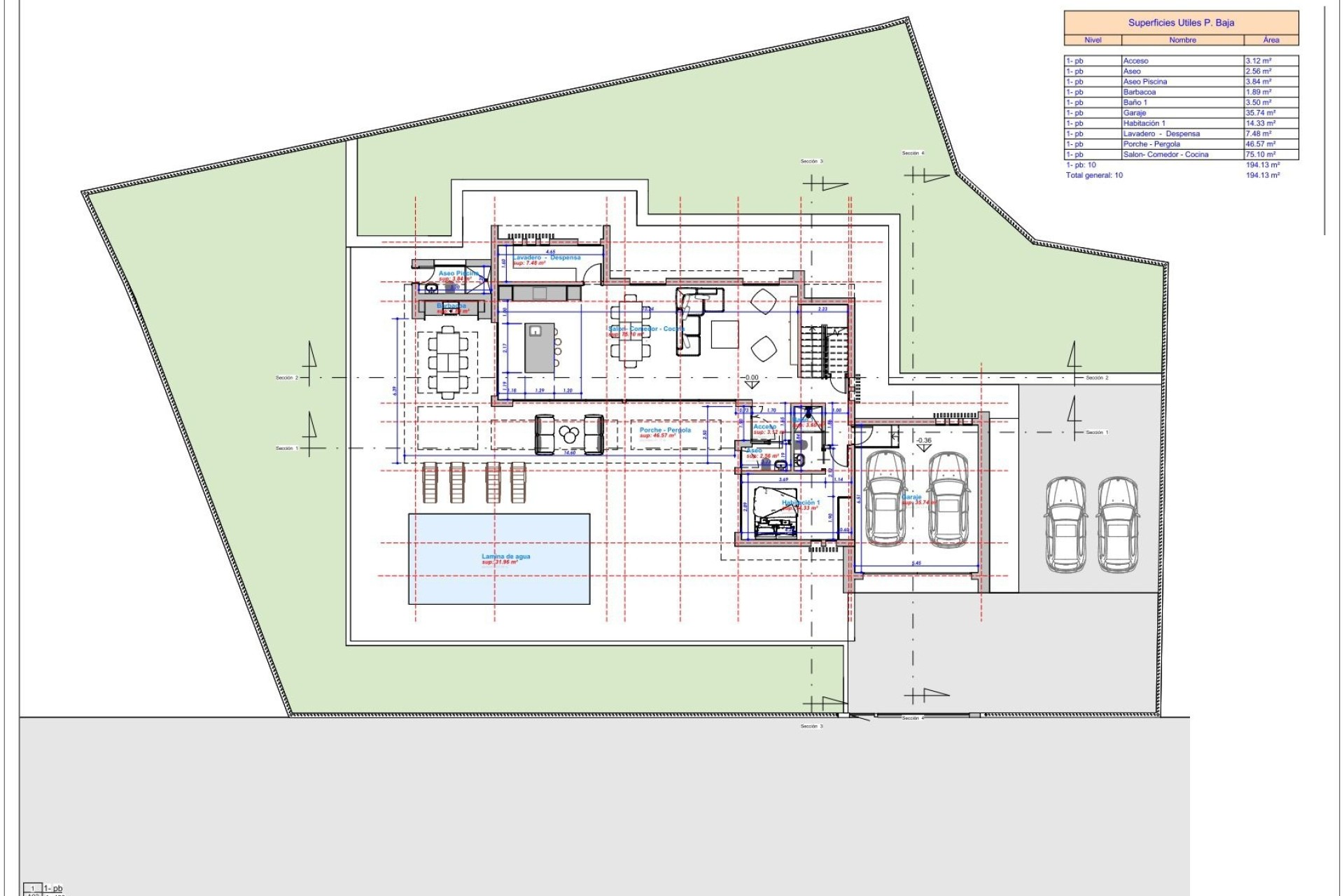
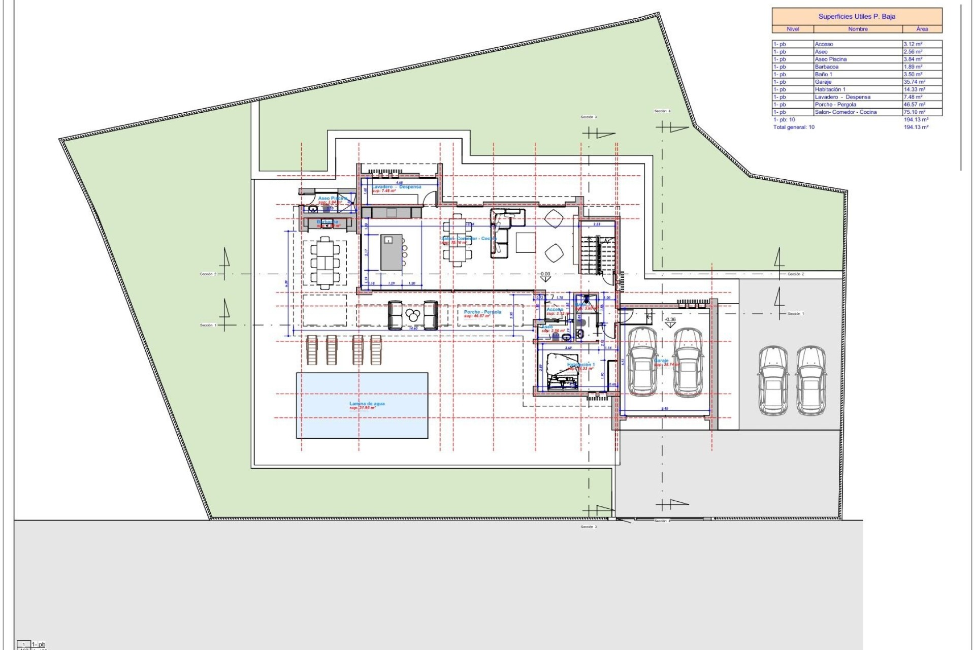
De villa is verdeeld over twee verdiepingen. Op de begane grond vormt een ruime open woon- en eetkamer met moderne keuken het hart van het huis. De keuken heeft een werkblad dat tevens als ontbijtbar kan dienen, met daarnaast een praktische bijkeuken met opbergruimte en wasfaciliteiten. Op deze verdieping bevindt zich ook een slaapkamer met eigen badkamer en een gasten-WC. Grote schuifdeuren zorgen voor veel natuurlijk licht en directe toegang tot het terras.
Een interne trap leidt naar de bovenverdieping, waar drie ruime slaapkamers met elk een eigen badkamer te vinden zijn. Twee slaapkamers hebben een inloopkast, en de master suite heeft directe toegang tot een dakterras, perfect om van het uitzicht te genieten.
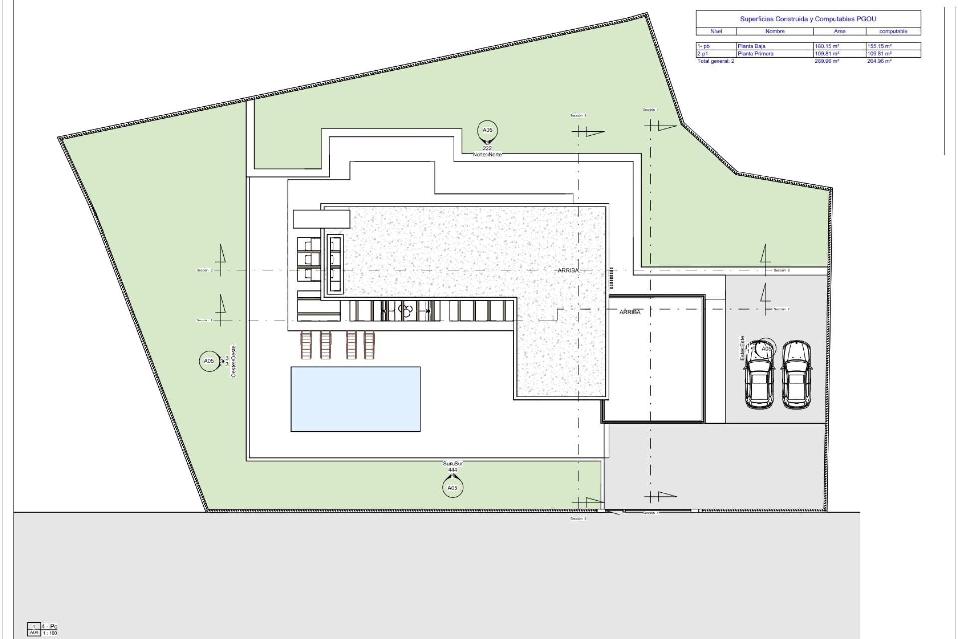
De buitenruimtes omvatten een overdekt terras, een zonneterras rond het 32 m² zwembad en een extra buiten-WC. De villa heeft ook een garage voor twee auto’s. Vloerverwarming, airconditioning en dubbel glas zorgen voor comfort het hele jaar door.
Belangrijkste kenmerken:
Deze villa is perfect voor wie een moderne, lichte en rustige woning in de buurt van Calpe zoekt, waarbij comfort, stijl en spectaculair zeezicht samenkomen.