€1.785.000
Wohnfl.
290m2Grundst.
1178m2Schlafzimmer
4Badezimmer
4Schwimmbad
12 x 5 m290m2
4
4
H-4790-CA
1178m2
12 x 5 m
Moderne Villa mit Meerblick in Gran Sol, Calpe
Dieses moderne Villenprojekt in Calpe befindet sich im ruhigen und begehrten Viertel Gran Sol und bietet eine Kombination aus moderner Architektur, funktionalem Design und herrlichem Meerblick.
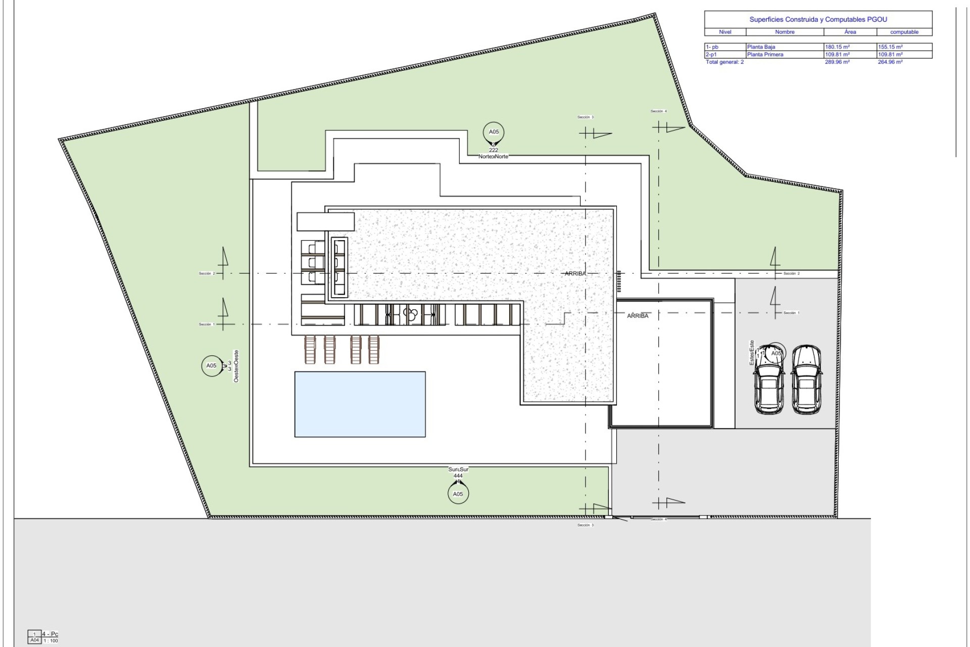
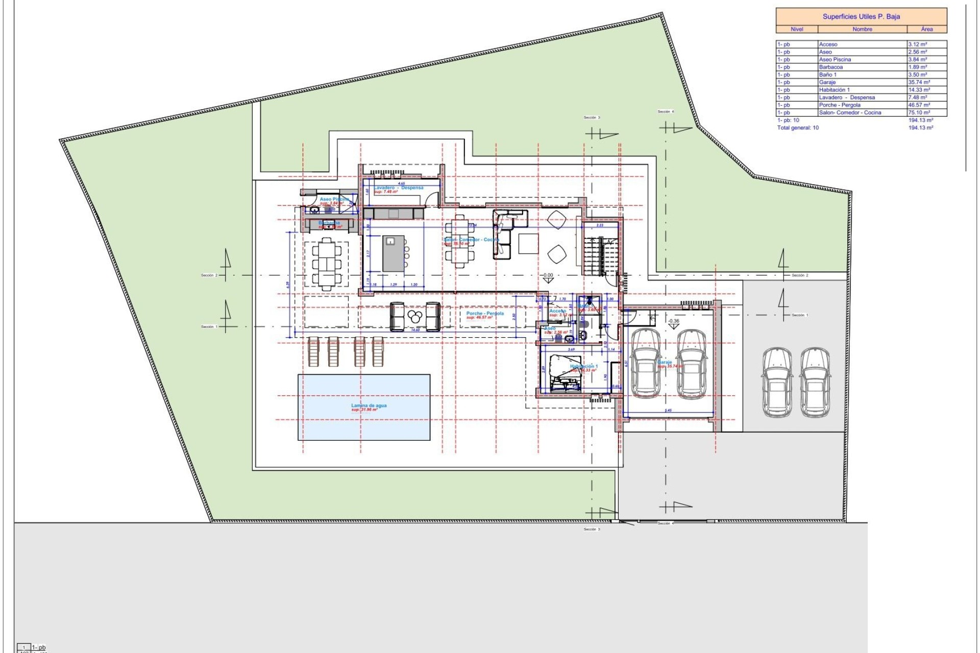
Die Villa erstreckt sich über zwei Etagen. Im Erdgeschoss bildet ein großzügiger, offener Wohn- und Essbereich mit moderner Küche das Herzstück des Hauses. Die Küche verfügt über eine Arbeitsinsel, die auch als Frühstückstheke genutzt werden kann, daneben befindet sich ein praktischer Hauswirtschaftsraum mit Stauraum und Platz für Waschgeräte. Außerdem gibt es auf dieser Ebene ein Schlafzimmer mit eigenem Bad und ein Gäste-WC. Große Schiebetüren lassen viel Tageslicht herein und bieten direkten Zugang zur Terrasse.
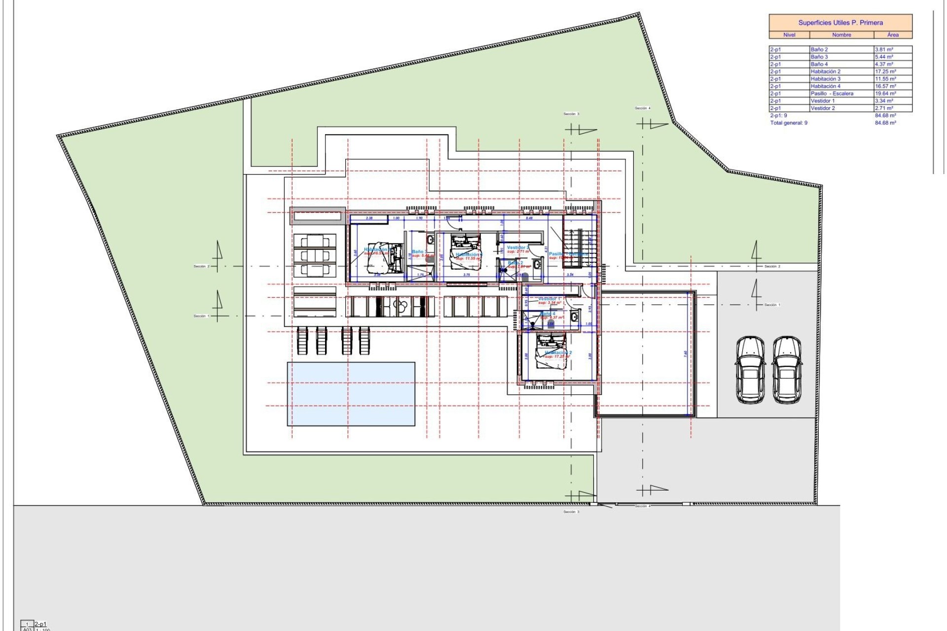
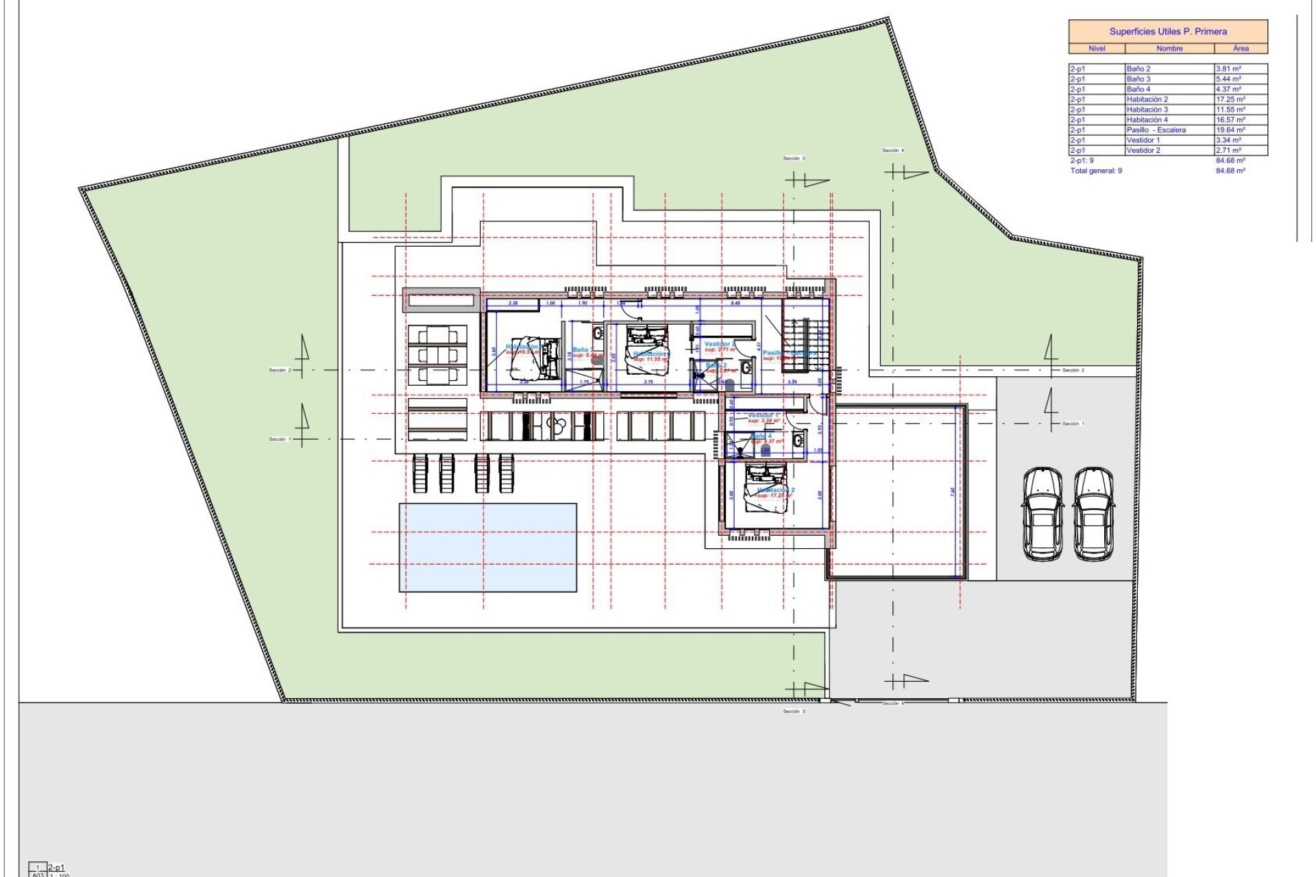
Über eine Innentreppe gelangen Sie in die obere Etage, die drei geräumige Schlafzimmer mit jeweils eigenem Bad umfasst. Zwei Schlafzimmer verfügen über begehbare Kleiderschränke, und die Master-Suite hat direkten Zugang zu einer Dachterrasse – ideal, um die Aussicht zu genießen.
Die Außenbereiche umfassen eine überdachte Terrasse, eine Sonnenterrasse rund um den 32 m² großen Pool sowie ein zusätzliches Außentoilette. Die Villa verfügt zudem über eine Garage für zwei Autos. Unterbodenheizung, Klimaanlage und Doppelverglasung sorgen für Komfort das ganze Jahr über.
Hauptmerkmale:
Diese Villa ist ideal für alle, die ein modernes, helles und ruhiges Zuhause in der Nähe von Calpe suchen, das Komfort, Stil und spektakuläre Meerblicke vereint.