Woonopp.
249m2Perceel
800m2Slaapkamers
3Badkamers
4Zwembad
12 x 5 m249m2
3
4
H-1632-CA
800m2
12 x 5 m
Deze luxueuze, gelijkvloerse villa biedt de perfecte combinatie van comfort, moderne stijl en hoogwaardige afwerking. Gelegen in de rustige wijk Pla Roig in Calpe, geniet de woning van een vredige omgeving en bevindt zich toch dichtbij winkels, restaurants, gezellige terrassen en prachtige stranden.
Ontworpen voor een open en ontspannen leefstijl, biedt deze elegante woning ruime interieurs, moderne voorzieningen en een naadloze overgang naar buiten — ideaal om het mediterrane klimaat het hele jaar door optimaal te benutten.
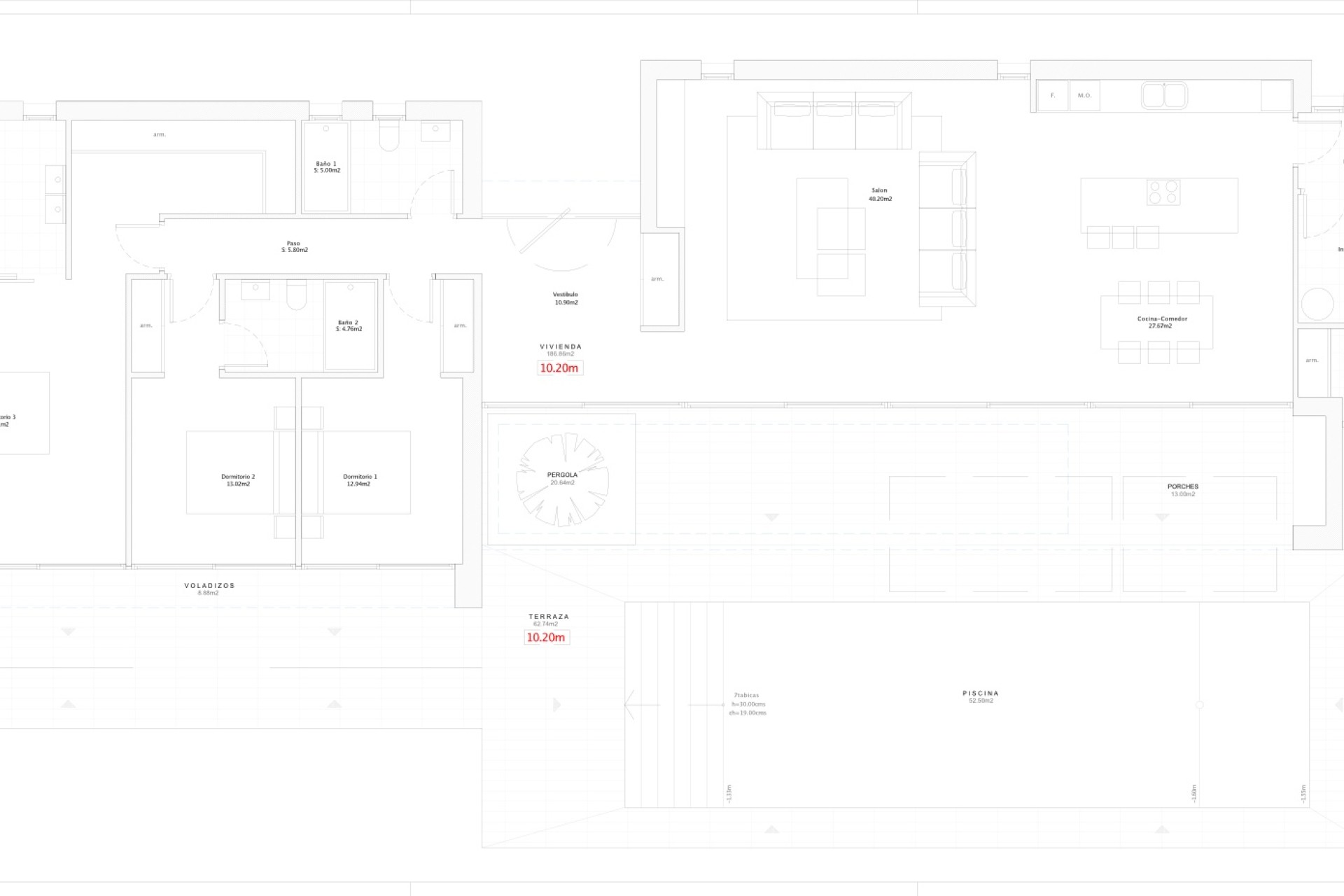
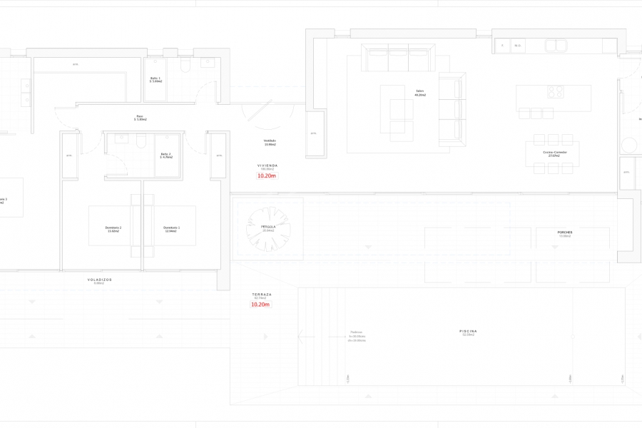
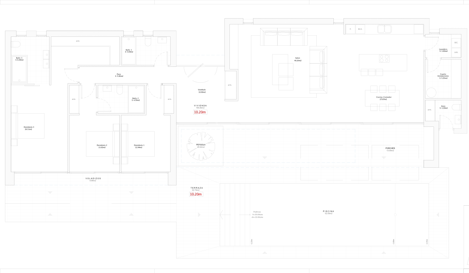
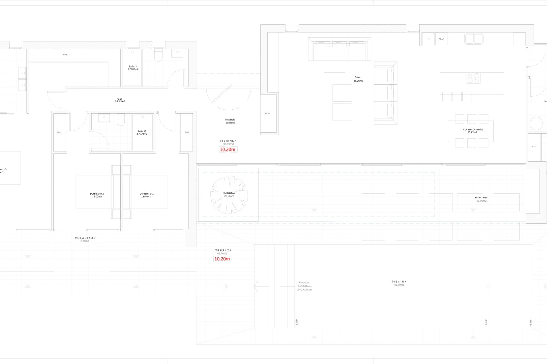
Bij binnenkomst leidt een ruime hal naar de verschillende delen van de woning. Aan de linkerkant bevindt zich de lichte woonkamer met aangrenzende eetruimte en moderne open keuken met kookeiland. De keuken is een echte blikvanger en volledig uitgerust met hoogwaardige Bosch apparatuur of gelijkwaardige merken. Aansluitend is er een praktische bijkeuken met wasruimte en extra bergruimte.
Aan de rechterkant van de hal ligt het slaapgedeelte. De master suite beschikt over een inloopkast en een eigen badkamer. Daarnaast is er een tweede slaapkamer met en-suite badkamer en een derde slaapkamer met toegang tot een badkamer in de gang.
Grote schuifpuien zorgen voor directe toegang tot het terras en de tuin, waardoor het huis veel natuurlijk licht binnenlaat en binnen- en buitenleven prachtig in elkaar overlopen.
De villa is voorzien van vloerverwarming via een warmtepomp, airconditioning, een geavanceerd domoticasysteem, Airzone thermostaten in elke ruimte, automatische rolluiken en een alarmsysteem — voor optimaal comfort en veiligheid.
Buiten vindt u een ruim terras met barbecue, een volledig uitgeruste buitenbadkamer en een zwembad van 52 m² met buitendouche. Er is parkeergelegenheid voor twee auto’s en de onderhoudsvriendelijke tuin biedt optimale privacy dankzij strategisch geplaatste cipressen.
Belangrijke kenmerken
Interesse in deze prachtige moderne villa? Neem contact met ons op voor meer informatie of om een bezichtiging te plannen — we helpen u graag verder.