Construit
249m2Terrain
800m2Chambres
3Salles de bain
4Piscine
12 x 5 m249m2
3
4
H-1632-CA
800m2
12 x 5 m
Cette luxueuse villa de plain-pied offre un parfait équilibre entre confort, style contemporain et finitions de haute qualité. Située dans le quartier calme de Pla Roig à Calpe, elle bénéficie d’un environnement paisible tout en étant proche des commodités, restaurants, terrasses conviviales et plages magnifiques.
Conçue pour un mode de vie ouvert et fluide, cette élégante propriété propose des intérieurs spacieux, des équipements modernes et une parfaite connexion avec les espaces extérieurs, idéale pour profiter du climat méditerranéen toute l’année.
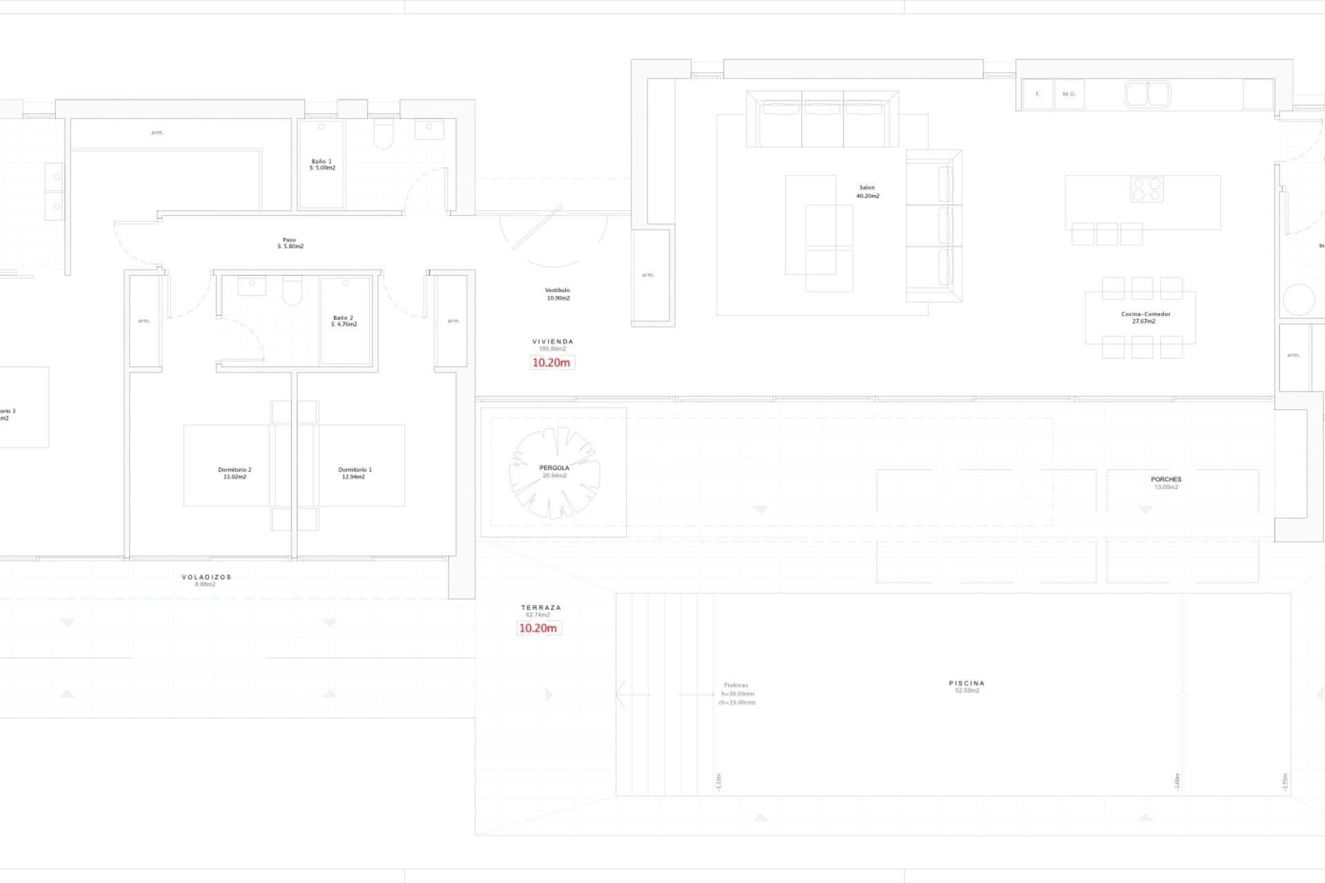
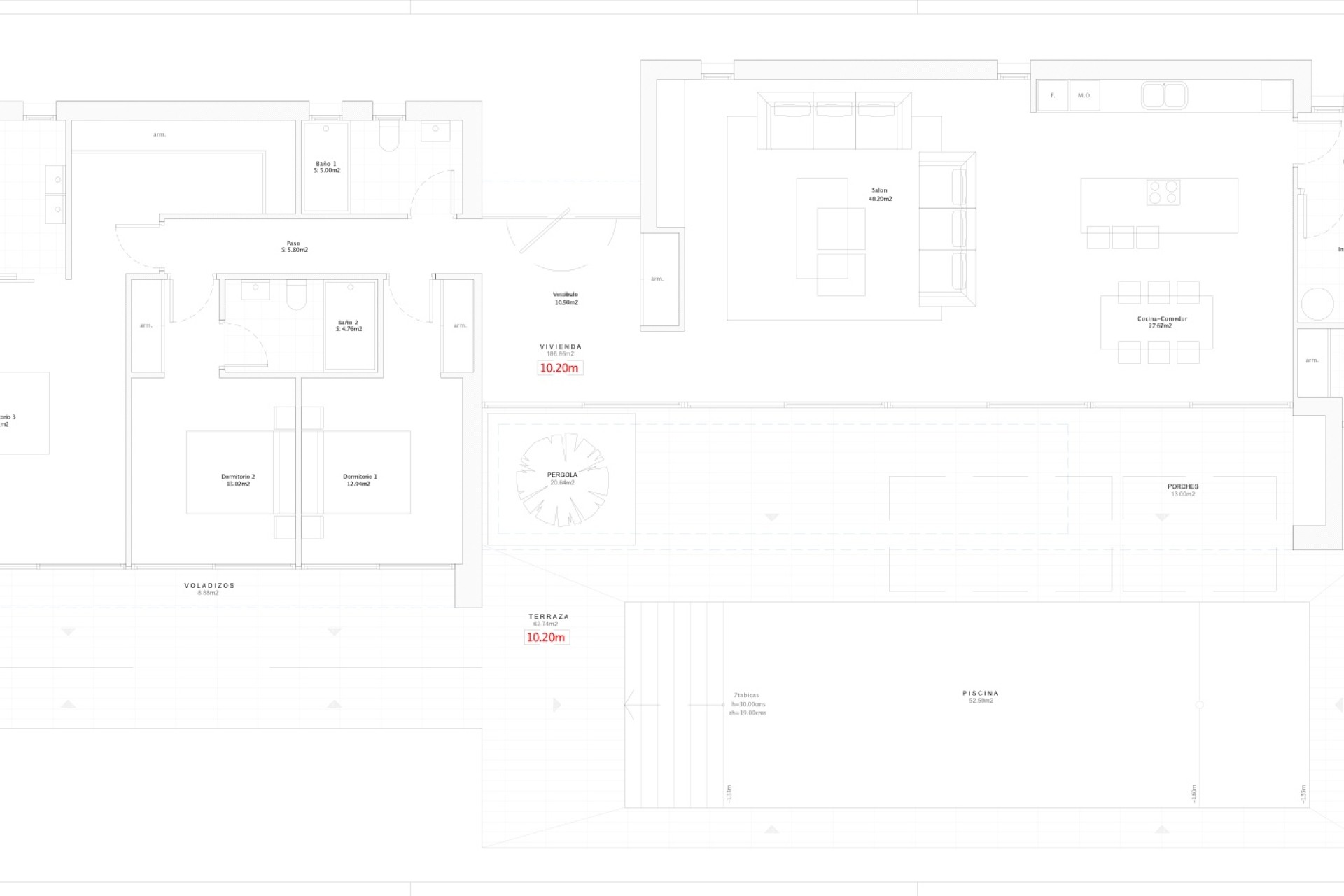
Dès l’entrée, un grand hall distribue les différentes pièces de la maison. Sur la gauche, vous découvrirez un salon lumineux ouvert sur la salle à manger et la cuisine moderne équipée d’un îlot central. La cuisine séduit par son design et sa fonctionnalité, avec des appareils électroménagers Bosch ou équivalents. À côté, une buanderie séparée offre un espace de rangement supplémentaire et des équipements de lavage.
À droite du hall se trouve l’espace nuit. La suite parentale dispose d’un dressing et d’une salle de bain privative. La deuxième chambre bénéficie également de sa propre salle de bain, tandis que la troisième chambre a accès à une salle d’eau indépendante située dans le couloir.
De larges baies vitrées dans les pièces à vivre et les chambres offrent un accès direct à la terrasse et au jardin, inondant l’intérieur de lumière naturelle et créant une transition harmonieuse entre intérieur et extérieur.
La villa est équipée d’un chauffage au sol via pompe à chaleur, de la climatisation, d’un système domotique avancé, de thermostats Airzone dans chaque pièce, de volets automatiques et d’une alarme, assurant un confort optimal et une grande sécurité.
À l’extérieur, la vaste terrasse dispose d’un espace barbecue, d’une salle de bain extérieure complète et d’une piscine de 52 m² avec douche extérieure. Deux places de parking sont prévues, et le jardin à faible entretien garantit une intimité totale grâce à des cyprès soigneusement plantés.
Caractéristiques principales
Intéressé par cette superbe villa moderne ? Contactez-nous pour plus d’informations ou pour organiser une visite — nous serons ravis de vous accompagner.