Woonopp.
359m2Perceel
1045m2Slaapkamers
4Badkamers
4Zwembad
12 x 5 m359m2
4
4
1
1
Onafhankelijk
2021
H-1384-AMB
1045m2
12 x 5 m
2
1m2
4
Zuiden
Wij zijn er trots op dit ongelooflijke project aan te kunnen bieden voor een op het zuiden gelegen villa met 4 slaapkamers en spectaculair uitzicht op zee dat zich uitstrekt over de baai van Altea en de kust tot Benidorm, een ideale locatie voor wie in een omgeving wil zijn waar luxe en privacy de boventoon voeren.
Deze prachtige villa heeft een goed doordacht modern ontwerp, buiten landschapsarchitectuur met natuurstenen muren en een interieur lay-out met enorme vloer tot plafond ramen waardoor de helderheid en het licht van de Middellandse Zee aanwezig zijn in alle kamers.
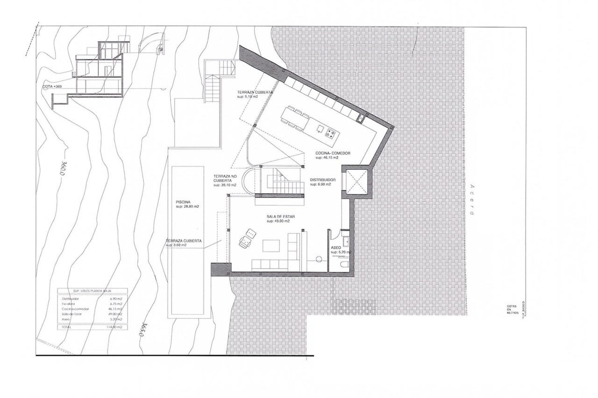
Aan de achterzijde van de villa is een oprit met parkeerruimte voor 2 auto's en een carport. Dit is ook waar we de hoofdingang van het pand vinden die uitkomt in een hal, met een spectaculair uitzicht op de baai, een centraal trappenhuis dat naar beneden kijkt in het hart van het huis en een lift.
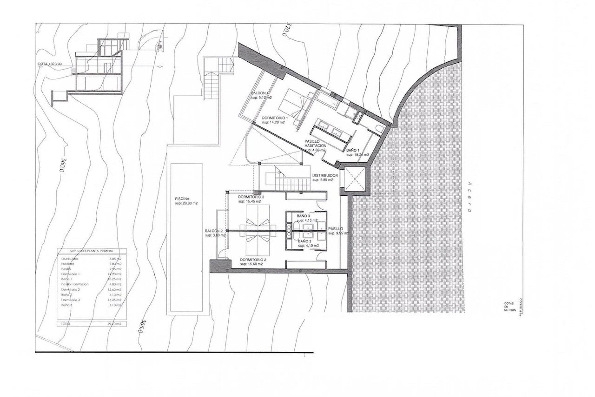
Op de volgende verdieping bevinden zich 2 slaapkamers in een vleugel van de Villa, met en-suite faciliteiten, royale garderoberuimte en voorzien van ijzeren balkons die opgaan in de zwart omlijste beglazing en de afwerking van het interieur. Er is een grote Master Suite in de tegenoverliggende vleugel met een adembenemend uitzicht, een balkon, complete badkamer en kleedruimte. Alle kamers hebben 3,3 m hoge plafonds. Deze verdieping heeft ook uitzicht op de woonkamer en keuken, omdat er een open galerij is die het gevoel van ruimte en helderheid vergroot.
Op de hoofdverdieping heeft de woonkamer van 50m2 dezelfde hoge plafonds, en toegang tot het ruime terras met zwembad van 11m x 2,5m. In deze vleugel is er ook een gastentoilet en een kantoorruimte. Aan de andere kant van het centrale trappenhuis is de grote keuken en eetkamer van 46,5 m2 met een zichtlijn naar de woonkamer en de open vide erboven. De keuken heeft een centraal eiland, volledig geïntegreerde apparatuur en een speciale bodega langs een muur. Dit wordt een zeer speciale keuken, ontworpen om te koken en te entertainen en met toegang tot de fantastische buitenruimte.
De kelderverdieping zal huis een studio appartement of speelkamer met de vloer tot het plafond ramen te openen naar het lagere terras voor een rustige, afgelegen gebied om te ontspannen en hebben ook toegang tot het lagere deel van het perceel.
Andere kenmerken van de villa zijn een domotica-systeem, vloerverwarming in het hele huis, verborgen LED-verlichting, hoogwaardige apparatuur, een eersteklas afwerking van de keuken en badkamers en een hoge energie-efficiëntie.