359m2
4
4
1
1
Independent
2021
H-1384-AMB
1045m2
12 x 5 m
2
1m2
4
South
We are proud to offer this incredible Project for a south facing, 4 Bedroom Villa with spectacular sea views stretching across the bay of Altea, and down to the coast to Benidorm, an ideal location for those wishing to be in an environment where luxury and privacy prevails.
This stunning villa has a well-thought-out modern design, outside landscaping with natural stone walls and an interior layout with huge floor-to-ceiling windows that allow the brightness and light of the Mediterranean to be present in all rooms.
Entering the plot from street level to the rear of the Villa is a driveway with a parking area for 2 cars, plus a carport. This is also where we find the main entrance of the property which opens into an entrance hallway, with a spectacular view of the bay, a central stairwell which looks down into the heart of the home and an elevator.
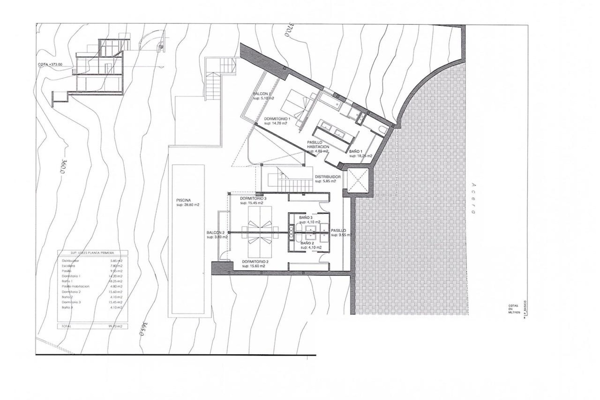
On the next floor will be 2 bedrooms on one wing of the Villa, with en-suite facilities, generous wardrobe space and feature iron balconies that blend into the black framed glazing and interior finishes. There is a large Master Suite on the opposite wing with breath-taking views, a balcony, full bathroom and dressing area. All rooms have 3.3m high ceilings. This floor will also have views down into the living area and kitchen as there is an open gallery adding to the sense of space and brightness.
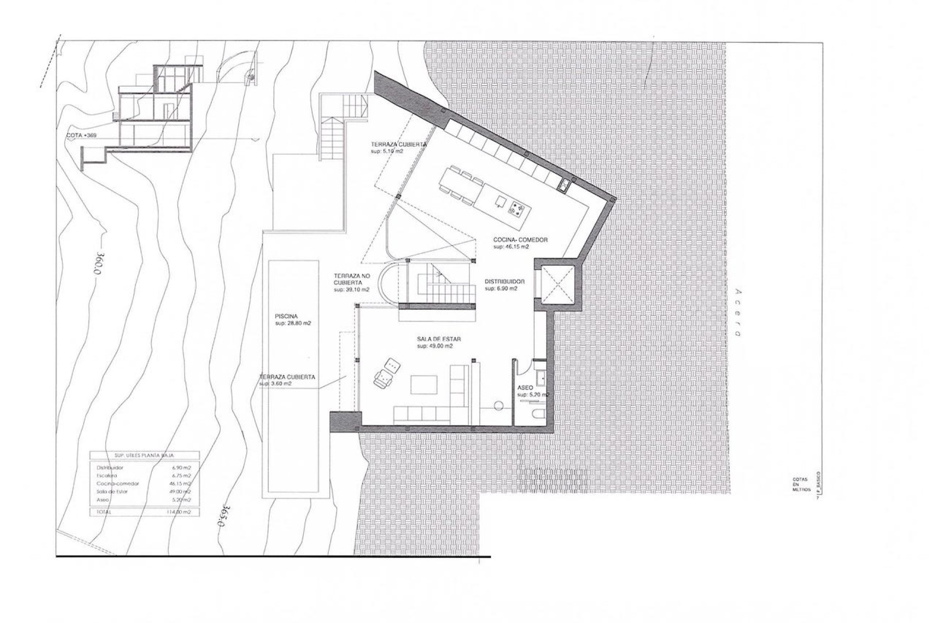
On the main floor, the living room of 50m2 has the same high ceilings, and access onto the spacious terrace with 11m x 2.5m pool. In this wing there is also a guest cloakroom and office area. To the opposite side of the central stairwell is the large 46.5m2 kitchen and dining area with a sight line into the lounge and the open void above. The kitchen will have a central island, fully integrated appliances and a special feature bodega along one wall, this will be a very special kitchen designed for cooking and entertaining and having access to the fantastic outside space.
The basement level will house a studio apartment or games room having floor to ceiling windows opening onto the lower terrace for a quiet, secluded area to relax and also have access to the lower part of the plot.
Other features of the Villa will include a domotica system, underfloor heating throughout, LED concealed lighting, high-end appliances, a first-class finish in the kitchen and bathrooms and a high energy efficiency rating.