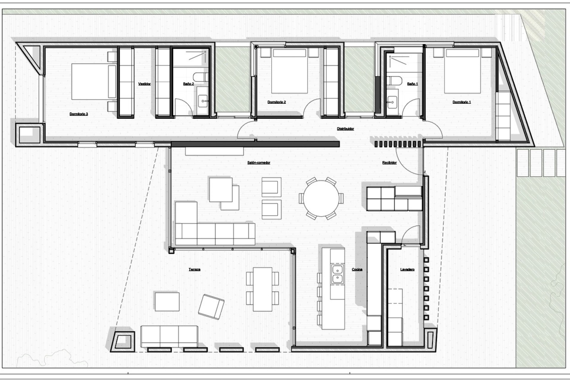
Woonopp.
215m2Perceel
1090m2Slaapkamers
3Badkamers
2Zwembad
12 x 5 m215m2
3
2
1
1
Onafhankelijk
2021
H-1377-AMB
1090m2
150 m2
12 x 5 m
2
1
3
Zuidoosten
7 Km.
90 Km.
1.5 Km.
2 Km.
Nieuw bouwsysteem, waarbij kwaliteit en snelheid worden gecombineerd.
Een geïndustrialiseerd systeem, gemaakt in de werkplaats, met onberispelijke afwerking en snelle uitvoering. Het eindproduct is een volledig afgewerkte woning met verschillende door de klant te kiezen afwerkingsniveaus, waarbij energie-efficiëntie, kwaliteit in het ontwerp en comfort van de woning het uitgangspunt zijn.
EEN PROJECT
Onze architect voert het project uit en begeleidt het project waar de opdrachtgever om vraagt. Studio waar architectuur en interieur samenkomen.
EEN REALITEIT
Samen met het bedrijf, dat gespecialiseerd is in de geïndustrialiseerde woningbouw, krijgt de klant over 6 maanden zijn huis.
Aangezien de bouw in de werkplaats wordt uitgevoerd, is de kwaliteit veel hoger, aangezien de stukken worden gemaakt door machines die op maat werken en niet door het personeel ter plaatse. Na afloop van het project met BIM-systemen gaat de informatie naar de fabriek waar alle onderdelen van het hele gebouw worden gedemonteerd en ter plaatse worden geassembleerd. Tijdens het ontwerpen van het project wordt een studie op maat van de klant gemaakt, vergezeld van techniek in het hele proces volgens de behoeften en eisen van deze; waar men zal kunnen kiezen tussen een grote verscheidenheid aan afwerkingen en kwaliteiten.
VERKORTING VAN DE BOUWTIJD EN CONTROLE VAN DE UITGAVEN
Het begin van het werk is verdeeld in twee belangrijke delen, het civiele werk en de geïndustrialiseerde bouw. Terwijl ter plaatse alles wordt gedaan wat nodig is voor de voorbereiding van het terrein, de aansluitingen, de funderingen, enz. wordt in de fabriek alles gedaan wat nodig is om het gebouw te monteren, inclusief de installaties, de afwerking, enz. Daarom stelt het geïndustrialiseerde systeem ons in staat om het gebouw in een korte tijd te bouwen en alle kosten te beheersen zonder onvoorziene gebeurtenissen tijdens de uitvoering van het project.
VERBETERING VAN DE MILIEUEFFECTEN TIJDENS EN NA DE BOUW
Aangezien het een droge en geïndustrialiseerde constructie is, die in de werkplaats wordt uitgevoerd, heeft het geen invloed op het milieu op de plaats waar het gebouw zich bevindt, waardoor grote hoeveelheden stof, transportkosten of andere vervuilende stoffen die typisch zijn voor de traditionele bouw worden vermeden. De constructie, gemaakt met natuurlijke materialen in het overgrote deel, vermindert ook de impact op het milieu. Het systeem dat gebruikt wordt in de geïndustrialiseerde bouw is veel efficiënter in termen van thermische en akoestische isolatie, wat leidt tot aanzienlijke energiebesparingen, dat wil zeggen met minder elektriciteit kunnen we alle delen van het gebouw klimatiseren.
INTEGRALE SERVICE
Wij voeren alle procedures, projecten en interieurprojecten uit, vanaf het idee tot en met de oplevering van de werkzaamheden. Wat we een FULL DESIGN noemen.
HOE DOEN WE DAT?
RESUMEREND Wij voeren een studie uit naar de kenmerken van de klant en naar de smaken en affiniteiten. We luisteren naar hun veronderstellingen, om te weten hoe ze willen leven.
HET IDEE Met de verzamelde informatie ontwikkelen we het idee uitgebreider, zodat de klant het kan begrijpen. Dankzij de technologische vooruitgang die we tot onze beschikking hebben, komt de visualisatie ervan zo dicht mogelijk bij de werkelijkheid.
PROJECT We werken het project uit op basis van optimale kwaliteitsparameters. Wij definiëren alle onderdelen die gericht zijn op ECO-ARCHITECTURE, voor een verantwoorde en geëngageerde exploitatie van het gebouw met de omgeving. De klant wordt de mogelijkheid geboden van een integrale service inclusief de inrichting van het huis (afwerking, verlichting, meubilair, etc.).
WERK Wij controleren de realisatie van onze gebouwen minutieus via onze PROJECT MANAGER service. Wij zorgen voor het kleinste detail in het ontwerp van het werk. Hierdoor zijn de gebouwen van de hoogste kwaliteit.
GEVENTILEERDE FUNDERINGSPLAAT VAN GEWAPEND BETON VOLGENS CONSTRUCTIEBEREKENING OF SANITAIRE PLAAT, AFHANKELIJK VAN DE WEERSTAND VAN DE GROND EN HET TYPE GEBOUW.
Het omvat het reinigen en opruimen van het terrein, het uitgraven van sleuven voor funderingen, evenals het uitgraven van sleuven voor de doorgang van voorzieningen (riolering, elektriciteit, wateraansluitingen, ...), bodemverdichting en het reinigen van beton waarop de funderingsschoen, gemaakt van gewapend beton HA-25, moet worden gebouwd.
In het geval van wanden in kelders of voor de grondinperking wordt gebruik gemaakt van HA-25 gewapend betonnen wanden met een dikte volgens de constructieberekeningen, met de waterdichtingsplaat aan de buitenzijde van de wand, alsmede een plaat en een afvoerbuis voor de omtrek.
Opmerking: Het budget is indicatief totdat een geotechnische studie beschikbaar is, aansluiting op het elektriciteitsnet is niet inbegrepen.
GEVELS EN PLATEN
DE STRUCTUUR IS GEMAAKT MET BEHULP VAN HET GEPREFABRICEERDE WESPANEL SYSTEEM
Het WES-systeem is ontwikkeld om te voldoen aan de huidige eisen van de CTE en om het hoogst mogelijke niveau van comfort te bereiken, en wordt ondersteund door talrijke certificeringen die de kwaliteit ervan bewijzen.