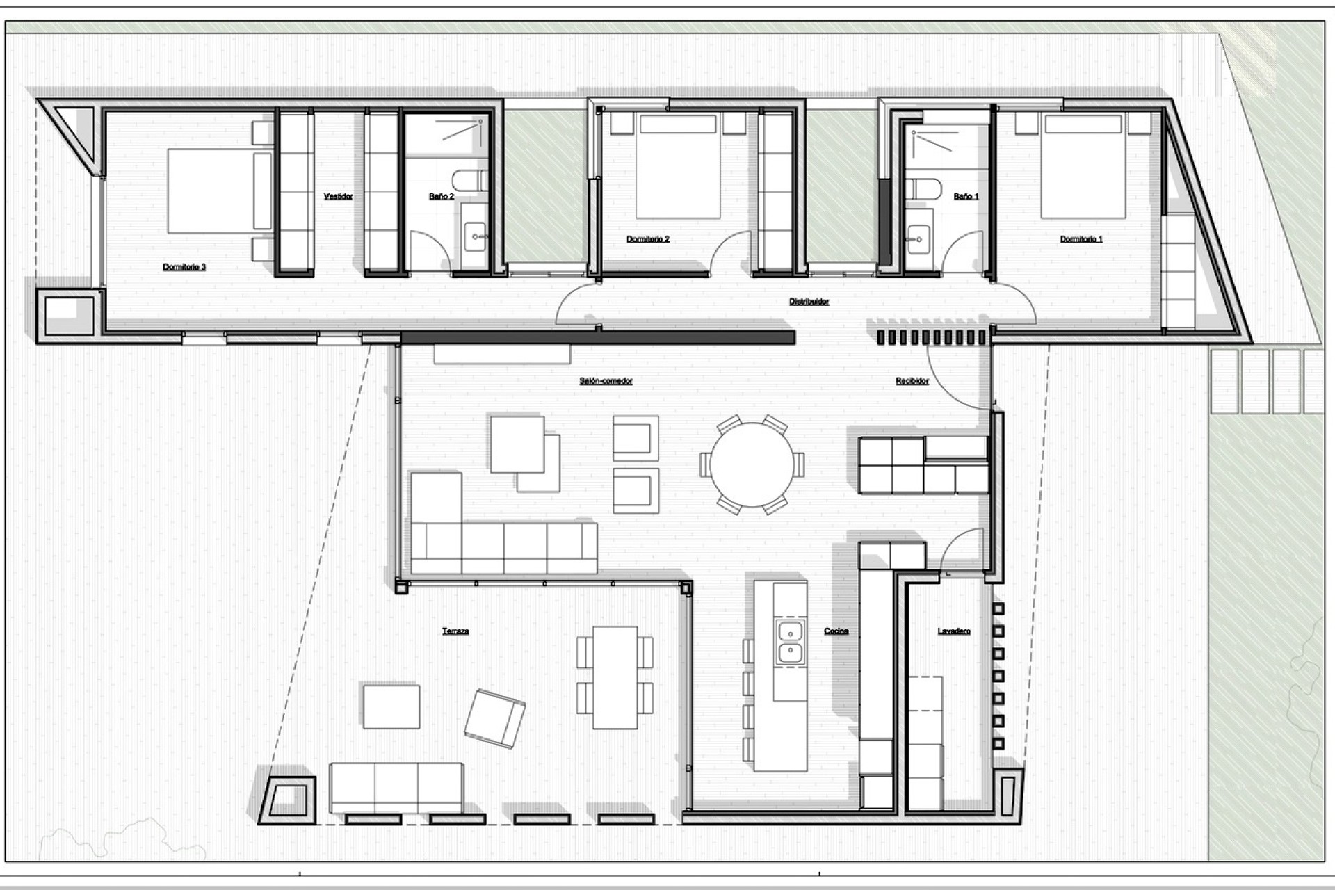
Construit
215m2Terrain
1090m2Chambres
3Salles de bain
2Piscine
12 x 5 m215m2
3
2
1
1
Indépendant
2021
H-1377-AMB
1090m2
150 m2
12 x 5 m
2
1
3
Sud-est
7 Km.
90 Km.
1.5 Km.
2 Km.
Nouveau système de construction, où qualité et rapidité sont combinées.
Un système industrialisé, fabriqué en atelier, avec des finitions impeccables et une exécution rapide. Le produit final est une maison totalement finie, avec différents niveaux de finitions à choisir par le client, où le principe fondamental est l'efficacité énergétique, la qualité de la conception et le confort de la maison.
UN PROJET
Notre architecte réalise et supervise le projet que le client demande. Studio où l'architecture et le design d'intérieur se rejoignent.
UNE RÉALITÉ
Avec l'entreprise, spécialisée dans la construction de logements industrialisés, le client obtiendra sa maison en 6 mois.
Comme la construction est réalisée dans l'atelier, la qualité est beaucoup plus élevée, car les pièces sont fabriquées par des machines avec des travaux sur mesure et non par le personnel sur place. Une fois le projet terminé avec les systèmes BIM, l'information est envoyée à l'usine où toutes les pièces qui composent l'ensemble du bâtiment sont démontées et assemblées sur place. Lors de la rédaction du projet une étude est faite sur mesure du client, accompagnée de technique dans tout le processus selon les besoins et les exigences de celui-ci ; où il pourra choisir entre une grande variété de finitions et de qualités.
LA RÉDUCTION DU TEMPS DE CONSTRUCTION ET LE CONTRÔLE DES DÉPENSES
Le début des travaux est divisé en deux parties importantes, le génie civil et la construction industrialisée. Alors que tout ce qui est nécessaire est fait sur le site en termes de préparation du terrain, de raccordements, de fondations, etc. dans l'usine, tout ce qui est nécessaire est fait pour assembler le bâtiment, y compris les installations, les finitions, etc. Par conséquent, le système industrialisé nous permet de construire le bâtiment en peu de temps et de contrôler absolument toutes les dépenses sans aucun imprévu pendant l'exécution du projet.
AMÉLIORATION DE L'IMPACT ENVIRONNEMENTAL PENDANT ET APRÈS LA CONSTRUCTION
Comme il s'agit d'une construction sèche et industrialisée, qui est réalisée dans l'atelier, elle ne produit pas d'impact environnemental sur le lieu où se trouve le bâtiment, ce qui évite de grandes quantités de poussière, les coûts de transport ou d'autres contaminants typiques de la construction traditionnelle. La construction, réalisée avec des matériaux naturels dans sa grande majorité, réduit également l'impact environnemental. Le système utilisé dans la construction industrialisée est beaucoup plus efficace en termes d'isolation thermique et acoustique, ce qui entraîne des économies d'énergie considérables, c'est-à-dire qu'avec moins d'électricité, nous pouvons climatiser toutes les zones du bâtiment.
SERVICE INTÉGRAL
Nous réalisons toutes les procédures, les projets et le projet d'aménagement intérieur, depuis l'idée, jusqu'à ce qu'elle devienne réalité avec l'achèvement des travaux. Ce que nous appelons un DESIGN COMPLET.
COMMENT FAIRE ? COLLECTE D'INFORMATIONS Nous effectuons une étude des caractéristiques du client ainsi que de ses goûts et affinités. Nous écoutons leurs locaux, pour savoir comment ils veulent vivre.
L'IDÉE Avec les informations recueillies, nous développons l'idée de manière plus exhaustive afin que le client puisse la comprendre. Grâce aux progrès technologiques dont nous disposons, sa visualisation est aussi proche que possible de la réalité.
PROJET Nous élaborons le projet sur la base de paramètres de qualité optimale. Nous définissons toutes les composantes orientées vers l'ECO-ARCHITECTURE, pour un fonctionnement responsable et engagé du bâtiment avec l'environnement. Le client se voit offrir la possibilité d'un service intégral comprenant la conception de l'intérieur de la maison (finitions, éclairage, mobilier, etc.)
TRAVAUX Nous contrôlons de manière exhaustive la réalisation de nos bâtiments par le biais de notre service PROJECT MANAGER. Nous prenons soin du moindre détail dans la conception de l'œuvre. Il en résulte des bâtiments de la plus haute qualité.
MOUVEMENT DE TERRE, FONDATION AU MOYEN DE SEMELLES, DE DALLES OU DE MURS DE SOUTÈNEMENT.
Il comprend le nettoyage et le défrichage du terrain, l'excavation de tranchées pour les fondations, ainsi que l'excavation de tranchées pour le passage d'installations (égouts, électricité, branchements d'eau, ...), le compactage du sol et le nettoyage du béton sur lequel sera construit le sabot de fondation, en béton armé HA-25.
Dans le cas de murs dans des sous-sols ou pour le confinement des terres, ceux-ci seront réalisés à l'aide de murs en béton armé HA-25 d'une épaisseur conforme aux calculs de structure, avec la feuille d'étanchéité à l'extérieur du mur, ainsi qu'une feuille et un tuyau de drainage sur le périmètre.
Note : Le budget sera indicatif jusqu'à ce qu'une étude géotechnique soit disponible, le raccordement au réseau n'étant pas inclus.
LA STRUCTURE EST RÉALISÉE À L'AIDE DU SYSTÈME DE PANNEAUX PRÉFABRIQUÉS WESPANEL
Le système WES a été développé pour répondre aux exigences actuelles du CTE et pour atteindre le plus haut niveau de confort possible, et est soutenu par de nombreuses certifications qui prouvent sa qualité.