New build villa for sale in Moraira in Ibiza style with 4 bedrooms, private pool, underfloor heating and carport. Located in Pinar de l'Advocat, ideal for living or investing on the Costa Blanca.
Located in the Pinar de l'Advocat neighbourhood, within walking distance of the centre of Moraira. Here you will find restaurants, shops, a marina and a sandy beach. Moraira is a sought-after destination and therefore suitable for year-round living or investment.
Description
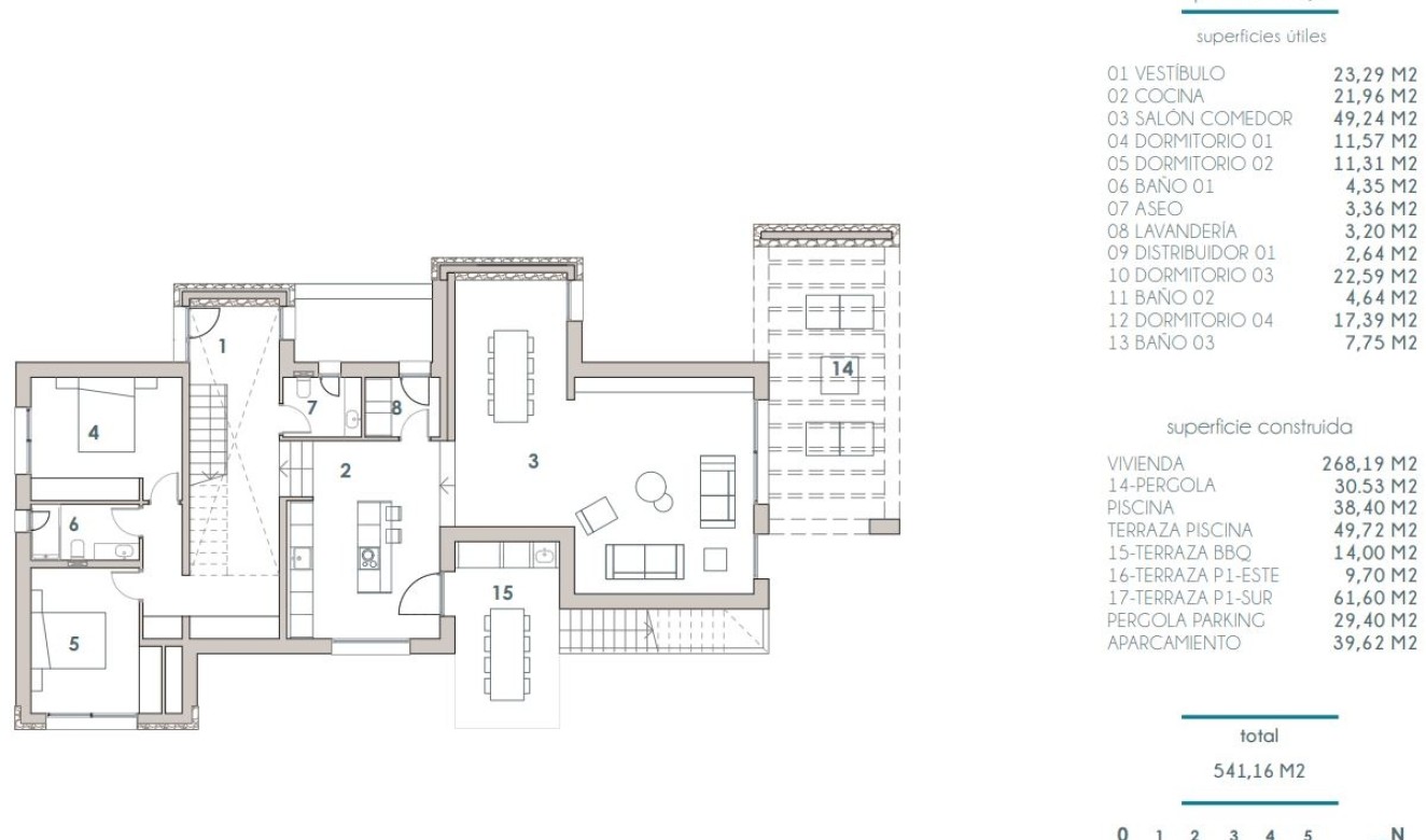
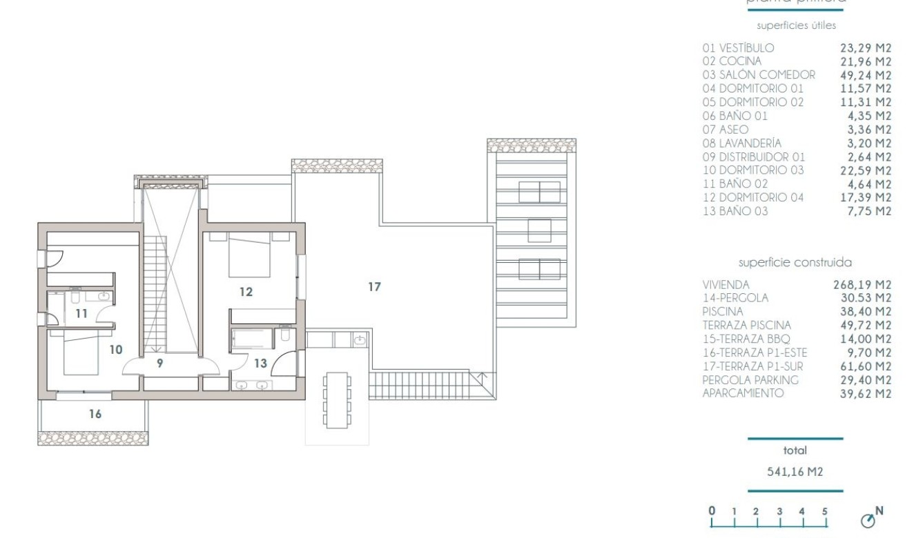
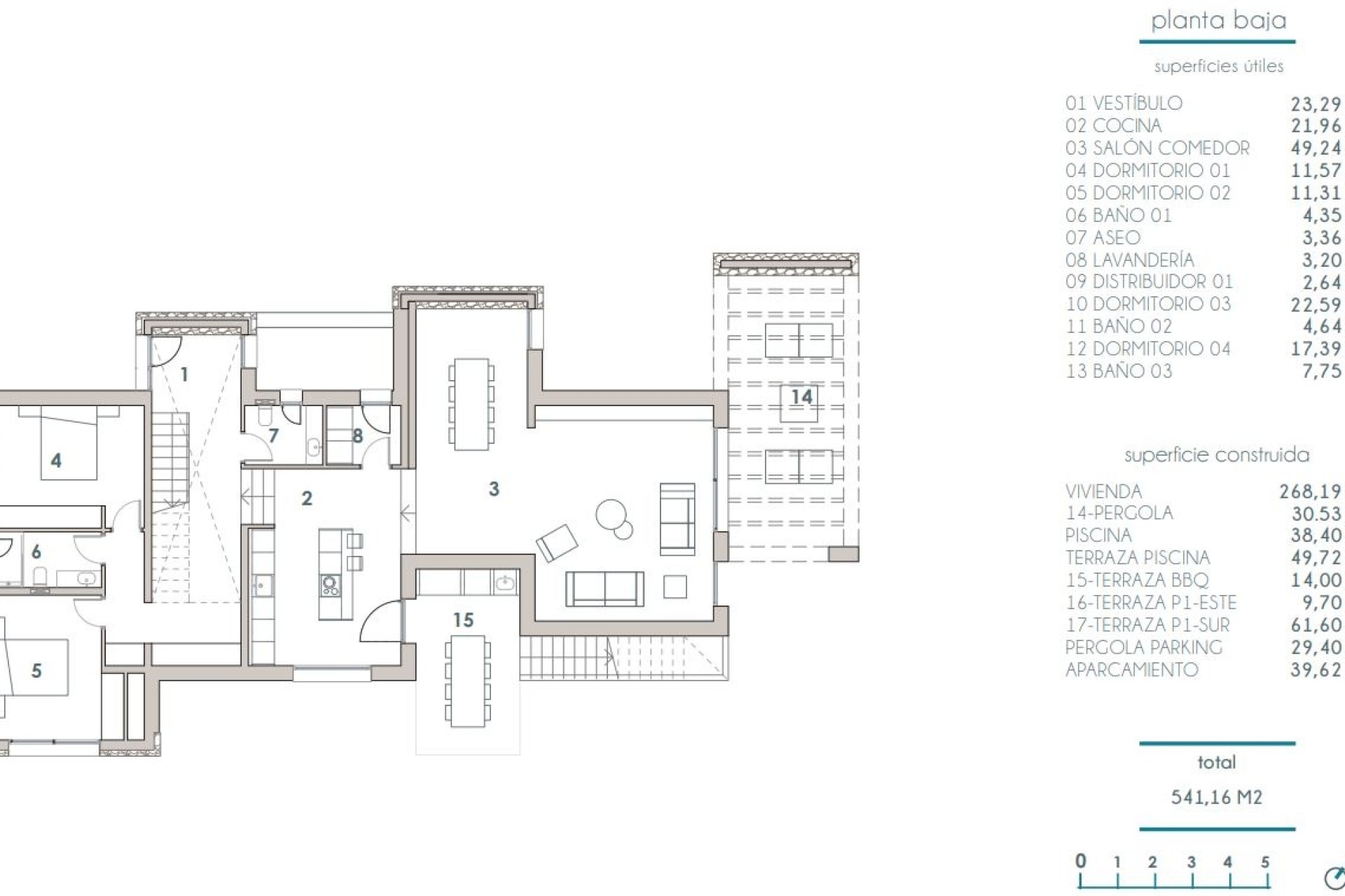
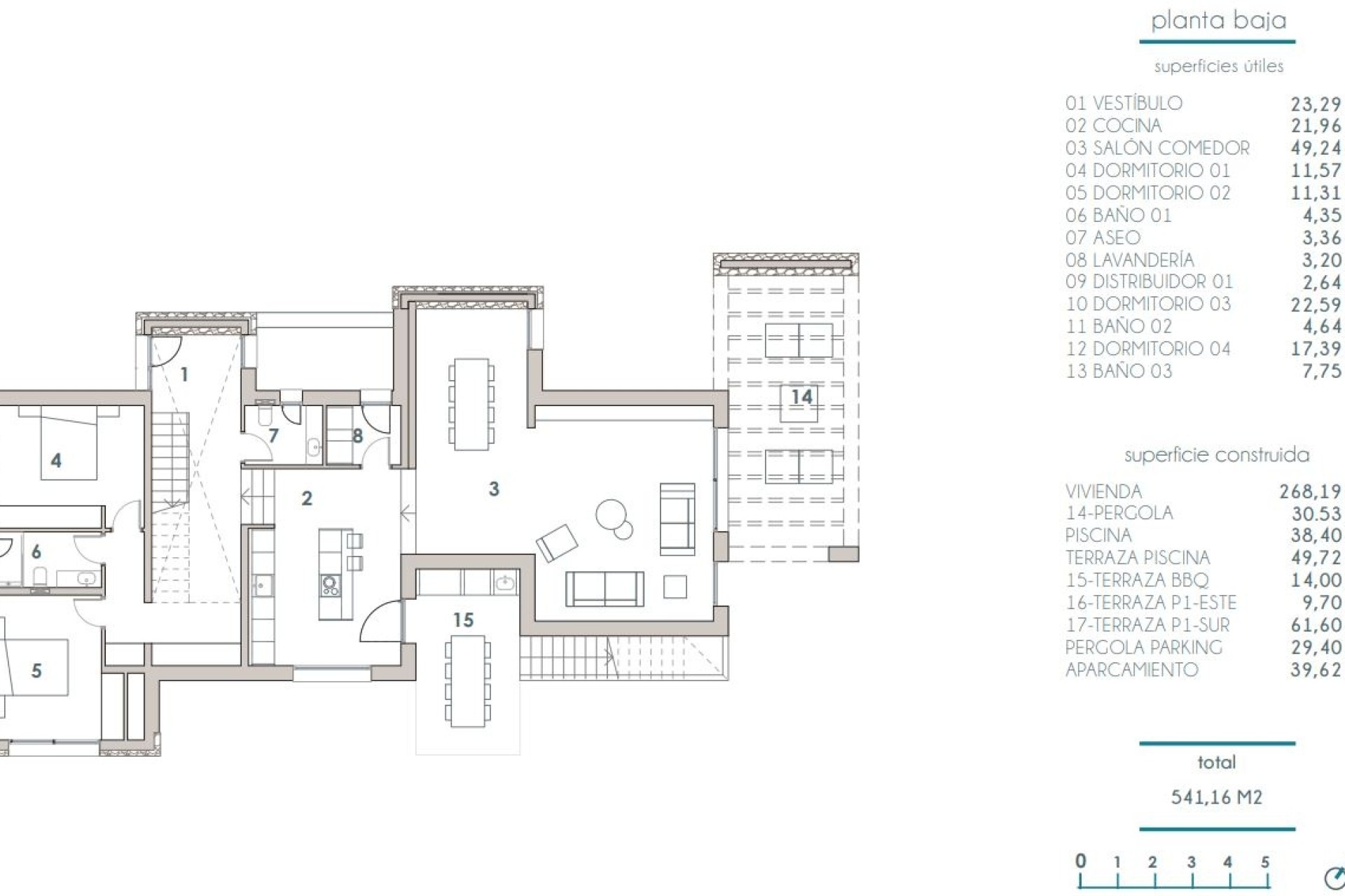
The villa has two floors and features a spacious living and dining room with open kitchen. There are four bedrooms, two of which have en-suite bathrooms, complemented by a separate family bathroom, a guest toilet and a practical laundry room.
Outside, the covered terrace connects to the swimming pool and the spacious sun terrace. The summer kitchen with barbecue makes the outdoor area functional in every season. The garden is low-maintenance and there is a carport for two vehicles.
The property is equipped with underfloor heating, air conditioning via ducts with thermostat per room, double glazing and an outdoor shower.
Details
Villa for sale in MorairaNew build in Ibiza style4 bedrooms, 3 bathrooms + guest toiletPrivate swimming pool with sun terraceSummer kitchen and outdoor showerUnderfloor heating and air conditioningCarport for 2 carsWhy view this villa
Being built in the sought-after MorairaComfortable, stylish and functionalWalking distance to amenitiesLow-maintenance gardenRetains its valueA property with a strong balance between location, quality, layout and future value in Moraira.
We would be happy to inform you about the possibilities of this new build project. Contact one of our staff members today.