Villas · Bestaande woningen Moraira Moraira · Alicante (Costa Blanca)

Villas · Bestaande woningen Moraira Moraira · Alicante (Costa Blanca)

Belangrijkste Kenmerken

Villa te koop in Moraira, Moravit

  • Woonopp.

    235m2
  • Perceel

    1055m2
  • Slaapkamers

    4
  • Badkamers

    3
  • Zwembad

    12 x 5 m

Kenmerken

Gebouwd:

235m2

Slaapkamers:

4

Badkamers:

3

Toiletten:

3

Vergaderingen:

1

Eetkamers:

1

Keuken:

Onafhankelijk

Jaar van constructie:

1987

Eigendom ID:

H-1954-CA

Plot:

1055m2

Balkon:

250 m2

Zwembad:

12 x 5 m

Parkeerplaatsen:

2

Vergaderingen:

1

In loop kasten:

3

Oriëntering:

Zuiden

Afstand naar het strand:

0.6 Km.

Afstand naar vliegveld:

90 Km.

Afstand tot golfterrein:

1.5 Km.

Raam: Dubbel glas
Airconditioning
Satellite TV
Uitzicht: Zee
Pool: Privaat
Pool: Aangepast ontwerp
Verwarming: A/C
Parking: Beschikbaar
Internet beschikbaar
Terras: Overdekt
Opslagruimte
Omheind perceel
Haard
Tuin: Prachtig aangelegd
Keuken: Open
Meubilair: Bespreekbaar
Parking: Van de weg af
Water: Wateraansluiting
Apart gastenappartement
Loop naar winkels
Keuken: Volledig uitgerust
Tuin: Makkelijk onderhoud
Terras
Balkon
Loop naar winkels

Beschrijving

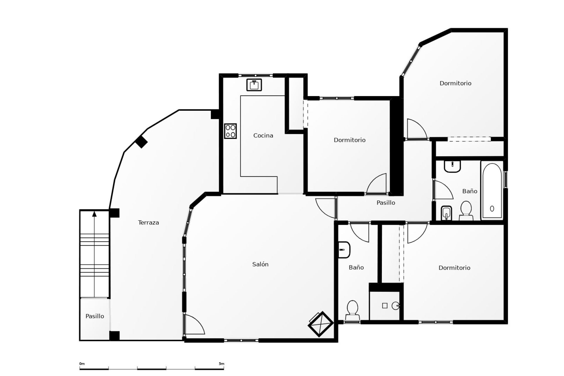
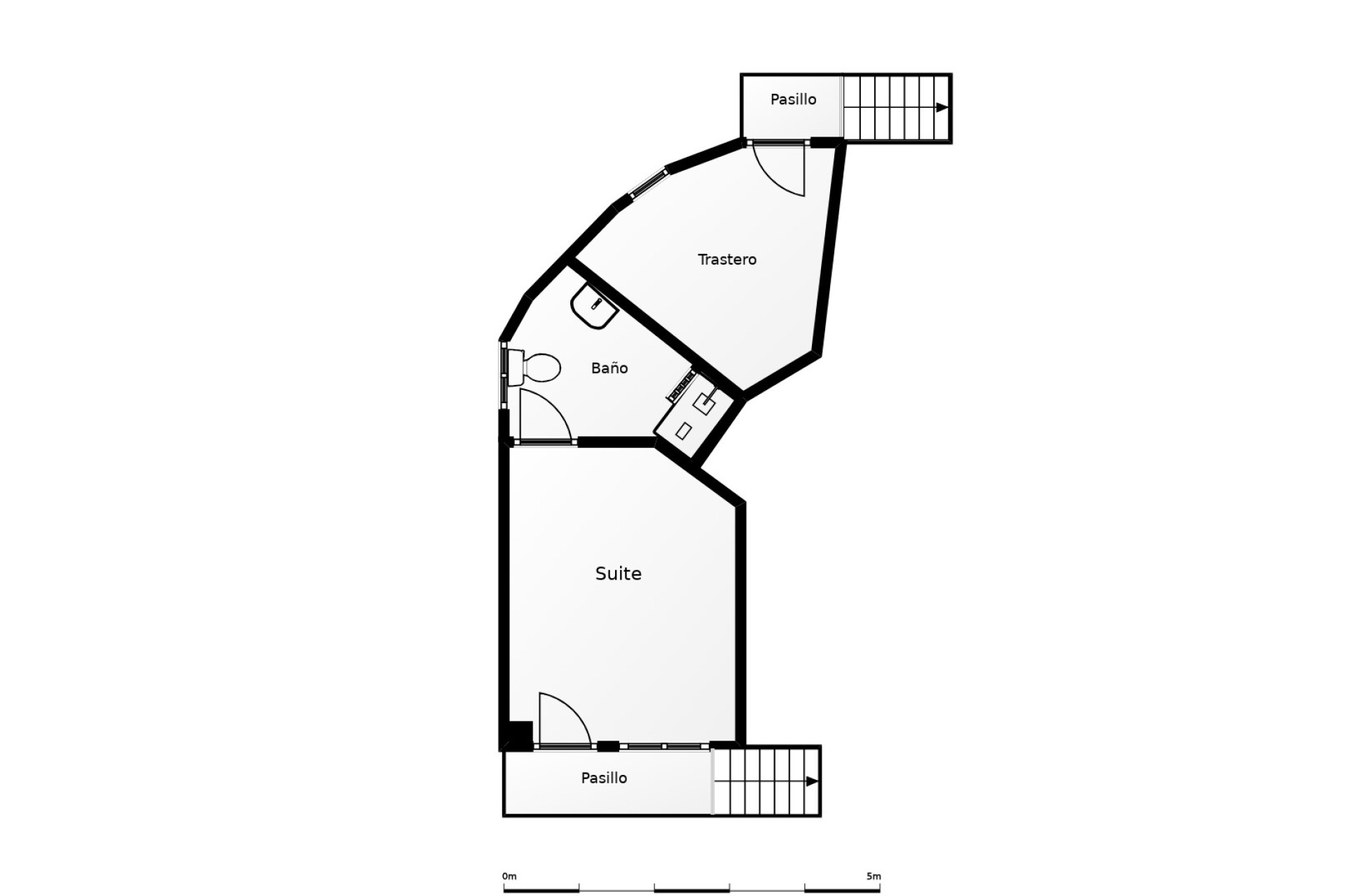
Plannen

Casas Ambiente

Casas Ambiente

Doe een Navraag

WhatsApp Contact door Whatsapp
Responsable del tratamiento: Casas Ambiente Moraira, SL, Finalidad del tratamiento: Gestión y control de los servicios ofrecidos a través de la página Web de Servicios inmobiliarios, Envío de información a traves de newsletter y otros, Legitimación: Por consentimiento, Destinatarios: No se cederan los datos, salvo para elaborar contabilidad, Derechos de las personas interesadas: Acceder, rectificar y suprimir los datos, solicitar la portabilidad de los mismos, oponerse altratamiento y solicitar la limitación de éste, Procedencia de los datos: El Propio interesado, Información Adicional: Puede consultarse la información adicional y detallada sobre protección de datos Aquí.
WhatsApp