Woonopp.
177m2Perceel
765m2Slaapkamers
4Badkamers
4Zwembad
12 x 5 m177m2
4
4
2
2
1975
2025
H-1929-AMB
765m2
12 x 5 m
2
2
4
Zuiden
80 Km.
Gerenoveerde villa met twee zelfstandige appartementen te koop in Los Pinos, Calpe
Gelegen in de gewilde urbanisatie Los Pinos in Calpe biedt deze gerenoveerde villa een uitstekende kans om een woning te bezitten op een toplocatie. Op loopafstand van de stranden van Calpe, het centrum en lokale voorzieningen zoals restaurants, cafés en winkels, en slechts tien minuten rijden naar Moraira, een andere populaire badplaats.
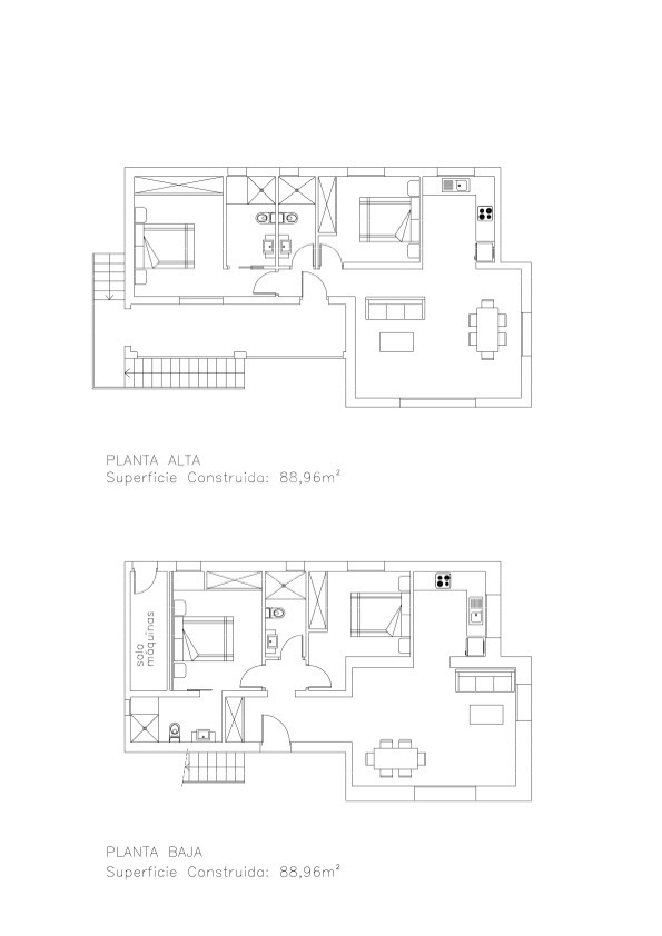
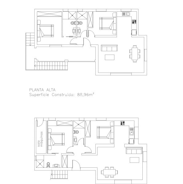
Vanaf de rustige straat heeft de villa twee aparte opritten met parkeergelegenheid op eigen terrein. De woning is verdeeld in twee volledig zelfstandige appartementen, één op elke verdieping, die onafhankelijk kunnen functioneren dankzij een fotovoltaïsch systeem dat tot 10 kW kan opwekken met een batterijopslag van 19,2 kWh.
Elke verdieping beslaat ongeveer 89 m² en beschikt over een lichte, open woon- en eetkamer met grote ramen, open zuidgerichte uitzichten en een volledig uitgeruste keuken. Beide appartementen hebben twee tweepersoonsslaapkamers, waarvan één met ensuite badkamer, en een moderne badkamer. Vloerverwarming, warmtepompen en airconditioning zorgen het hele jaar door voor comfort.
De villa heeft een zuidgerichte ligging met open en een klein zeezicht. De onderhoudsvriendelijke tuin omringt de woning, terwijl het zwembadterras met het niervormige zwembad de hele dag zon geniet. Een barbecue en een eetgedeelte buiten met uitzicht op het zwembad creëren een ideale setting voor gezellig buitenleven. Extra voorzieningen zijn onder meer een alarmsysteem, elektrische poorten, één jaar onderhoud van zwembad en tuin inbegrepen, en een Energiecertificaat A, wat uitstekende energie-efficiëntie garandeert.
Belangrijkste kenmerken:
Bent u op zoek naar een veelzijdige, goed gelegen villa met de flexibiliteit van twee zelfstandige appartementen en moderne gemakken? Neem dan vandaag nog contact met ons op om een bezichtiging te regelen!