130m2
3
2
1
1
1
Onafhankelijk
H-1925-CA
345m2
50 m2
12 x 5 m
1
1
2
Westen
85 Km.
Charmante woning met 3 slaapkamers in Benitachell met vrij uitzicht en gemeenschappelijk zwembad met apart kinderbad
Deze charmante woning in Benitachell biedt een comfortabel woongevoel met vrij uitzicht op het westen en een warme, uitnodigende sfeer. Verdeeld over twee verdiepingen combineert het huis praktische indeling met rustieke charme, ideaal voor gezinnen of voor wie een rustige plek dicht bij de natuur zoekt. Plafondventilatoren in alle kamers, gedeeltelijke airconditioning, een gezellige open haard en elektrische radiatoren zorgen het hele jaar door voor comfort.
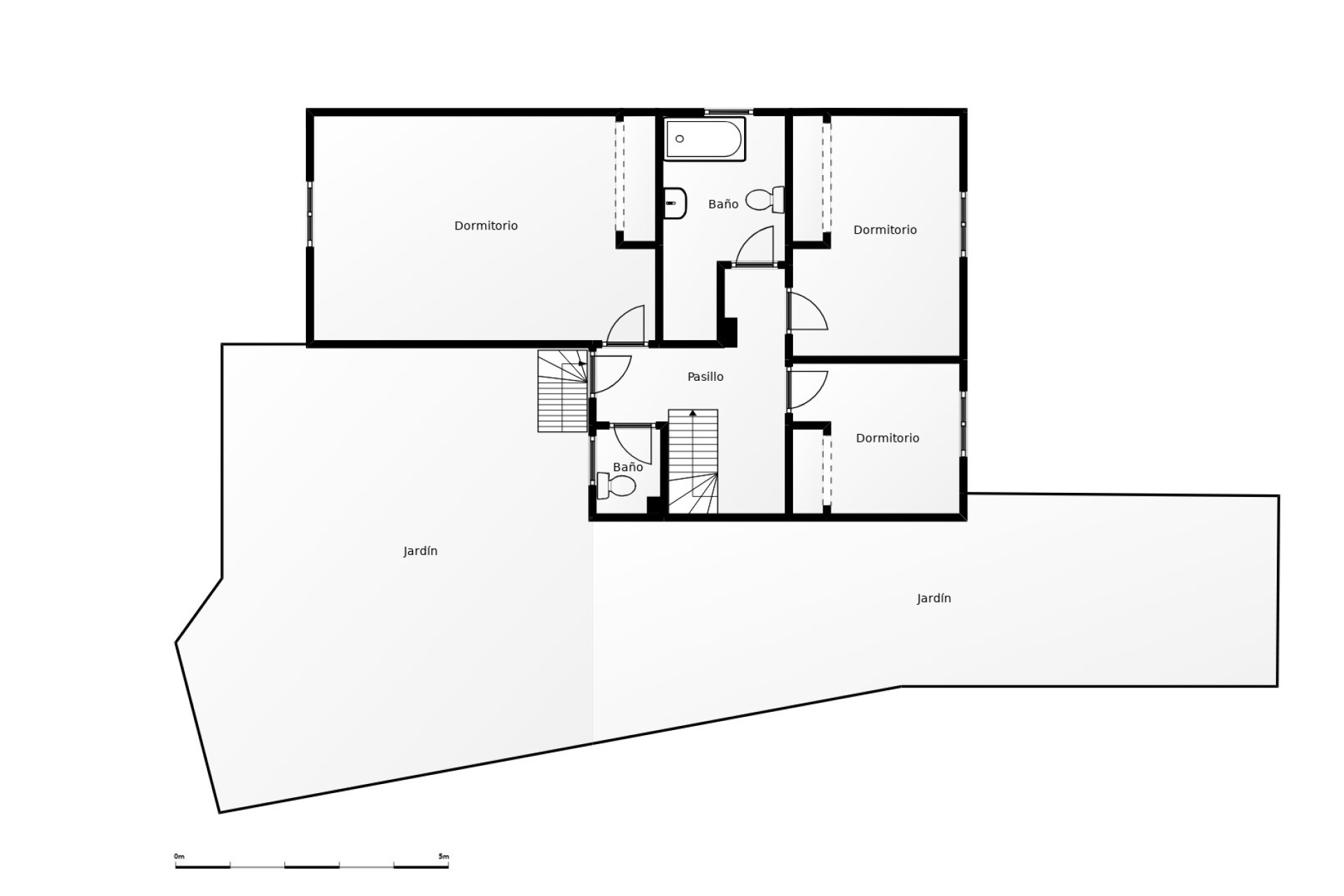
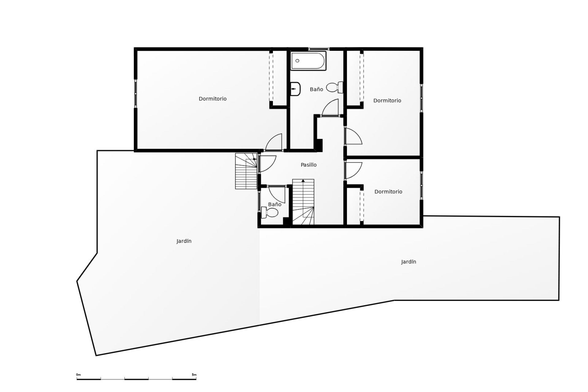
Bij binnenkomst vindt u rechts een gastentoilet en links de hoofdslaapkamer met airconditioning. Op dezelfde verdieping bevinden zich ook een extra tweepersoonsslaapkamer, een eenpersoonskamer, een badkamer en een kleine zitruimte.
Boven opent de woning zich naar een ruime indeling met een aparte keuken, nog een badkamer en een lichte woon- en eetkamer met houtkachel. Vanuit hier is er directe toegang tot het terras, waar u kunt genieten van het vrije uitzicht en meerdere gezellige plekjes rondom het huis, perfect om te zitten, te ontspannen of te barbecueën.
Buiten beschikt de woning over een rustieke tuin en toegang tot een gemeenschappelijk gebied met een groot zwembad, een kleiner kinderbad en ruime zonneterrassen – ideaal om te genieten van de mediterrane levensstijl.
Het hellende perceel geeft karakter, terwijl praktische voorzieningen zoals een privé-oprit, extra parkeerplaatsen, bergruimte in het souterrain, dubbele beglazing en handmatige rolluiken zorgen voor gemak en veiligheid.
Belangrijkste kenmerken:
• 2 tweepersoonsslaapkamers, 1 eenpersoonskamer en 2 badkamers plus gastentoilet
• Plafondventilatoren in alle kamers, gedeeltelijke airconditioning en verwarming via houtkachel en elektrische radiatoren
• Westelijke oriëntatie met vrij uitzicht
• Woning verdeeld over twee verdiepingen
• Aparte keuken en gezellige woon-eetkamer met open haard
• Terras met zitjes en ruimte om te barbecueën, rustieke tuin en gemeenschappelijke zwembaden met zonneweide
• Privé-oprit en extra parkeergelegenheid beschikbaar
• Bergruimte in het souterrain
• Dubbele beglazing en handmatige rolluiken
Neem vandaag nog contact met ons op om een bezichtiging te regelen en de gezellige charme van deze woning in Benitachell te ontdekken.