387m2
6
5
3
3
1976
2017
H-1885-AMBE
1325m2
80 m2
12 x 5 m
3
3
6
Zuidoosten
90 Km.
3 Km.
Gelegen in een rustige wijk van Montemar in Benissa, biedt deze ruime villa privacy, open uitzichten en flexibele woonruimtes. Ideaal voor families, als vakantiehuis of voor wie op zoek is naar een woning met aparte gastenverblijven.
De villa heeft twee toegangen – één via een privé garage en de andere via een dubbele carport met poort. Vanaf de carport leiden enkele treden naar een apart gastenverblijf dat momenteel als kantoor wordt gebruikt. Deze ruimte kan eenvoudig worden omgevormd tot een tweepersoons slaapkamer met eigen badkamer.
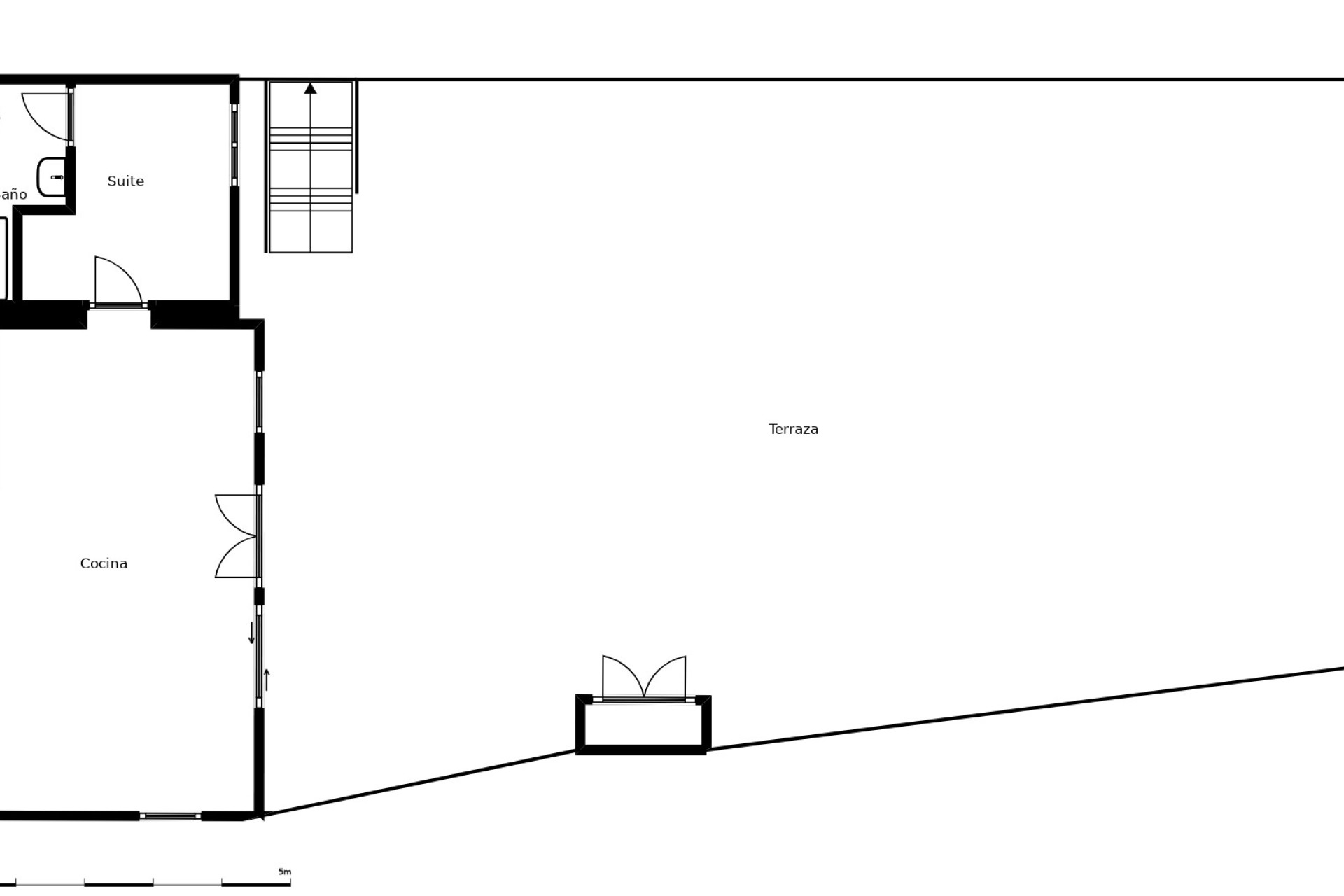
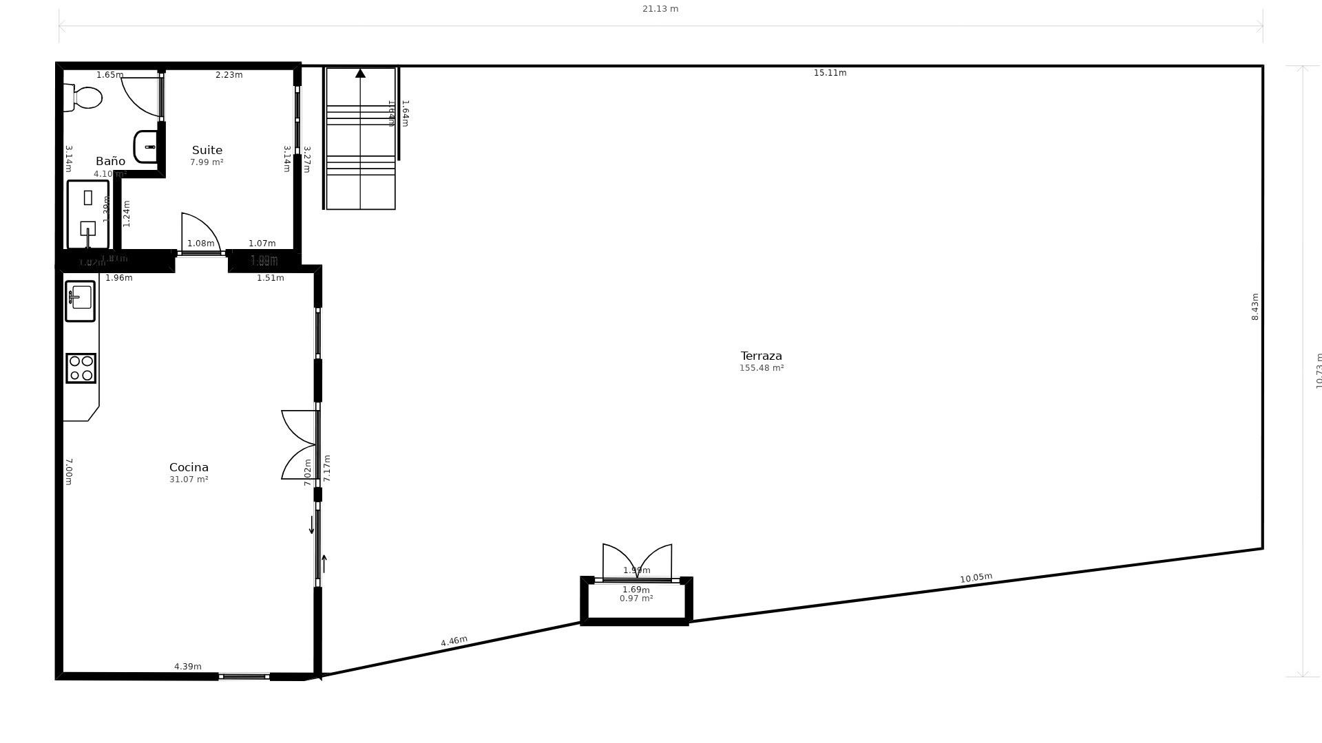
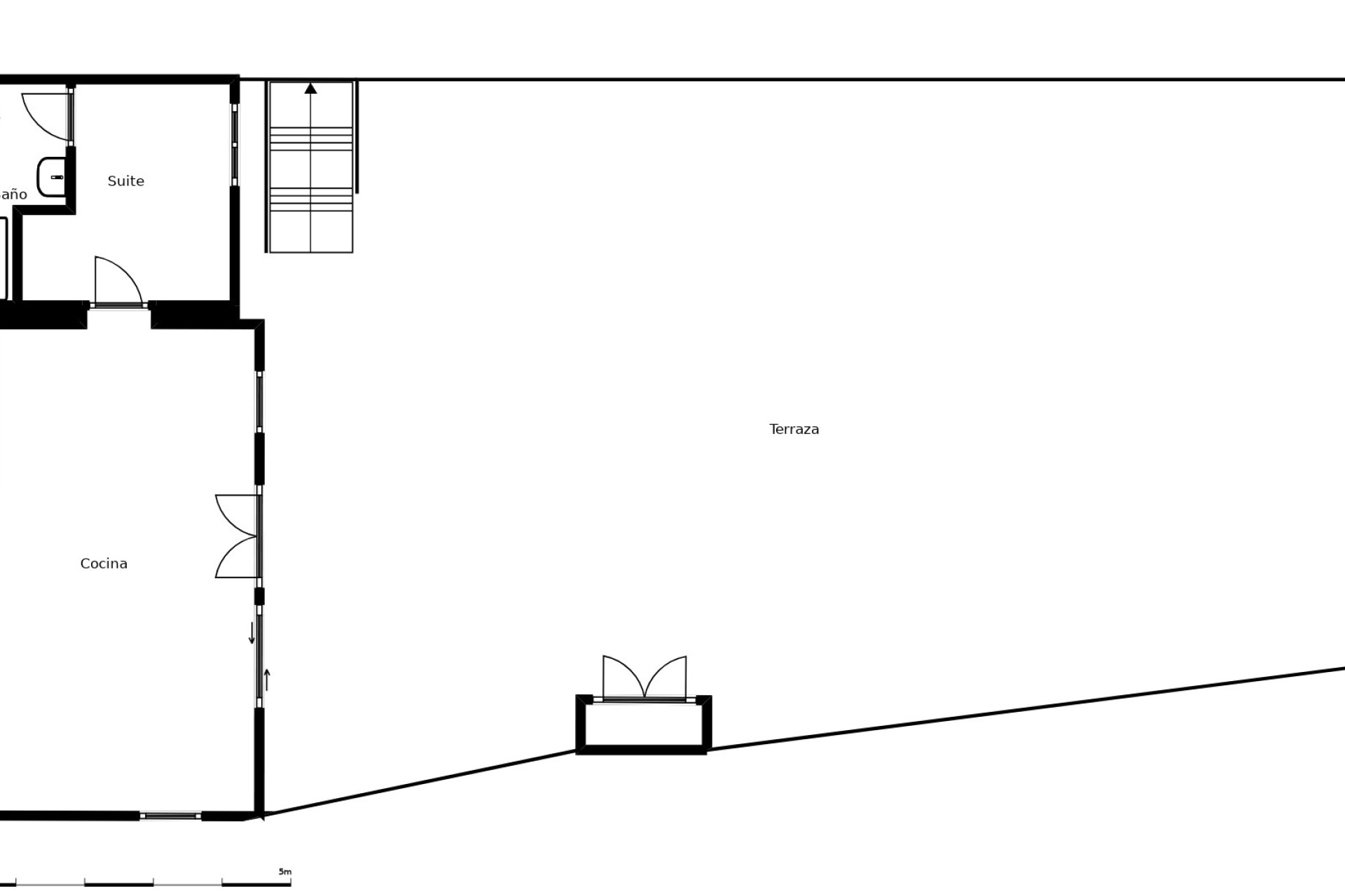
Daarnaast vindt u een overdekt terras met comfortabele zitruimte, praktische bergruimte en uitzicht over de vallei. Naast deze zitruimte is er een terras voor buiten dineren met uitzicht op zee en de vallei – perfect om te eten of gasten te ontvangen. Via dubbele glazen deuren komt u hier binnen in de lichte eetkamer met voldoende ruimte voor een royale eettafel en extra opbergmogelijkheden.
De eetkamer loopt over in een grote woonkamer met zichtbare houten balken en grote ramen rondom. Er is voldoende plaats voor meerdere banken en het is een gezellige ruimte voor familie of gasten. De kamer is voorzien van airconditioning en een pellet-/houtkachel, voor comfort in alle seizoenen.
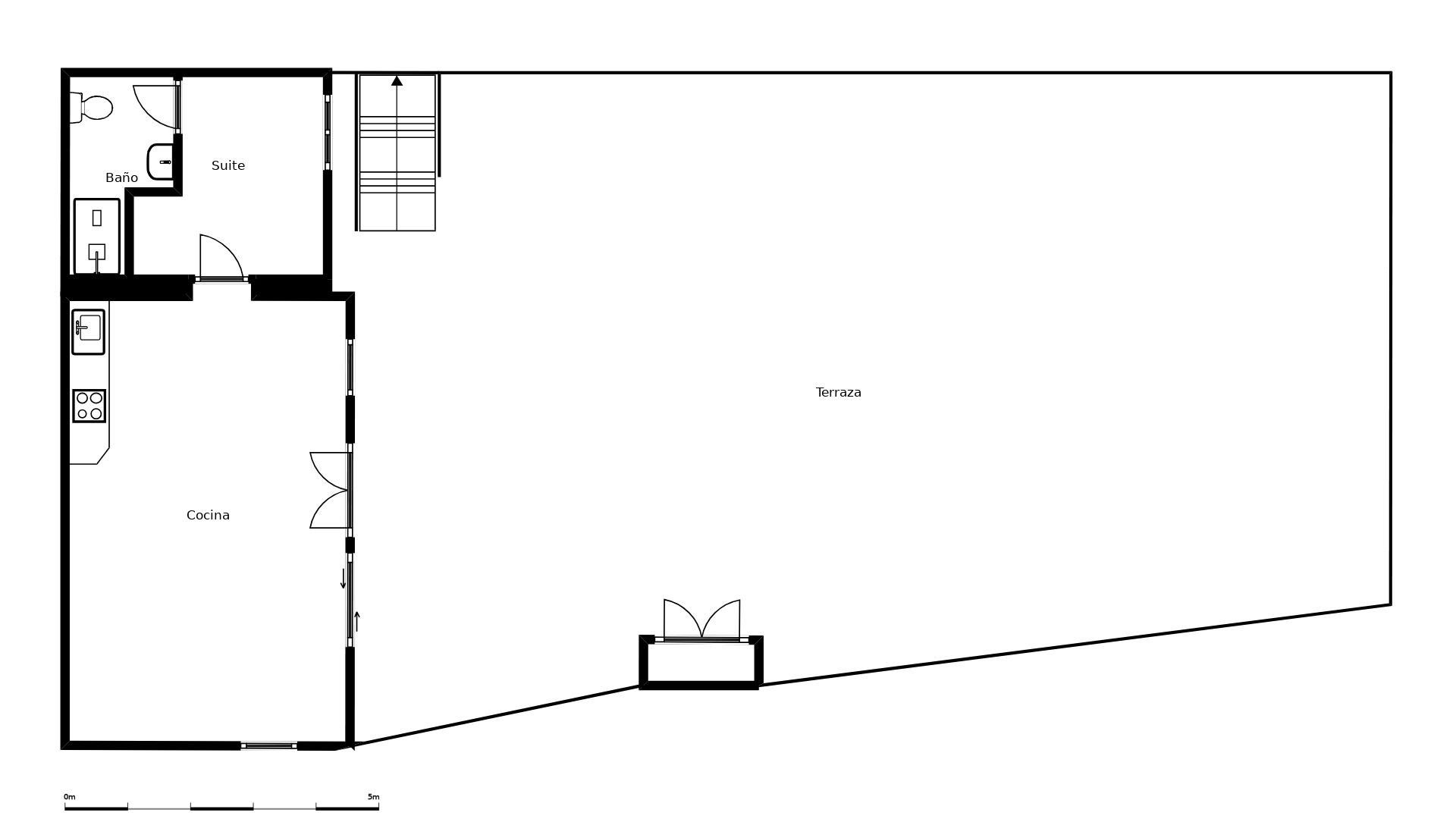
Vanuit de woonkamer leidt een binnenhal naar de keuken, twee tweepersoons slaapkamers en twee badkamers. Deze hal geeft tevens toegang tot de tuin via een aparte ingang.
De keuken is volledig uitgerust met een gaskookplaat, elektrische oven, veel kastruimte en een raam met uitzicht op het terras.
De eerste van de twee badkamers is stijlvol en praktisch gerenoveerd en beschikt over een wastafel, toilet en ruime inloopdouche. De tweede badkamer is net zo modern afgewerkt en biedt een toilet, dubbele wastafel, bad en aparte inloopdouche. Deze indeling zorgt ervoor dat er voldoende badkamerfaciliteiten zijn voor iedereen.
De eerste slaapkamer heeft een ingebouwde kast en uitzicht op de onderhoudsvriendelijke tuin. Geschikt als tweepersoons slaapkamer, kinderkamer of kantoor. De tweede slaapkamer is ruimer, heeft veel daglicht, een ingebouwde kast en airconditioning.
Via de hal en de buitendeur komt u bij een terras met mooi uitzicht over de vallei. Hier leiden trappen omhoog naar straatniveau of omlaag naar een grote berging en onderhoudsvriendelijke tuin. Op dit niveau is een gezellige, betegelde zithoek met uitzicht op de bergen en het zwembad. Rondom de woning zijn diverse zitplekken om te dineren of te ontspannen met een drankje.
Een paar treden hoger bevindt zich de entree van een zelfstandig gastenappartement. Hier vindt u een slaapkamer (nu met twee bedden maar ruimte voor een tweepersoonsbed), een ingebouwde kast en een groot raam met prachtig uitzicht. Aan de andere kant ligt de open woonruimte met zitgedeelte, televisie, volledig uitgeruste keuken en eethoek. Dankzij het grote raam is deze ruimte lekker licht en heeft u uitzicht op een van de buitenterrassen.
De gang leidt naar een ruime tweepersoons slaapkamer met ingebouwde kast en groot raam met uitzicht. Aan de andere kant van de gang is een badkamer met toilet, inloopdouche, wastafel en grote kleedruimte. Dankzij het raam van vloer tot plafond is het hier het hele jaar door aangenaam licht.
Buiten leiden enkele traptreden naar het zwembadgedeelte. Hier zijn meerdere plekken om te zonnen en te ontspannen. Het zwembad van 8m x 4m biedt volop ruimte om af te koelen of te sporten. Er is extra opslagruimte voor kussens en zwembadaccessoires.
Vanuit het zwembad komt u direct in het ruime poolhouse dat is omgebouwd tot nog een mooie woonruimte. Het heeft een open woon-, keuken- en eetgedeelte met grote ramen en uitzicht op het zwembad en de bergen. Er is een tweepersoons slaapkamer met eigen badkamer met toilet, wastafel en inloopdouche.
Buiten vindt u nog een privé terras met barbecueplek, ligruimte en uitzicht. Een pad leidt naar de trap naar de garage met parkeergelegenheid of extra bergruimte.
Een veelzijdige woning die volledig naar uw wensen en levensstijl aan te passen is.
Belangrijkste kenmerken:
Mis deze kans niet — neem vandaag nog contact met ons op voor een bezichtiging!