Woonopp.
300m2Perceel
1016m2Slaapkamers
4Badkamers
4Zwembad
12 x 5 m300m2
4
4
1
1
1
Onafhankelijk
2023
H-1627-AMB
1016m2
12 x 5 m
2
1m2
4
Zuiden
2,5 Km.
90 Km.
2,5 Km.
4 Km.
Mooi project voor luxe villa op een perceel van 1.016 m2 gelegen op loopafstand van de prachtige stranden en het centrum van Moraira.
Er zijn twee voetgangerstoegangen en een toegang voor voertuigen, waarvan één via de gemeenschappelijke zone van de urbanisatie.
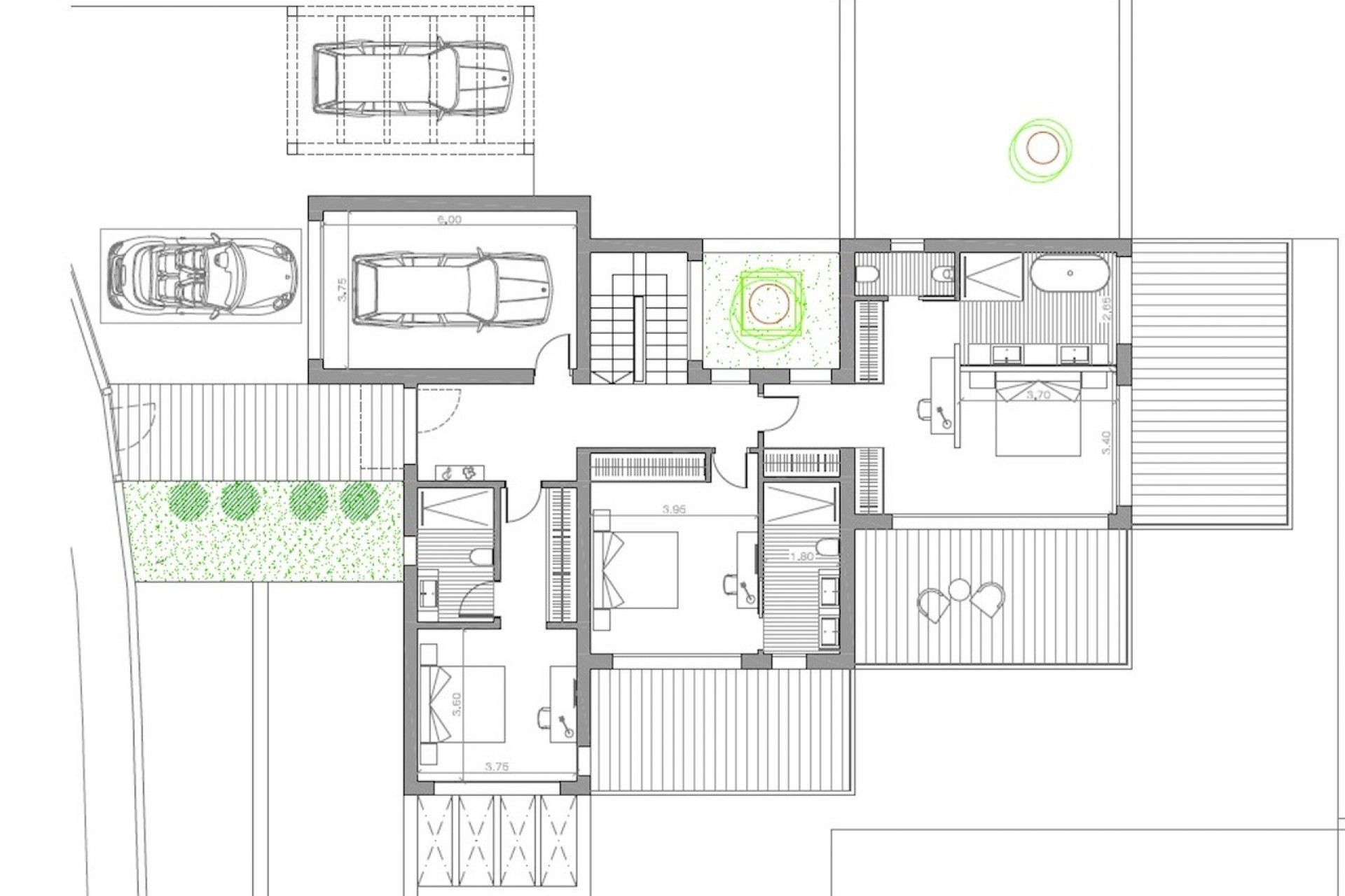
De villa is verdeeld over twee verdiepingen:
Op de begane grond is er een grote, heldere woonkamer en een open keuken met kookeiland, een gastentoilet, bijkeuken en een slaapkamer met en-suite badkamer.
Buiten is er een groot infinity zwembad met ruime open en overdekte terrassen, barbecue area en een mooi aangelegde tuin.
Boven vinden we drie ruime slaapkamers met en-suite badkamers, en hun eigen balkon waar u kunt genieten van het prachtige uitzicht dat deze villa biedt.
Op deze verdieping bevindt zich eveneens de garage.
De villa wordt uitgerust met hoogwaardige materialen als Technal timmerwerk met veiligheidsglas, volledige uitgeruste keuken met Siemens apparatuur, badkamers met kranen van het merk Roca, LED verlichting, aerothermisch systeem voor warm water en vloerverwarming, airconditioning (warm en koud) in het hele huis, zonnepanelen, inbouwkasten, elektrische rolluiken, binnen alarm, pre-installatie van buiten alarm en beveiligingscamera's. Automatische toegangsdeuren. Energie classificatie A.
Op het zuiden gelegen!
Dit project maakt deel uit van een kleine ontwikkeling bestaande uit zes moderne woningen met een eigen parkeerplaats.