Propriétés et Terrains constructibles · Reventes Teulada Teulada · Alicante (Costa Blanca)

Propriétés et Terrains constructibles · Reventes Teulada Teulada · Alicante (Costa Blanca)

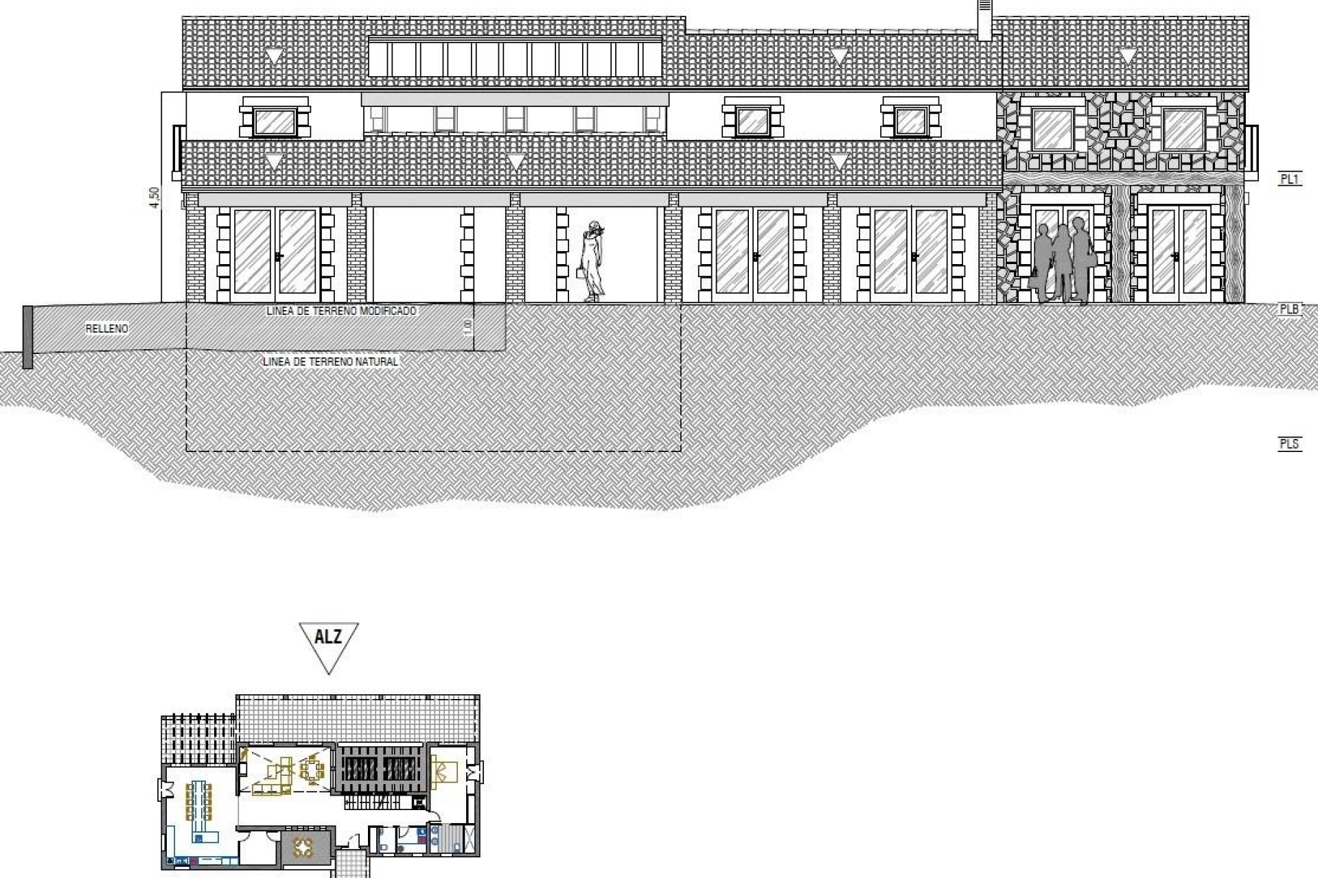
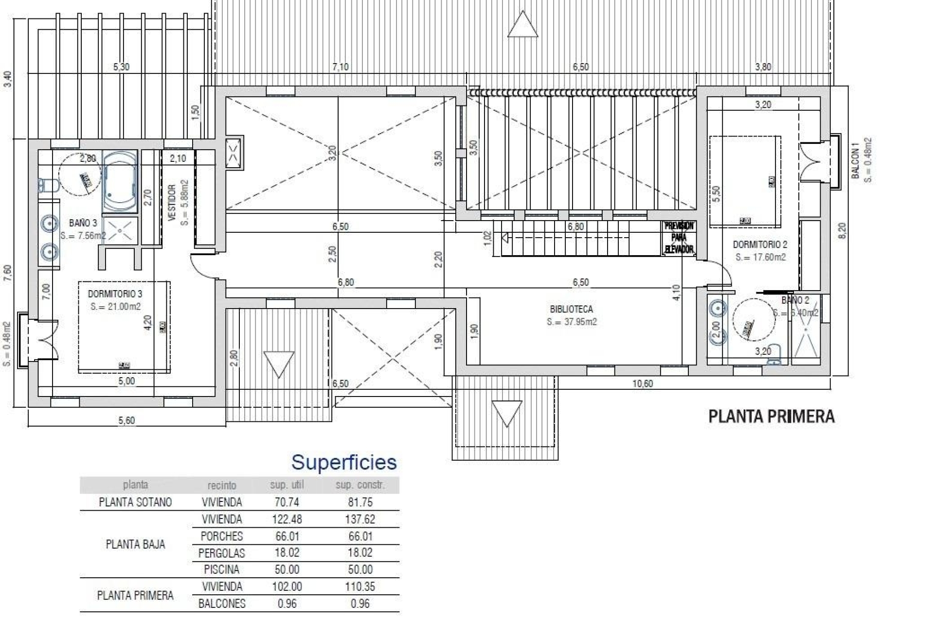
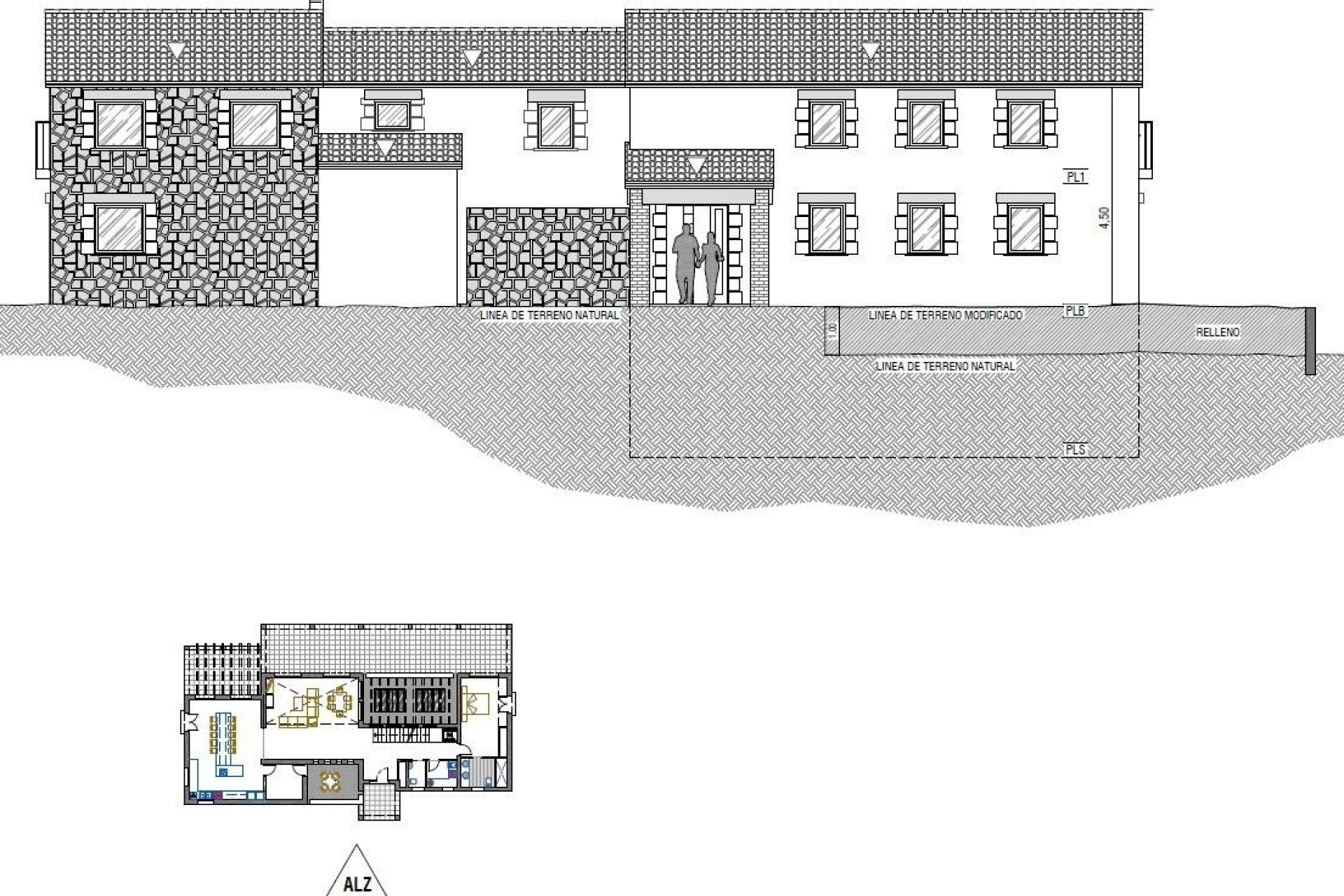
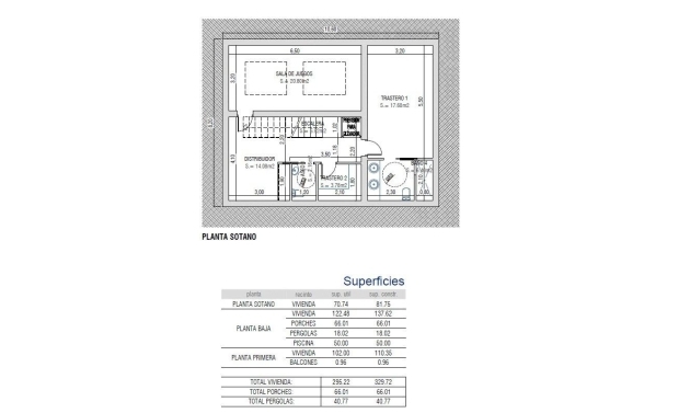
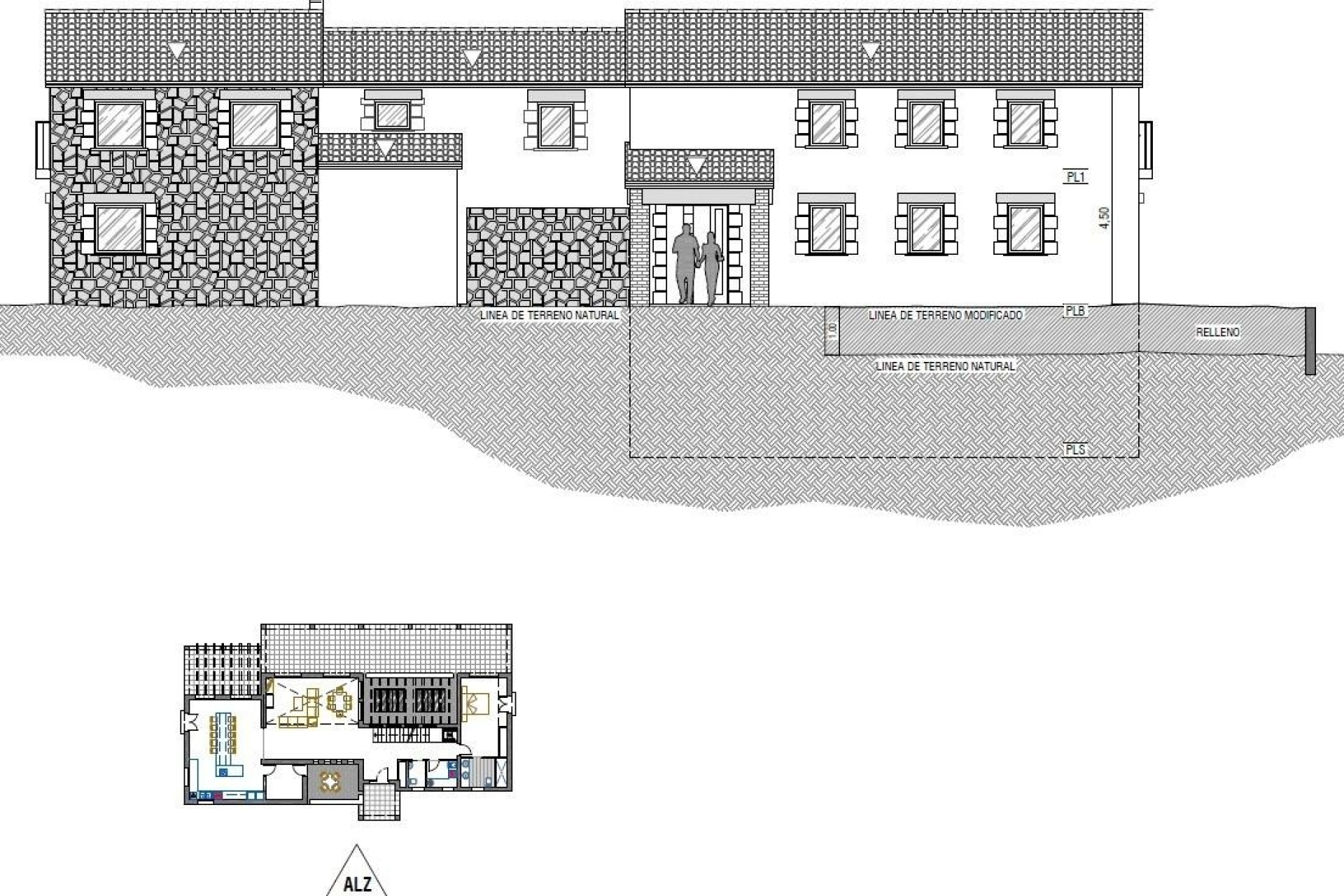
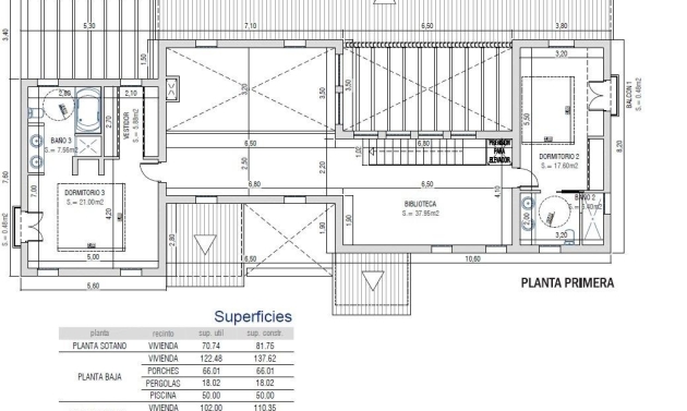
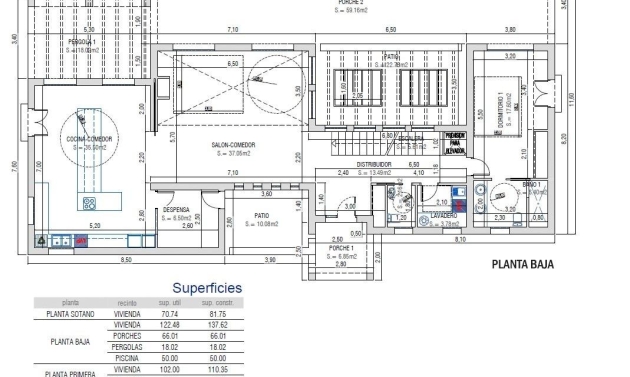
Principales caractéristiques

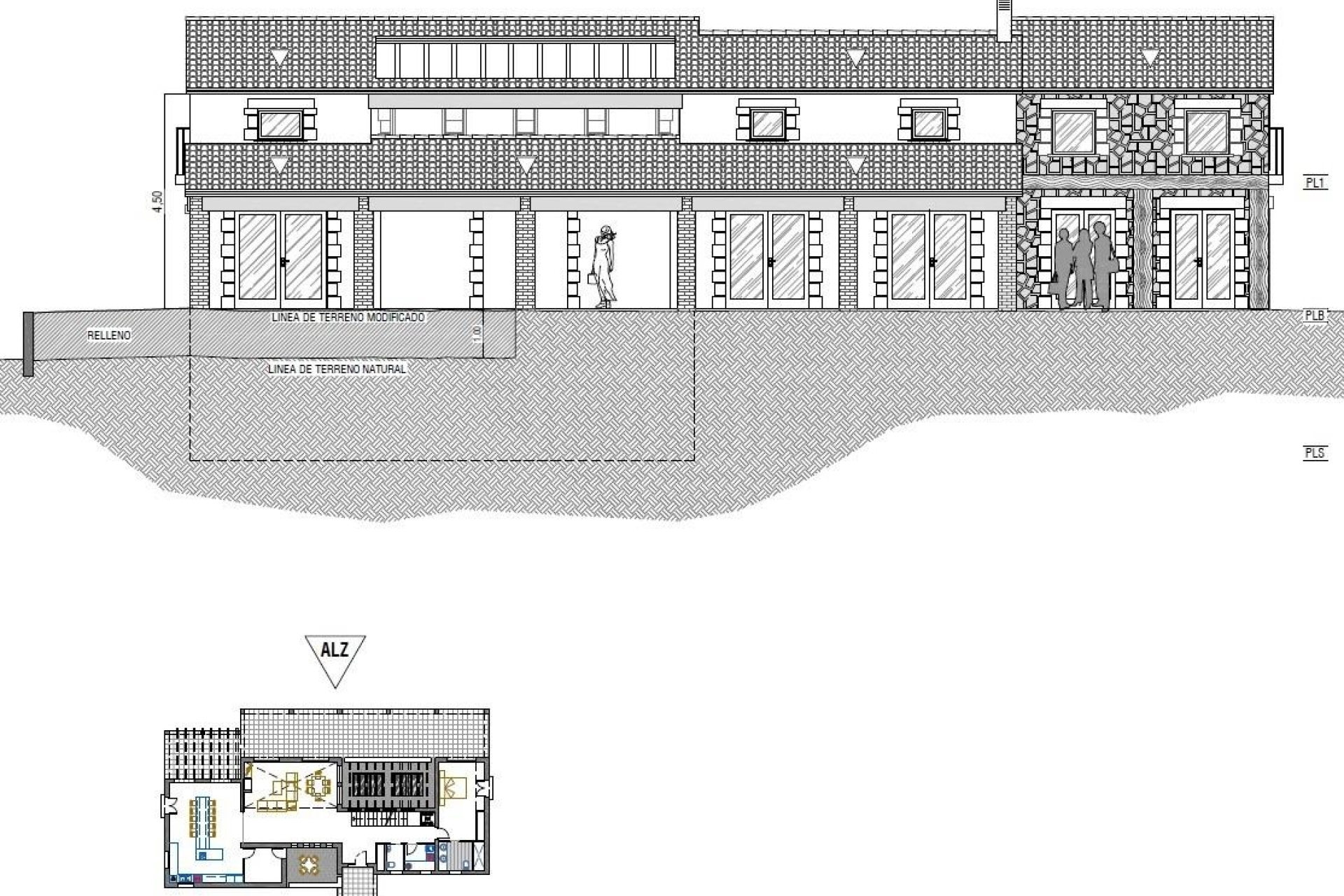
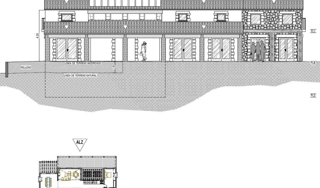
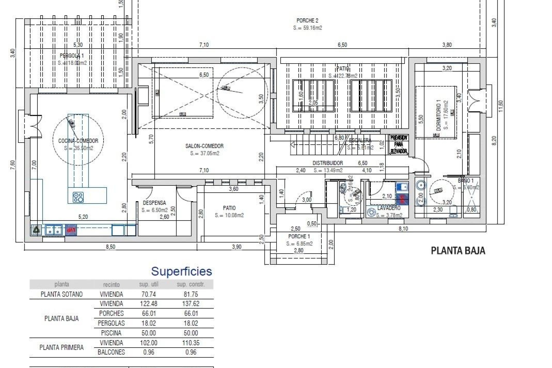
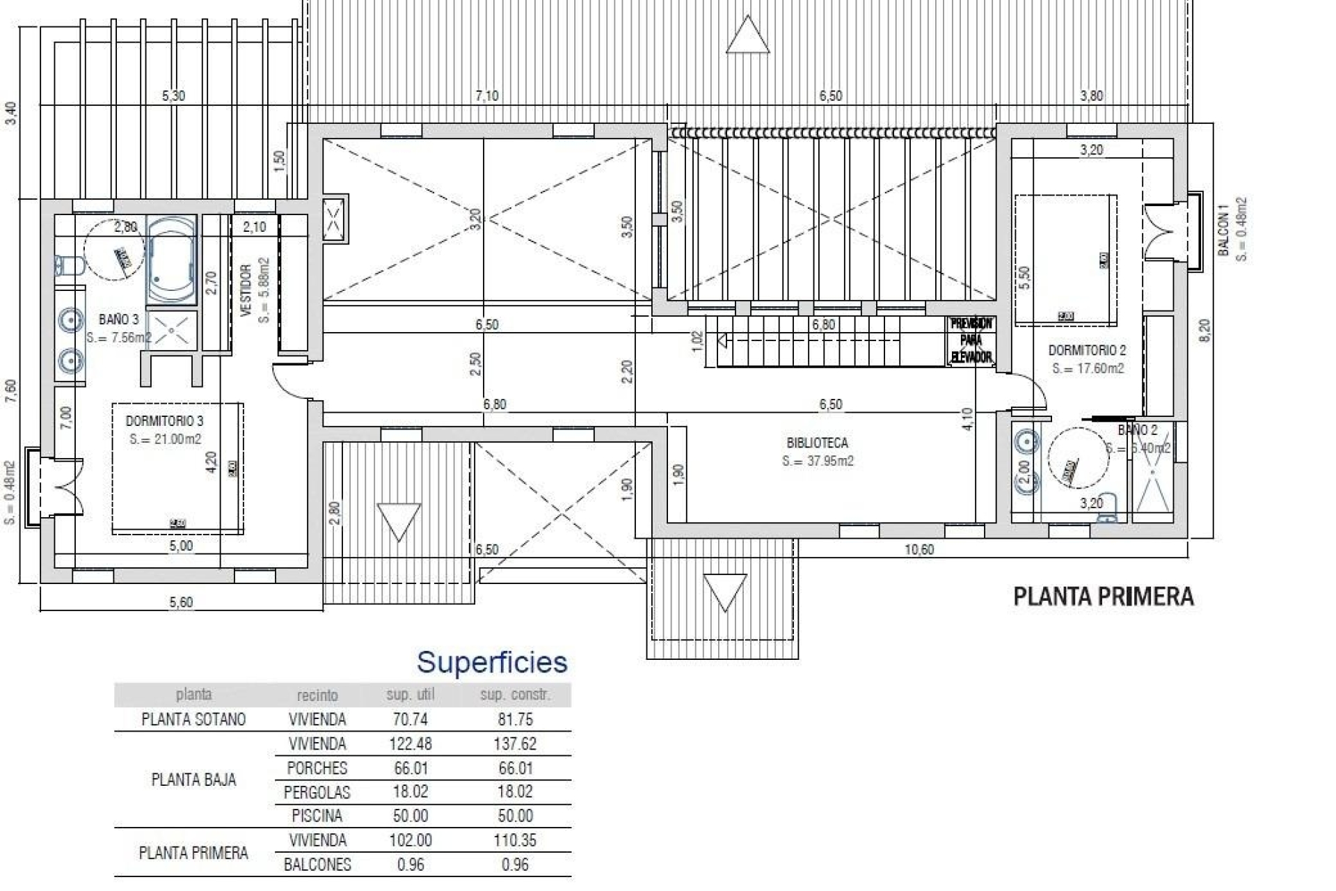
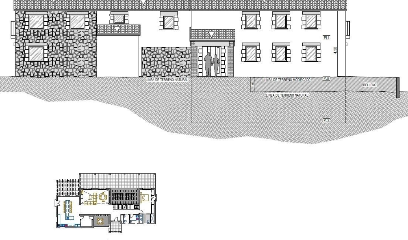
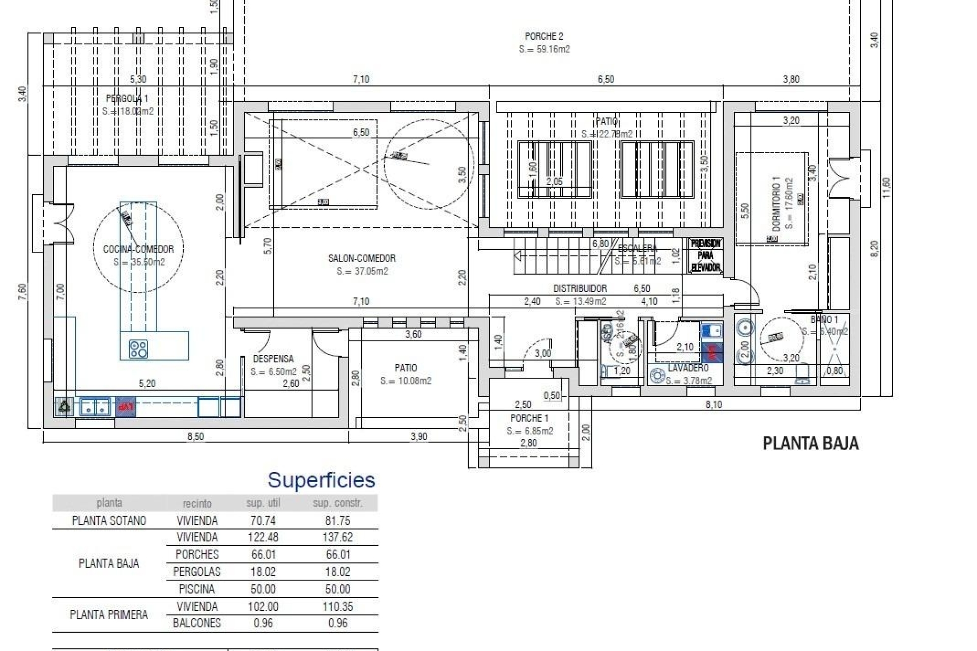
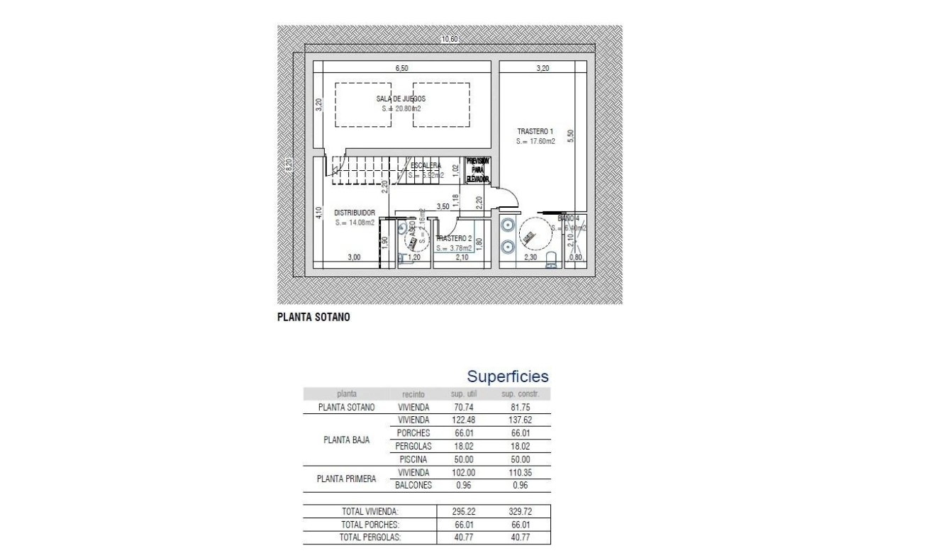
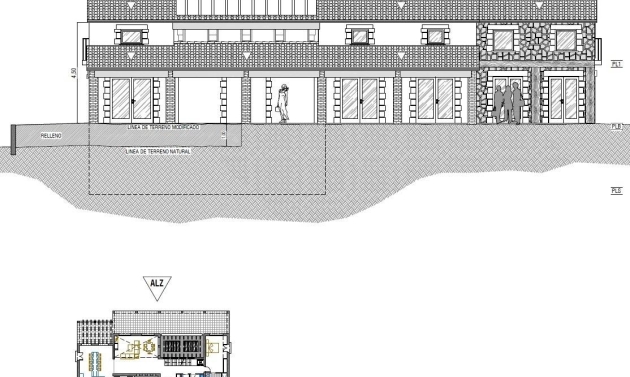
  • Construit

    236m2
  • Terrain

    17227m2

Caractéristiques

Construit:

236m2

Propriété ID:

G-31094-CA

Terrain:

17227m2

Description

Emplacement

Casas Ambiente

Casas Ambiente

Faire une Demande

WhatsApp Contact par Whatsapp
Responsable del tratamiento: Casas Ambiente Moraira, SL, Finalidad del tratamiento: Gestión y control de los servicios ofrecidos a través de la página Web de Servicios inmobiliarios, Envío de información a traves de newsletter y otros, Legitimación: Por consentimiento, Destinatarios: No se cederan los datos, salvo para elaborar contabilidad, Derechos de las personas interesadas: Acceder, rectificar y suprimir los datos, solicitar la portabilidad de los mismos, oponerse altratamiento y solicitar la limitación de éste, Procedencia de los datos: El Propio interesado, Información Adicional: Puede consultarse la información adicional y detallada sobre protección de datos Aquí.
WhatsApp