Nous vous présentons une opportunité unique d'acquérir une villa de design moderne dans l'une des zones résidentielles les plus prestigieuses de la Costa Blanca : Cumbre del Sol, à Benitachell. Ce lieu privilégié, situé entre Jávea et Moraira, offre un environnement incomparable où la nature, la sérénité et le confort haut de gamme se fondent en parfaite harmonie.
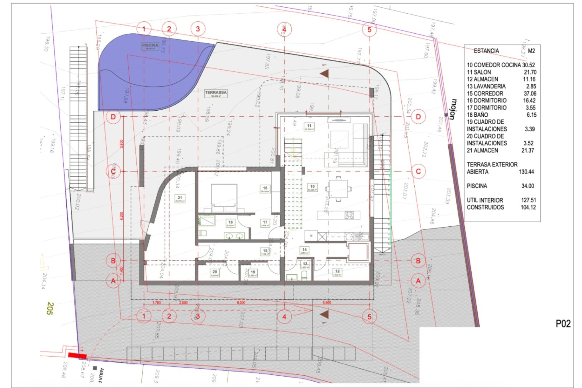
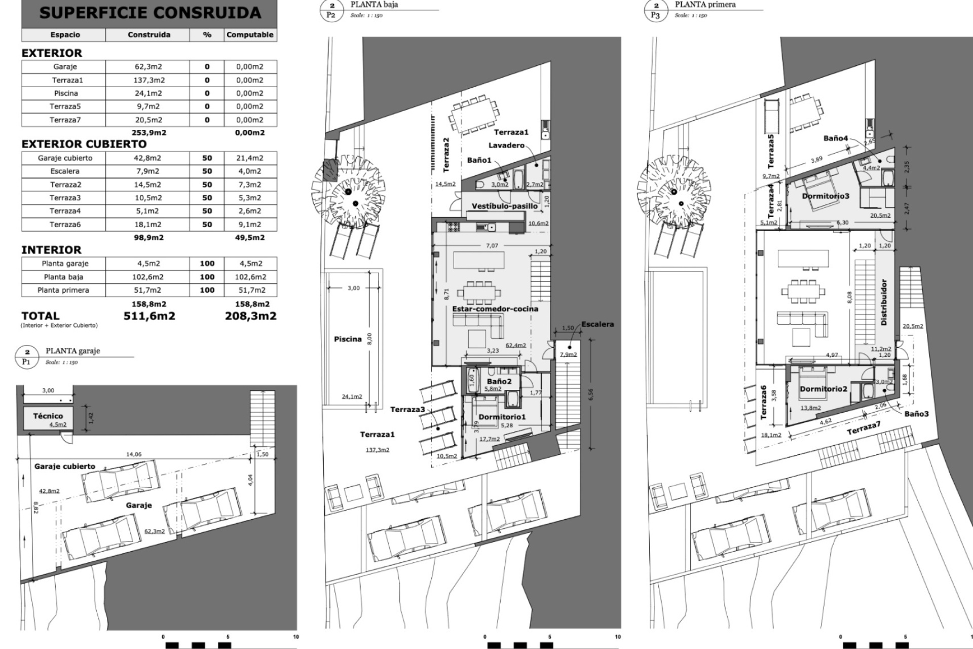
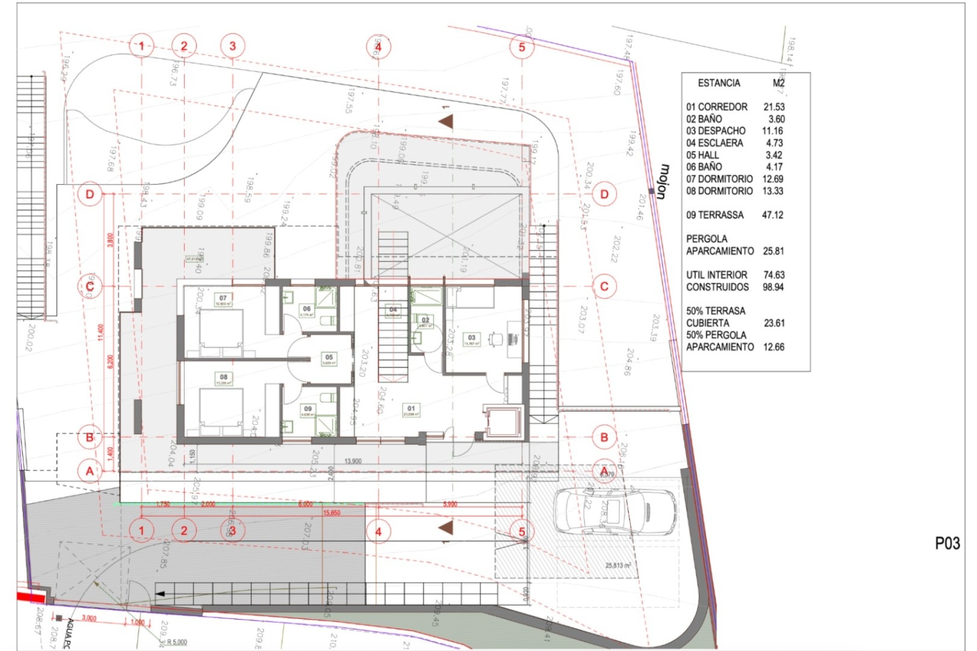
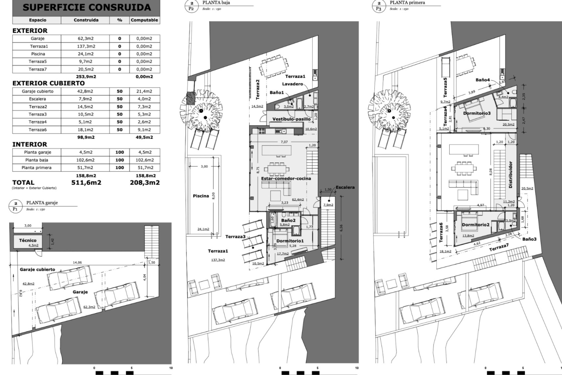
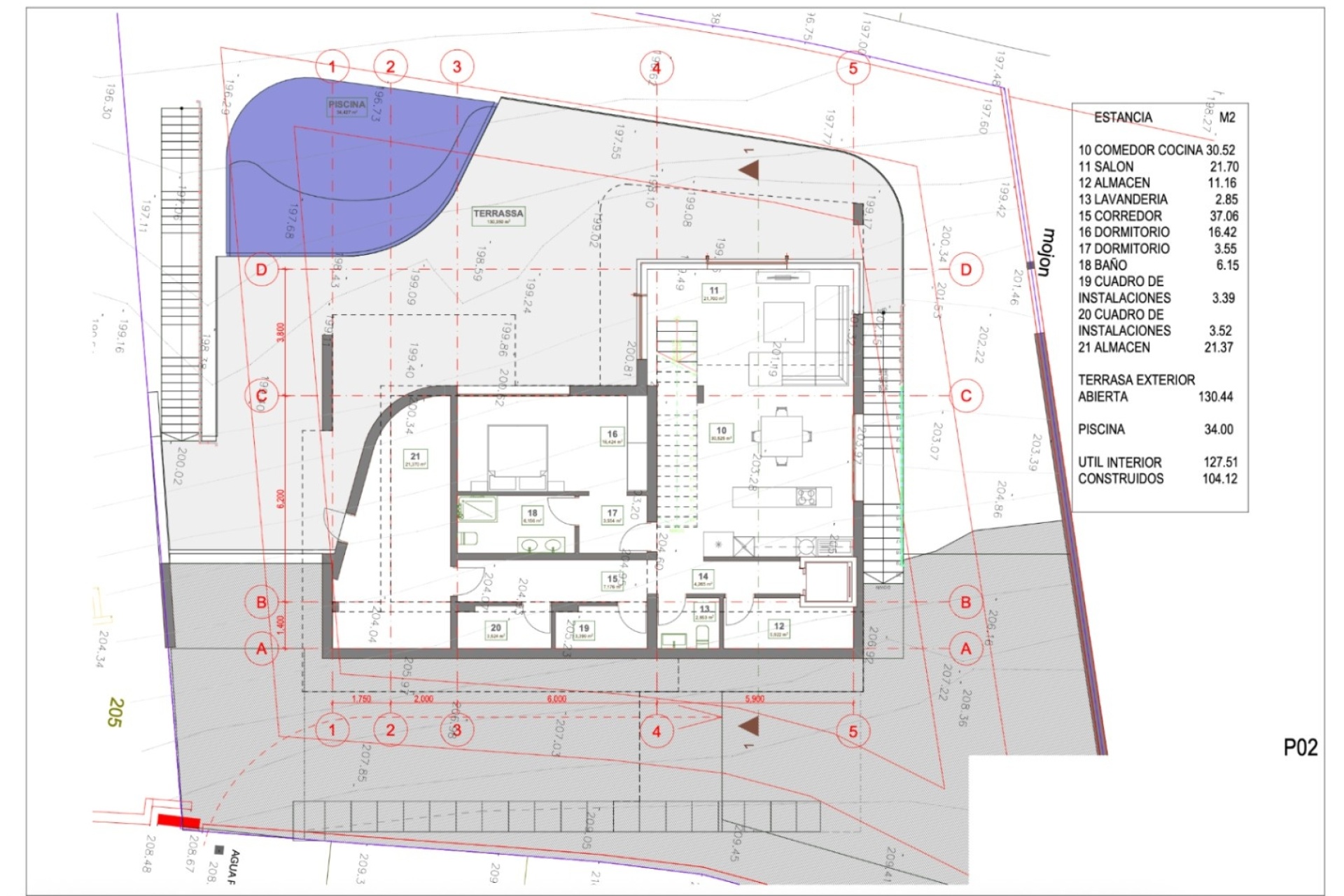
Ce projet exclusif prévoit la construction d'une élégante villa unifamiliale de 276 m² répartis sur deux niveaux.
La maison comprend 3 chambres, 1 bureau, 5 salles de bains, et de généreux espaces de vie avec un salon, une salle à manger et une cuisine intégrés dans un concept ouvert, rempli de lumière naturelle.
Le design prévoit également une vaste terrasse panoramique et une piscine privée de 34 m², idéale pour profiter de moments de détente avec des vues imprenables sur la mer Méditerranée et les montagnes environnantes.
Chaque détail de la maison a été soigneusement planifié pour offrir un style de vie de luxe discret, avec des finitions de première qualité et des matériaux sélectionnés garantissant durabilité, esthétique et fonctionnalité.
Située à quelques minutes de la renommée école internationale Lady Elizabeth School, cette propriété est idéale pour les familles à la recherche d'une résidence sécurisée, offrant qualité de vie et proximité de tous les services, tout en profitant des plages, criques et ports de plaisance de Moraira et Jávea.
Un investissement sûr en qualité, en emplacement et en style de vie.
N'hésitez pas à nous contacter pour plus d'informations ou pour planifier une visite de ce magnifique projet.