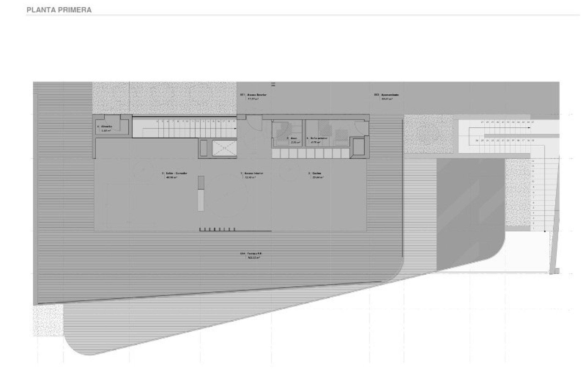
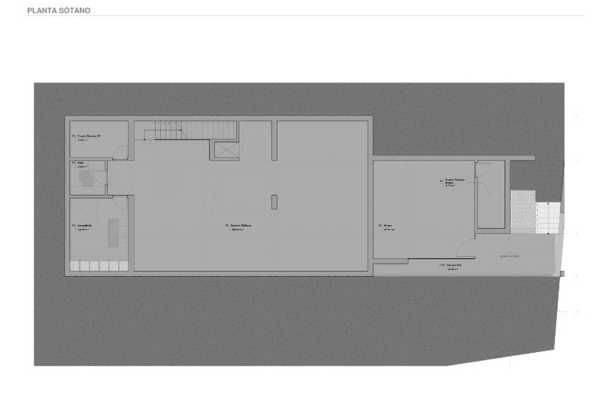
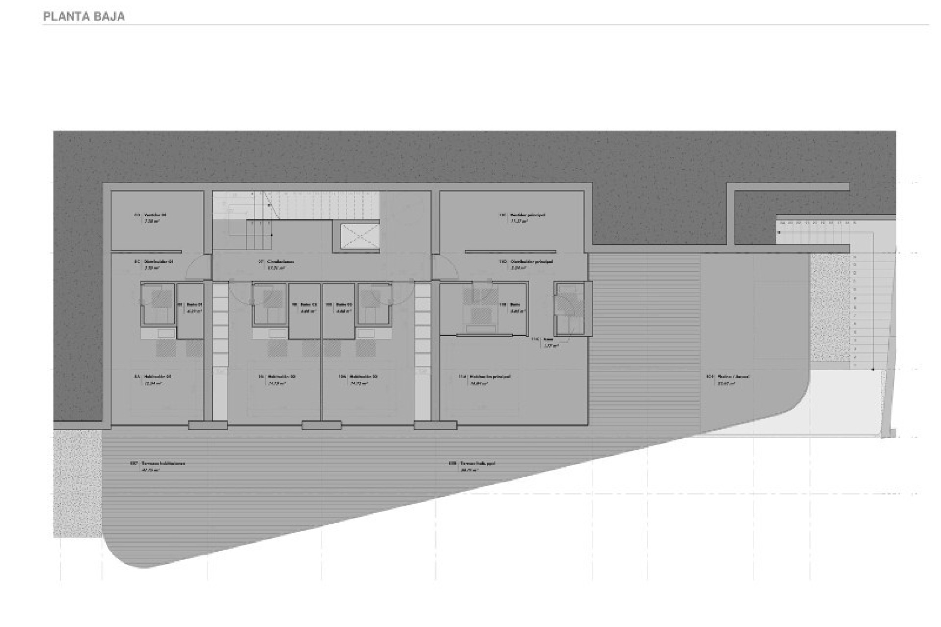
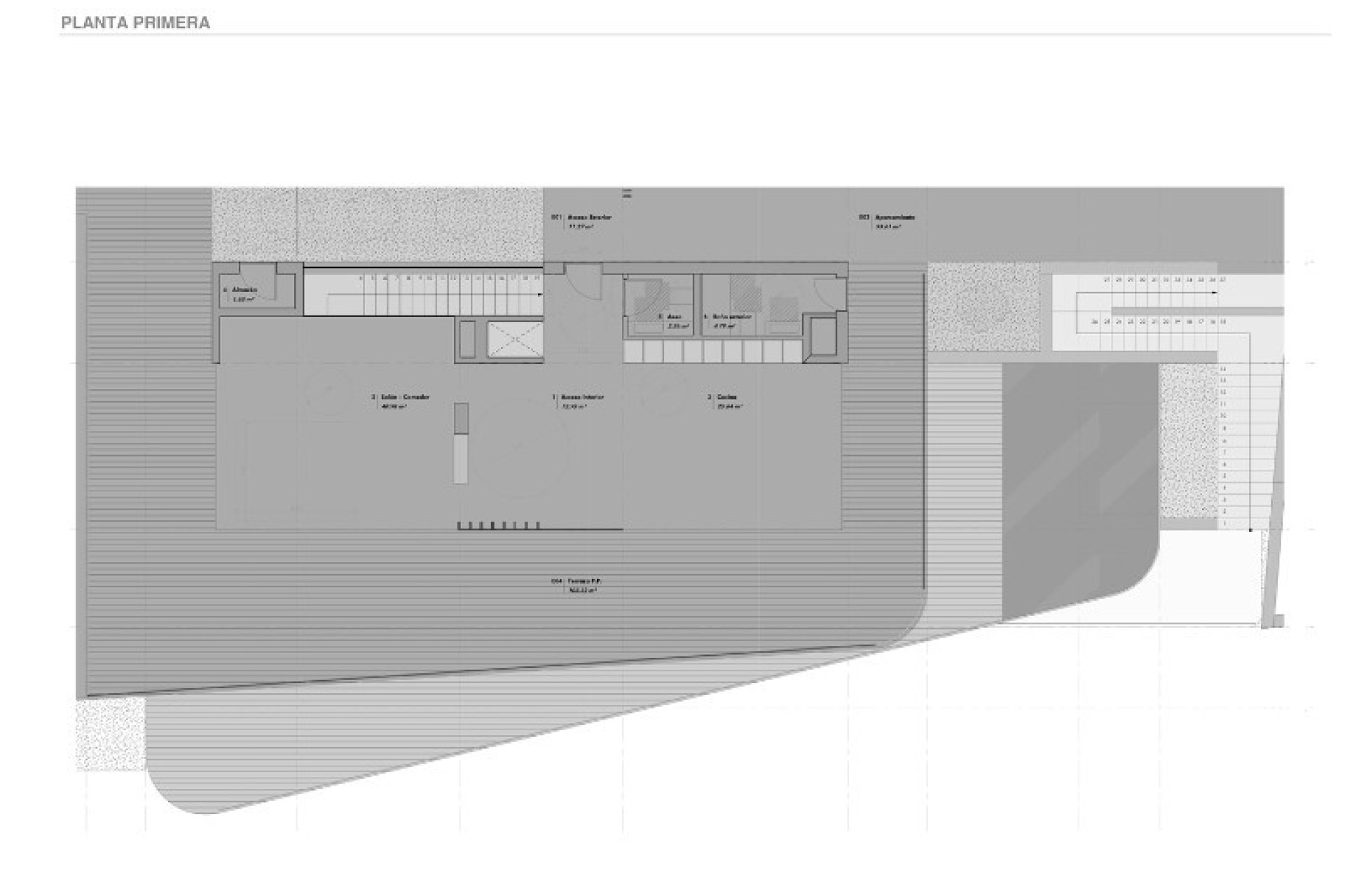
Villa de luxe avec vue sur la mer à vendre à Benimeit, Moraira. Cette magnifique villa va être construite sur l'une des meilleures parcelles de la région, offrant une vue magnifique sur la ville et sur la mer Méditerranée. La villa est répartie sur trois étages reliés par un ascenseur, le premier étage comprend un grand salon décloisonné avec une cuisine de luxe entièrement équipée et un accès à la magnifique partie terrasse couverte et à la piscine. Également à ce niveau, il y a une toilette pour les invités et une salle de bains et un débarras. Le rez-de-chaussée se compose de deux chambres doubles avec salles de bains, une chambre double avec salle de bains et dressing et la chambre principale qui a une salle de bains, dressing et une grande terrasse privée avec piscine à débordement. Le sous-sol comprend une très grande pièce à utiliser au gré de l'acheteur [home cinéma, espace bien-être, etc.], un local technique, des toilettes invités, une grande buanderie et une pièce pouvant servir de salle de sport.- Points clés:- Construction de 517m2- Piscine à débordement à l'extérieur du salon principal spacieux- 4 chambres toutes avec salles de bains de luxe en suite- Chambre principale avec terrasse privée et piscine à débordement avec jacuzzi- 2 toilettes invités- Salle de douche extérieure- Air conditionné chaud / froid- Chauffage par le sol- Cuisine de luxe entièrement équipée- Système domotique- Jeux / Home cinéma- Gym- Espace barbecue- Jardin paysager privé- Pour plus d'informations, n'hésitez pas à nous contacter.