Construit
328m2Terrain
1383m2Chambres
4Salles de bain
4Piscine
12 x 5 m328m2
4
4
2
1
1
Indépendant
H-1940-AMB
1383m2
300 m2
12 x 5 m
2
1
4
Sud-est
5 Km.
70 Km.
Villa contemporaine neuve avec vue panoramique sur la mer
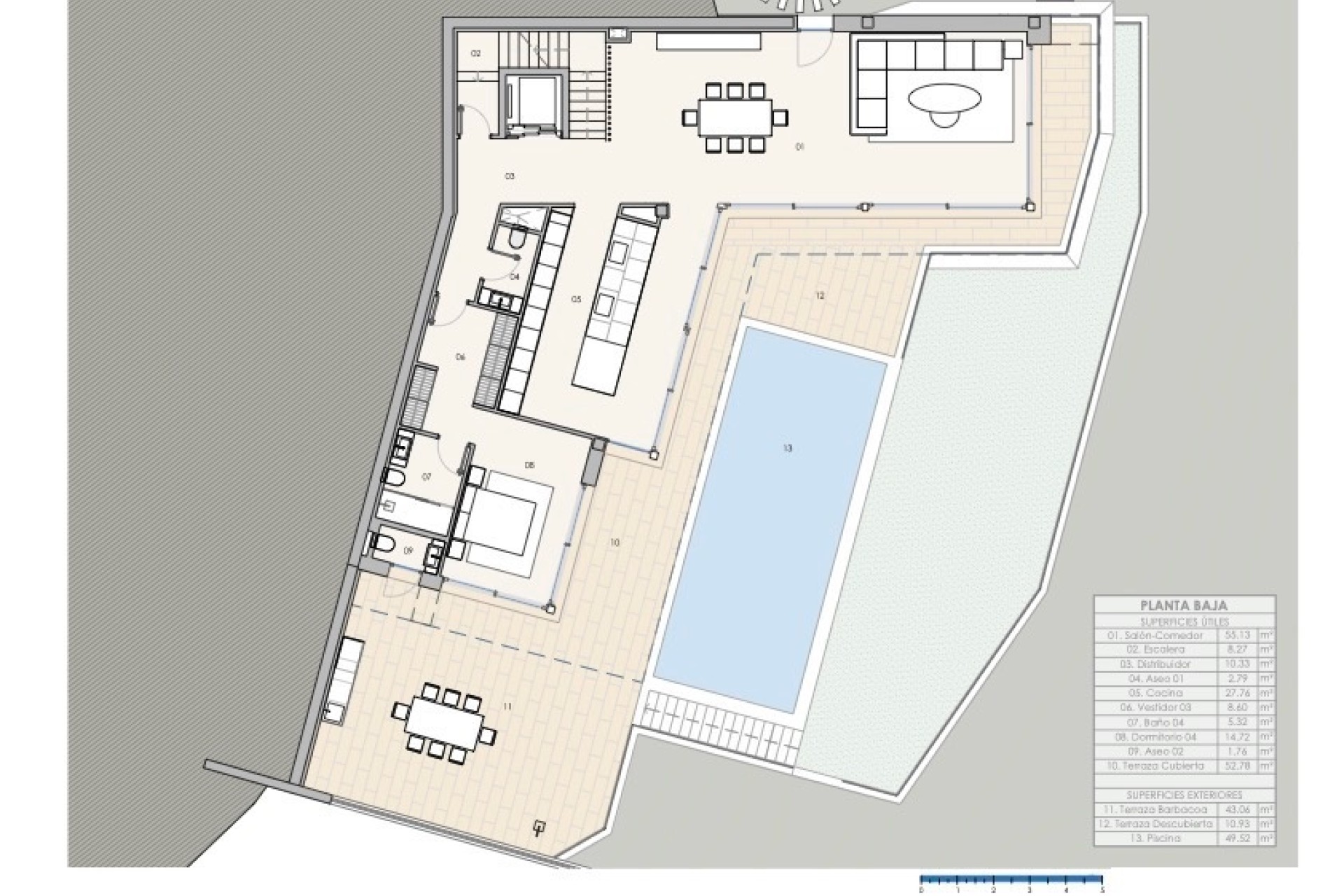
Cette superbe villa neuve, dont l’achèvement est prévu pour la fin de l’année, allie design contemporain, confort et élégance méditerranéenne. Située dans un emplacement privilégié offrant une vue panoramique sur la mer, elle propose un luxe exceptionnel réparti sur trois niveaux, avec 328 m² construits sur un terrain de 1.348 m².
Conçue pour maximiser la lumière et l’espace, la villa dispose de baies vitrées du sol au plafond offrant une vue spectaculaire sur la mer depuis toutes les pièces. Le rez-de-chaussée comprend un vaste espace de vie ouvert avec salon, salle à manger et cuisine moderne entièrement équipée donnant sur la terrasse. Plus de 300 m² de terrasses couvertes et découvertes invitent à profiter du plein air.
La propriété compte quatre chambres, toutes avec salle de bains en suite, dont trois avec dressing. On trouve également deux toilettes invités (dont une avec accès depuis la terrasse), une buanderie et un ascenseur desservant tous les niveaux. À l’extérieur : garage double, piscine chauffée de 4x10 m avec couverture automatique et système de nage à contre-courant, et un jacuzzi sur la terrasse du toit.
La villa bénéficie d’un système de pompe à chaleur pour le chauffage au sol, la climatisation et l’eau chaude, ainsi que d’une excellente isolation thermique et acoustique. Des finitions haut de gamme et des matériaux naturels créent une atmosphère moderne et lumineuse. Un système domotique complet permet de contrôler à distance l’éclairage, les stores et la température. Vidéophone connecté, alarme centrale, jardin méditerranéen paysager avec arrosage automatique et éclairage LED complètent cette magnifique propriété. La villa dispose d'un certificat énergétique A/A.
Caractéristiques principales :
Une villa contemporaine d'une qualité et d'un design exceptionnels, alliant à la perfection luxe, technologie et confort, avec une vue panoramique imprenable sur la mer.
Vous souhaitez en savoir plus sur cette propriété exclusive ou organiser une visite ? Contactez-nous dès aujourd'hui pour plus d'informations.