Townhouses - Bungalows · Reventes Teulada Teulada · Alicante (Costa Blanca)

Townhouses - Bungalows · Reventes Teulada Teulada · Alicante (Costa Blanca)

Principales caractéristiques

Maison de ville à vendre à Teulada, Centre

  • Construit

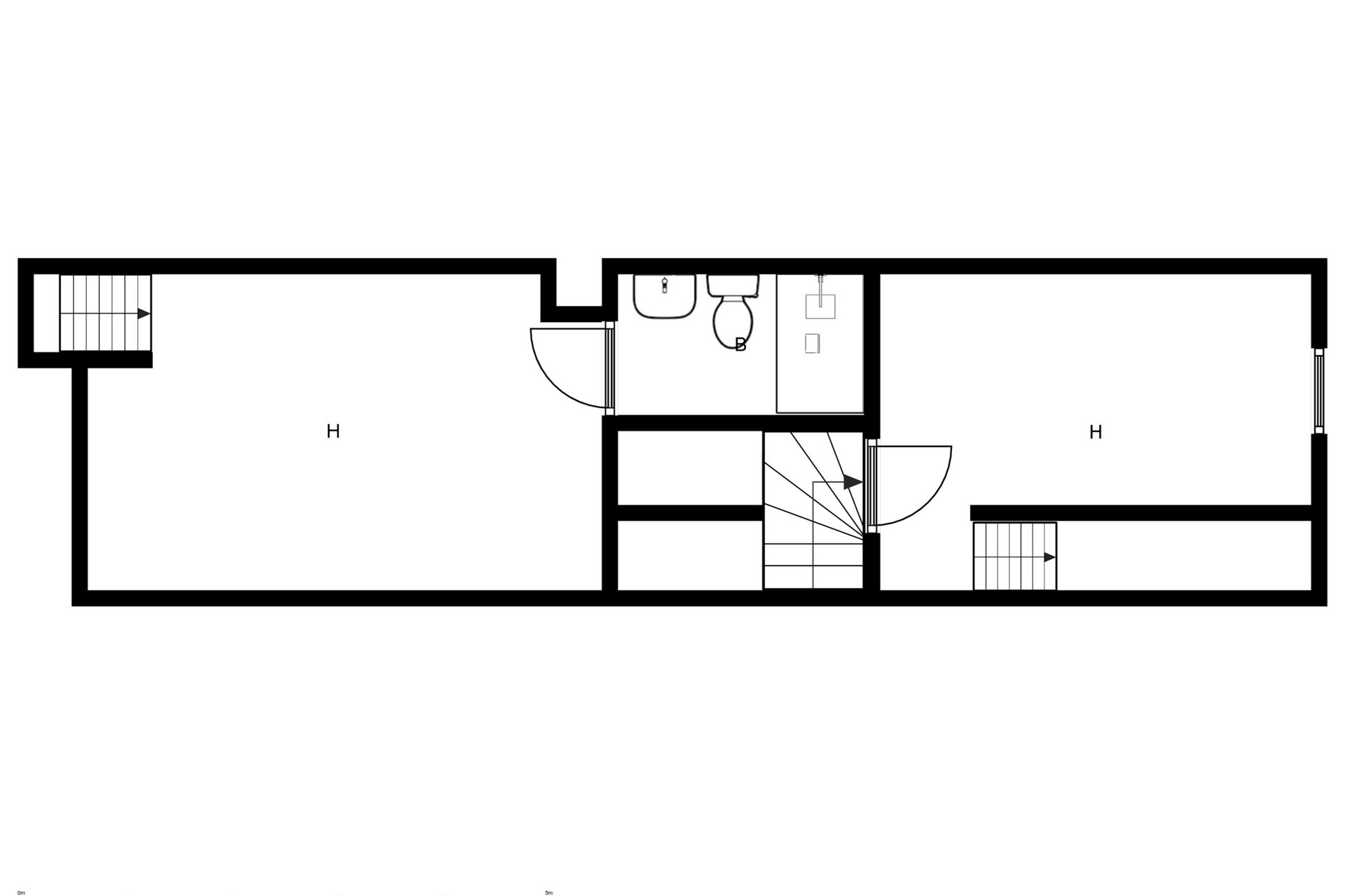
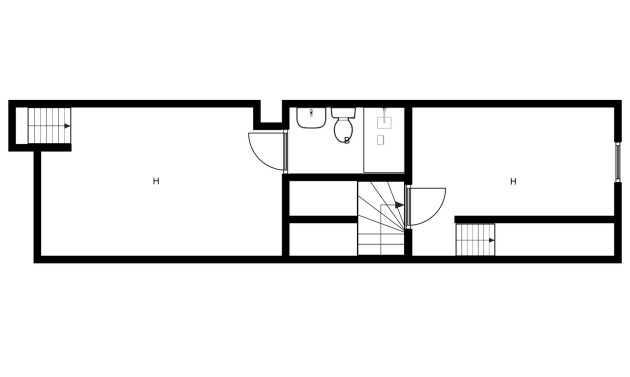
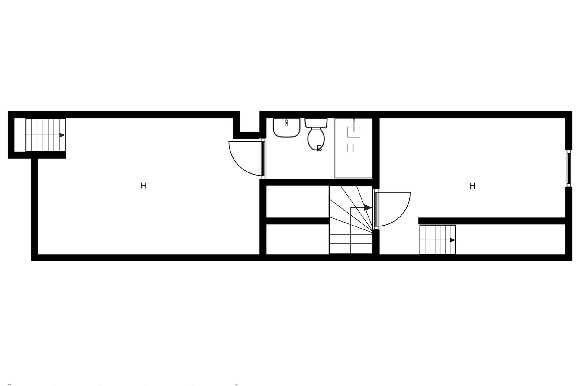
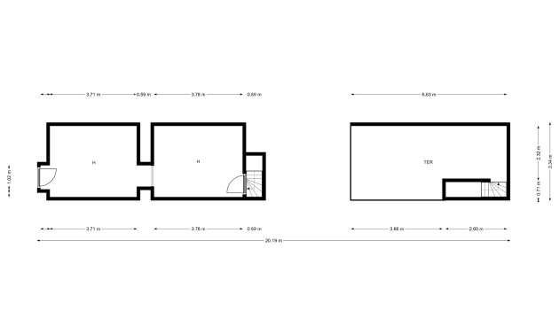
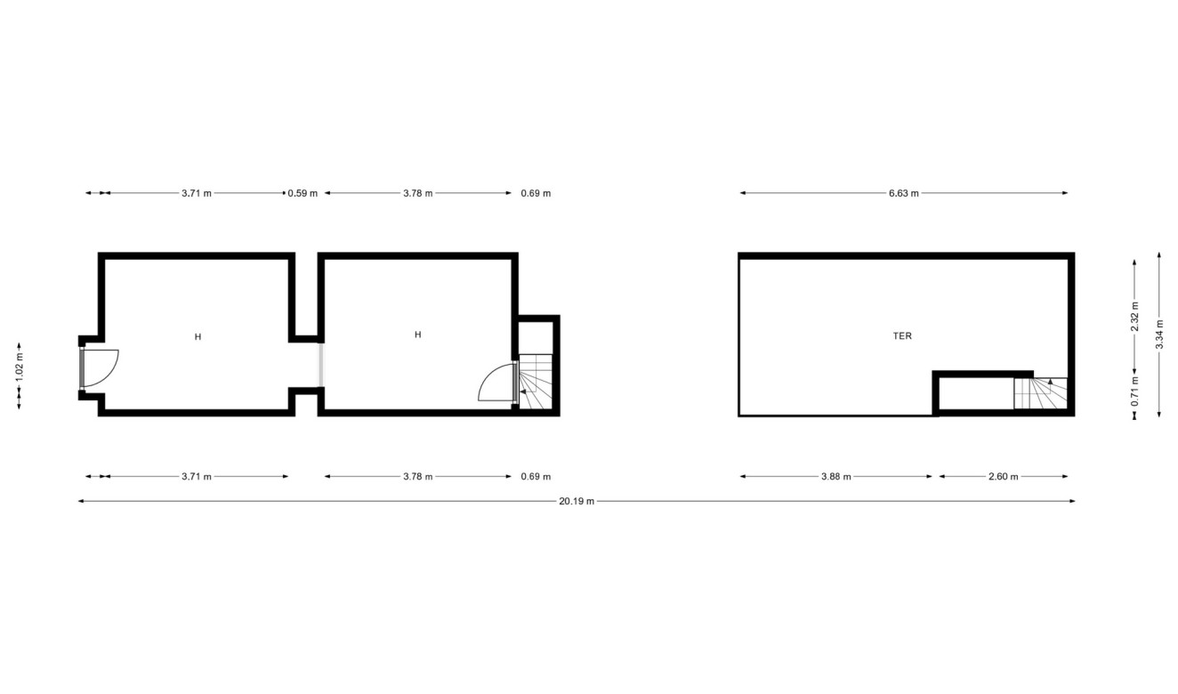
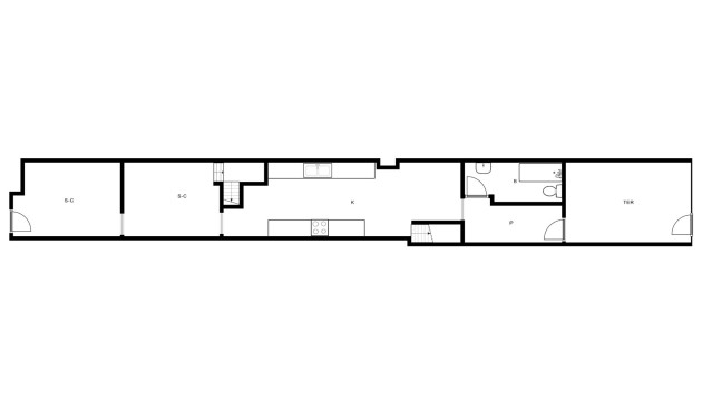
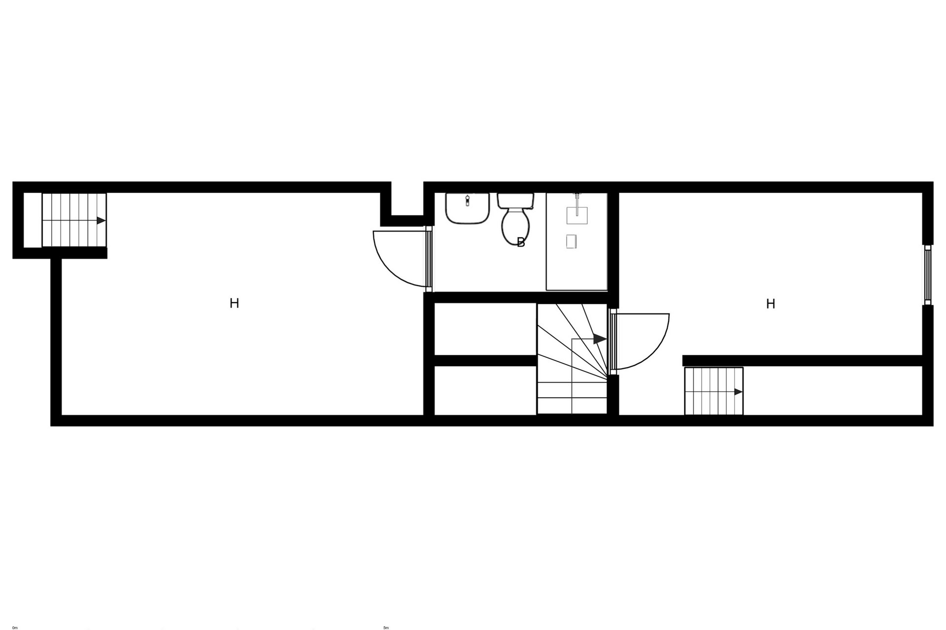
    122m2
  • Terrain

    72m2
  • Chambres

    3
  • Salles de bain

    2

Caractéristiques

Construit:

122m2

Chambres:

3

Nbr. Sdb:

2

Réunions:

1

Salle manger:

1

Cuisine:

Indépendant

Année de construction:

1910

Année de réforme:

2015

Propriété ID:

B-1584-AMBE

Terrain:

72m2

Balcon:

18 m2

Réunions:

1

Armoires encastrées:

3

Orientation:

Sud

Distance à la plage:

9 Km.

Distance à l'aéroport:

90 Km.

Distance aux loisirs:

0,1 Km.

Distance au parcours de golf:

6,9 Km.

Terrasse
Satellite TV
Vue: Montagnes
Parking: Disponible
Pièce de stockage
Cheminée
Cuisine: Ouverte
Meubles: Négociable
Vue: Village
Eau: Eau de ville
Chauffage: Centrale Pellets
Terrasse: toit

Description

Plans

Casas Ambiente

Casas Ambiente

Faire une Demande

WhatsApp Contact par Whatsapp
Responsable del tratamiento: Casas Ambiente Moraira, SL, Finalidad del tratamiento: Gestión y control de los servicios ofrecidos a través de la página Web de Servicios inmobiliarios, Envío de información a traves de newsletter y otros, Legitimación: Por consentimiento, Destinatarios: No se cederan los datos, salvo para elaborar contabilidad, Derechos de las personas interesadas: Acceder, rectificar y suprimir los datos, solicitar la portabilidad de los mismos, oponerse altratamiento y solicitar la limitación de éste, Procedencia de los datos: El Propio interesado, Información Adicional: Puede consultarse la información adicional y detallada sobre protección de datos Aquí.
WhatsApp