Construit
450m2Terrain
800m2Chambres
3Salles de bain
3Piscine
12 x 5 m450m2
3
3
1
1
1
Indépendant
2022
H-1562-AMBi
800m2
12 x 5 m
3
1
3
Sud
1,5 Km.
90 Km.
1 Km.
0,5 Km.
Cette luxueuse villa neuve de trois chambres et trois salles de bains avec des VUES PANORAMIQUES SUR LA MER est située à Benissa, à une courte distance en voiture du centre-ville de Moraira avec son grand choix de restaurants et de bars. De là, vous n'êtes qu'à 5 minutes en voiture des magnifiques criques de Benissa aux eaux turquoises et aux fabuleux bars de plage.
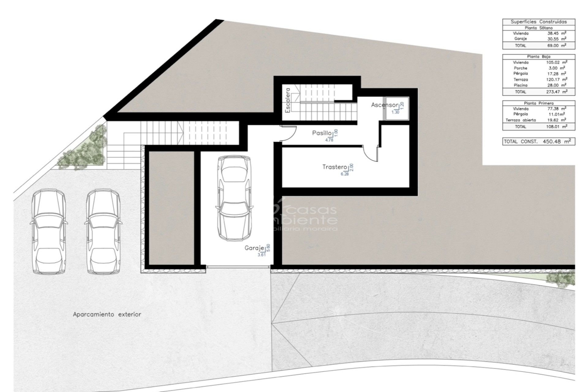
Ce projet sera de style ibizien avec des vues sur la mer à partir de tous les trois niveaux.vous entrez dans la propriété de la route par des portes électriques et sur l'allée il ya un parking pour deux voitures hors route. Sur ce niveau, il y a un garage sécurisé et une salle de stockage et comme il s'agit d'un projet vendu sur plan, vous aurez la possibilité de convertir le sous-sol en deux chambres supplémentaires ou peut-être préféreriez-vous une salle de cinéma de luxe ou une salle de gym à domicile ?
À l'étage supérieur, nous trouvons tous les espaces de vie ouverts qui comprennent une cuisine, une salle à manger et un salon. De grandes portes vitrées s'ouvrent également sur une fabuleuse terrasse, parfaite pour les repas en plein air car elle dispose d'une cuisine d'été intégrée et de beaucoup d'espace pour une table et des chaises. En outre, il y a une chambre à coucher avec une salle de douche et un WC pour les invités à cet étage.
L'étage supérieur est l'endroit où se trouvent toutes les autres chambres. Ici, il y a deux chambres doubles, toutes deux avec salle de douche, et deux terrasses privées qui ont des vues fabuleuses.
Tous les niveaux de cette villa sont desservis par un ascenseur pratique et il y a la climatisation, le chauffage par le sol, les fenêtres à double vitrage avec moustiquaires, les volets électriques et la cuisine est entièrement équipée d'appareils de haute qualité. La cuisine est entièrement équipée d'appareils électroménagers de haute qualité. Il y a également une belle piscine dont vous pourrez profiter !
CARACTÉRISTIQUES PRINCIPALES :
Veuillez nous appeler pour prendre rendez-vous afin de discuter de cette luxueuse villa de construction neuve.