€1.980.000
Wohnfl.
323m2Grundst.
10814m2Schlafzimmer
6Badezimmer
3Schwimmbad
12 x 5 m323m2
6
3
2
1
1
Geschlossen
2024
F-9376-CA
10814m2
200 m2
12 x 5 m
3
1m2
1
Süd
3 Km.
90 Km.
1 Km.
3 Km.
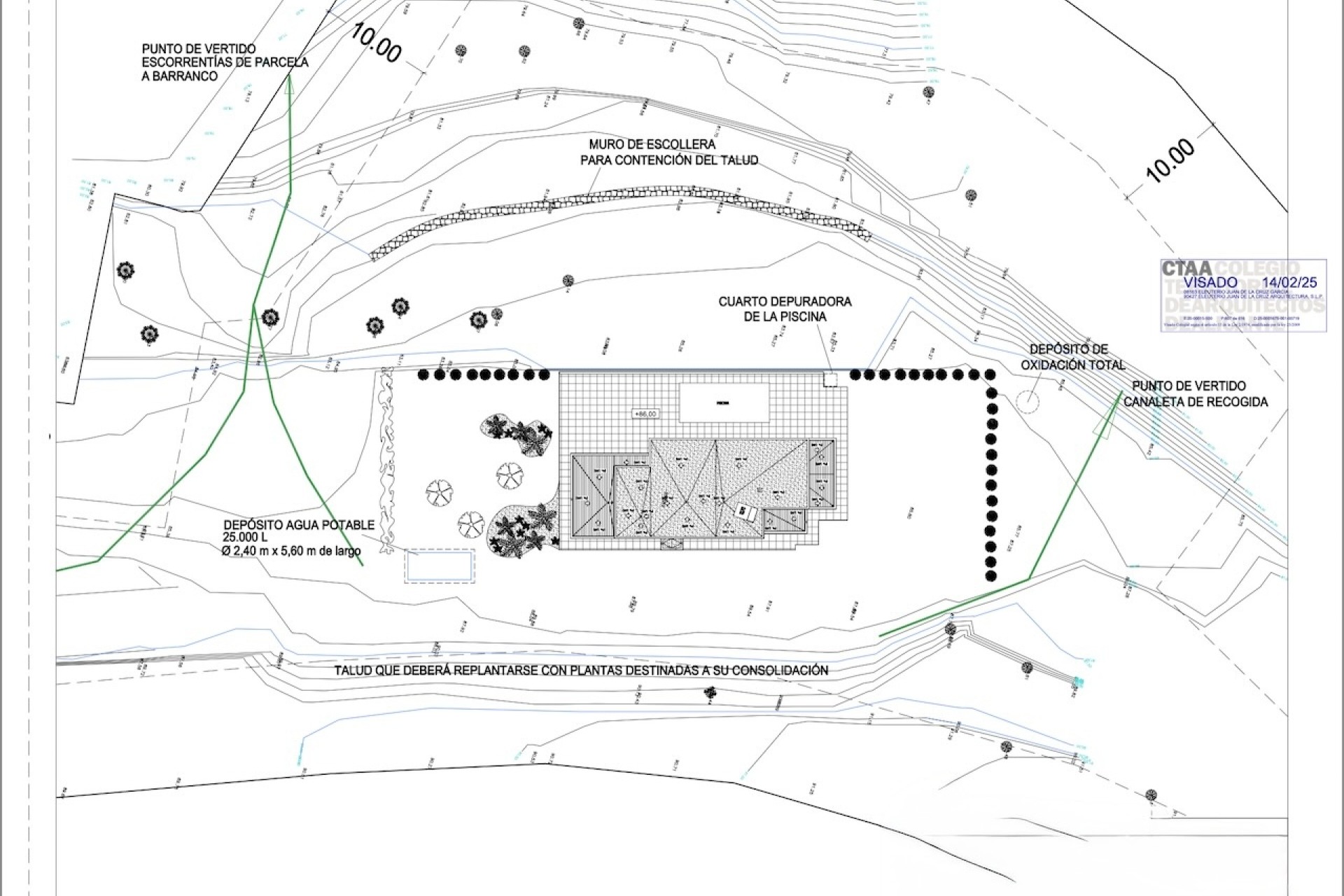
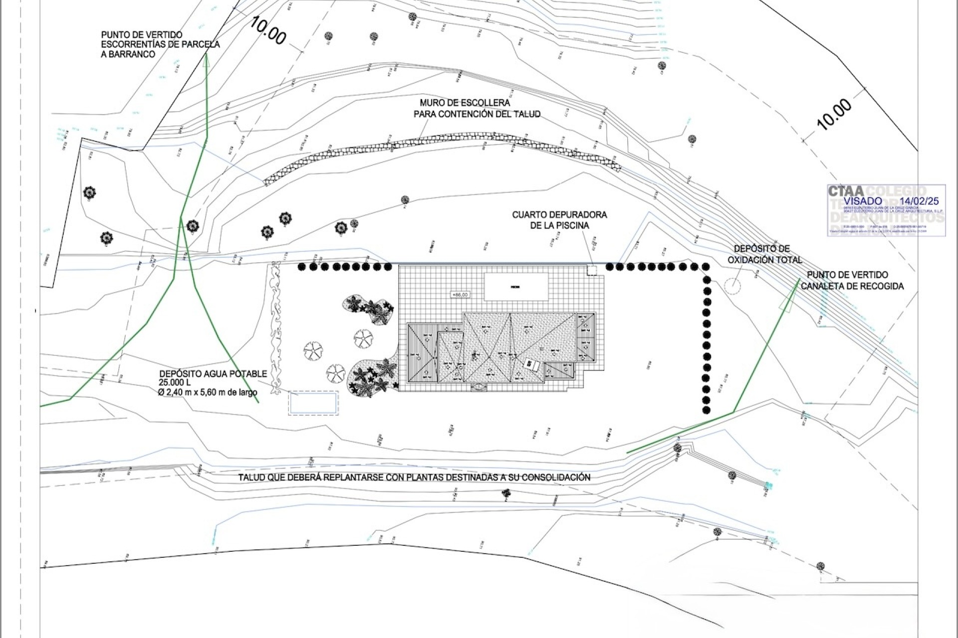
Versteckt in einer ruhigen natürlichen Umgebung, definiert diese außergewöhnliche Neubau-Villa in Benitachell modernes mediterranes Wohnen durch ihre einzigartige Kombination aus großzügigem Platzangebot, Privatsphäre und raffiniertem Design neu. Auf einem beeindruckenden Grundstück von 10.814 m² gelegen, bietet die Immobilie ein ungewöhnliches Gefühl von Freiheit und Abgeschiedenheit – ein wahrer Luxus an der Costa Blanca – und ist dennoch in der Nähe von allen Annehmlichkeiten des täglichen Lebens und der Küste.
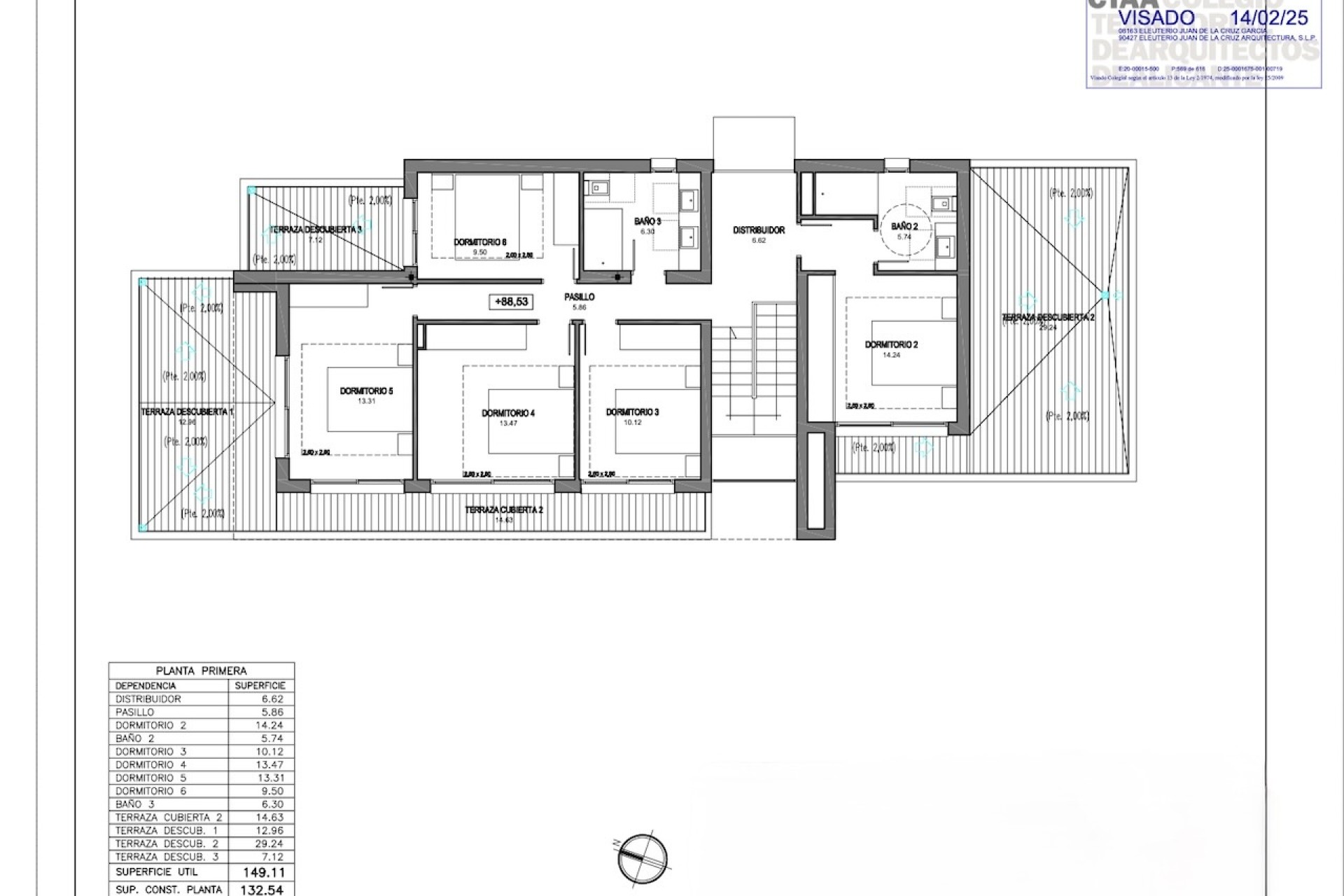
Die Villa wurde unter Berücksichtigung von Qualität und Langlebigkeit konzipiert und erfüllt die höchsten Bau- und Energiestandards (visado 14/02/2025). Mit einer Gesamtfläche von ca. 323 m² erstreckt sich das Haus über zwei ausgewogene Ebenen, die so gestaltet sind, dass sie Komfort, Licht und die Verbindung zur umgebenden Landschaft maximieren.
Bei der Ankunft fällt sofort die Größe des Grundstücks ins Auge. Die Villa ist komplett freistehend und von Grün umgeben, wodurch eine ruhige und private Umgebung entsteht. Im Inneren öffnet sich das Haus zu einem großzügigen Wohnbereich, in dem moderne Architektur und Funktionalität miteinander verschmelzen. Der offene Wohnbereich, der Essbereich und die Küche bilden einen einzigen, fließenden Raum, der sich auf natürliche Weise zu den Außenterrassen hin erweitert. Große Öffnungen lassen die Grenzen zwischen Innen und Außen verschwimmen, sodass der Swimmingpool und die Terrassen zu einem integralen Bestandteil des täglichen Lebens werden.
Das Leben im Freien spielt eine zentrale Rolle bei der Gestaltung dieser Villa. Eine Vielzahl von überdachten und offenen Terrassen bieten einladende Räume zum Entspannen, Essen und Unterhalten während des ganzen Jahres, während der 33 m² große Swimmingpool einen erfrischenden Mittelpunkt inmitten der natürlichen Umgebung bildet. Ob Sie ruhige Morgenstunden genießen oder Gäste empfangen möchten, die Raumaufteilung passt sich mühelos an unterschiedliche Lebensstile an.
Die Villa verfügt über sechs Schlafzimmer, ergänzt durch drei Badezimmer, eine Gästetoilette im Innenbereich und eine separate Außentoilette. Durch diese flexible Aufteilung eignet sich die Immobilie ideal für Familien, Freunde zu Besuch oder Personen, die zusätzlichen Platz für Arbeit oder Freizeit benötigen. Auch die Praktikabilität wurde sorgfältig berücksichtigt, indem eine Garage und ein eigener Waschraum für den täglichen Komfort vorgesehen wurden.
Trotz ihrer ruhigen Lage ist die Umgebung sehr günstig gelegen. Geschäfte, Restaurants und wichtige Dienstleistungen befinden sich in unmittelbarer Nähe, während die Strände und der lebhafte Yachthafen von Moraira mit dem Auto in kurzer Zeit zu erreichen sind und Zugang zum Leben an der Küste, zur Gastronomie und zu Freizeitaktivitäten bieten.
In Bezug auf die Bauweise zeichnet sich die Villa durch ihre Langlebigkeit und Effizienz aus. Eine solide Betonkonstruktion, Ytong-Mauerwerk, hochwertige Dämmung und energieeffiziente Systeme sorgen für ganzjährigen Komfort. Solarenergie für die Warmwasserbereitung reduziert den Energieverbrauch zusätzlich, sodass ein umweltbewusstes und wirtschaftliches Haus entsteht.
Dies ist eine seltene Gelegenheit, eine moderne Villa auf einem ungewöhnlich großen Grundstück zu erwerben, die einen raffinierten Lebensstil bietet, der sich durch Platz, Privatsphäre und die Nähe zu den besten Orten der Costa Blanca auszeichnet.
Erleben Sie die perfekte Mischung aus Luxus, Platz und Privatsphäre – kontaktieren Sie uns noch heute, um einen Besichtigungstermin zu vereinbaren und diese außergewöhnliche Villa zu Ihrem neuen Zuhause zu machen.