461m2
3
2
1
1
1
Independent
2025
H-1892-AMB
716m2
12 x 5 m
2
1
3
Southwest
6 Km.
95 Km.
2,6 Km.
9 Km.
This modern, luxury villa is designed over four levels and has the most amazing SEA VIEWS. Access to the property is via the upper floor, which includes a parking area covered by a sail and an elevator connecting all levels of the home.
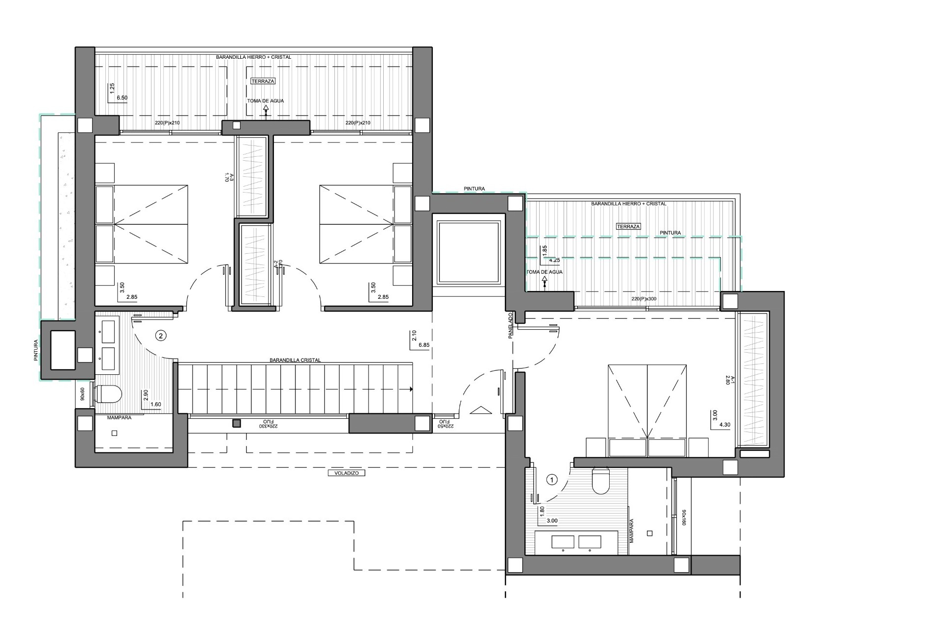
The next floor is dedicated to the bedrooms, each with access to private terraces offering stunning views and abundant natural light.
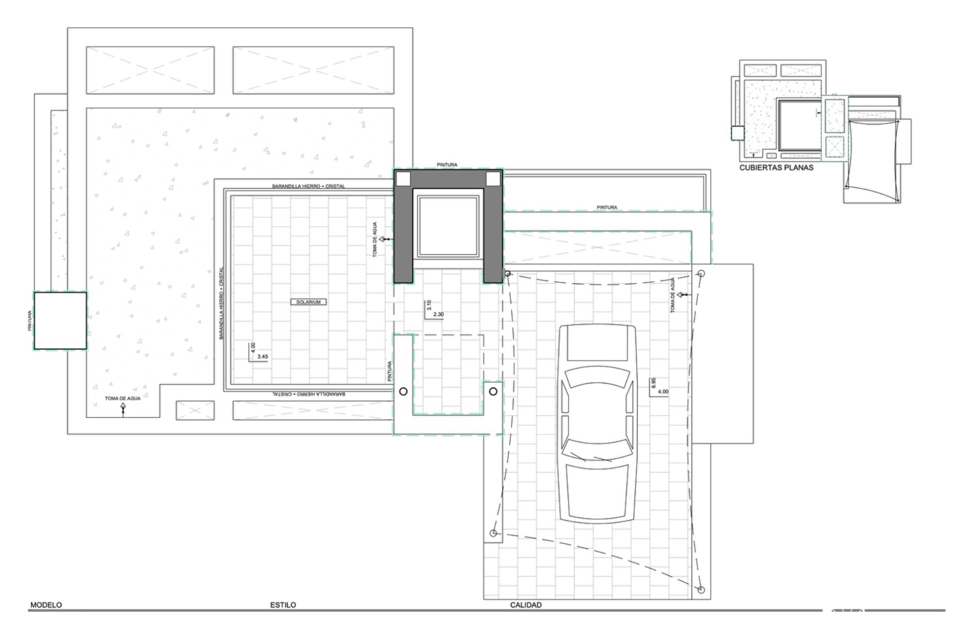
From this level, a stylish staircase leads to the ground floor, where the communal living areas are located. The open-plan living room, dining area, and kitchen connect to a large outdoor terrace with an infinity pool- ideal for enjoying the surroundings.
The property extends down to the basement, where an additional porch provides access to more private outdoor spaces.
A key highlight of this luxury villa is the seamless transition between indoor and outdoor spaces. Large windows integrate the Mediterranean landscape and natural light into the home.
High-quality materials enhance the beauty of the design. Large-format porcelain tile flooring (100x100) contrasts with aged oak stair treads. The bathrooms feature large tiles and decorative walls with backlit designer mirrors, adding elegance. The kitchen, fully integrated into the home's design, includes white base cabinets and oak upper units, with black sink, faucet, and Siemens appliances.
The pool plays a central role in the outdoor layout of this luxury Costa Blanca villa, both as a leisure feature and a visual centerpiece. Strategically placed on the main terrace level, it offers incredible panoramic views. The infinity-edge enhances the sense of merging water and horizon, framing the iconic Peñón de Ifach.
At night, the villa’s lighting enhances its architectural shapes, garden, and pool areas, blending with the Costa Blanca skyline to create an unique atmosphere.
Top-level features include photovoltaic panels, an electric vehicle charging station, a Mitsubishi Electric® heat pump for climate control and hot water, a mechanical ventilation system with heat recovery, underfloor heating, and a smart home system for remote control and energy efficiency.
KEY FEATURES:
A unique opportunity to purchase a contemporary design villa that is completely finished and ready to move into immediately. Call us now to arrange your viewing!