430m2
4
4
2
2
1
Independent
H-1787-AMB
1100m2
90 m2
12 x 5 m
4
2
4
Southeast
3,5 Km.
90 Km.
3,5 Km.
4 Km.
New build Villa with SEA VIEWS in Moraira
An exceptional new build villa with breathtaking sea views, located in one of Moraira’s most desirable areas. This magnificent 3-storey property perfectly balances modern luxury with Mediterranean charm. Just under 3 km from Moraira’s lively town centre, you’ll have easy access to boutique shops, excellent restaurants, charming terraces, and beautiful beaches such as L’Ampolla and the picture-perfect cove of El Portet. Designed for both relaxed living and entertaining, this home is ideal for those seeking year-round sunshine, privacy, and panoramic sea views.
On the ground floor, the villa is thoughtfully divided into living and sleeping areas. The bright, open-plan living-dining room connects seamlessly with a state-of-the-art kitchen, featuring a central cooking and breakfast island. Floor-to-ceiling glass doors lead to a spacious terrace with areas for al fresco dining and a comfortable lounge, all overlooking the shimmering Mediterranean. Adjacent to the kitchen is a handy utility room. In the sleeping wing, you’ll find two elegant bedrooms, each with its own en-suite bathroom and direct access to the pool terrace - the perfect spot to unwind and soak in those captivating views. A guest toilet completes this floor.
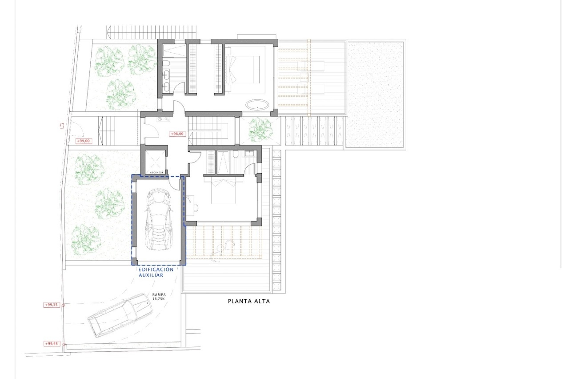
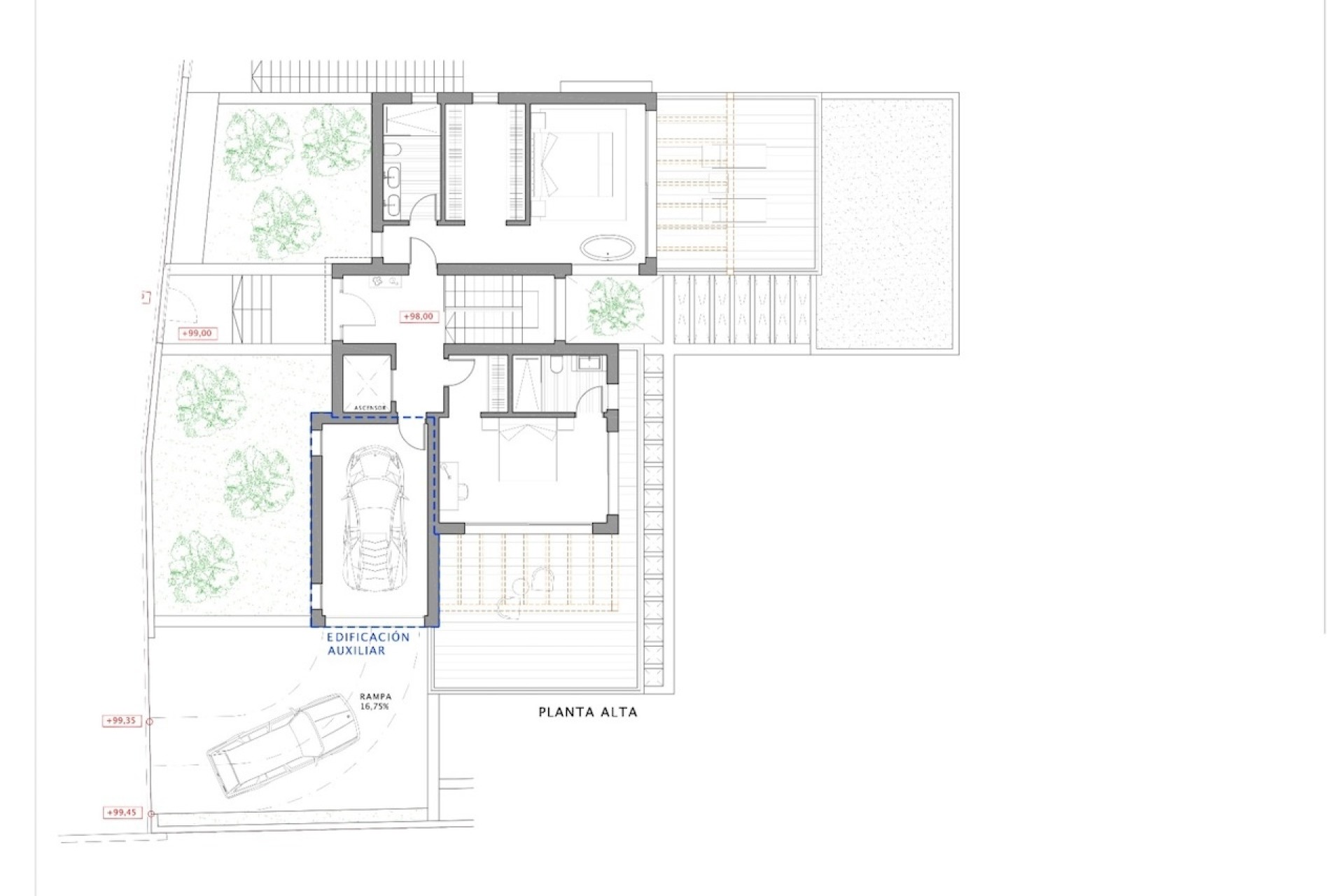
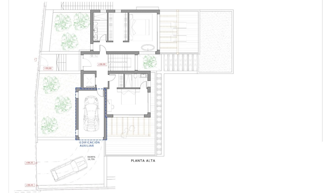
Take the lift or internal staircase to the upper level, where the impressive master suite awaits. This private retreat offers an en-suite bathroom, dressing area, and a large private terrace. A second bedroom with its own en-suite and terrace is also found here, along with direct access to a single-car garage.
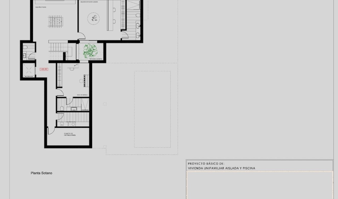
The underbuild provides versatility with a multi-purpose room, a hobby room with en-suite, a dedicated music room with en-suite, a separate guest toilet, and a laundry room - offering endless possibilities for personalisation.
A superb property that delivers style, comfort, and a privileged lifestyle in Moraira.
Key Features:
Interested? Contact us today - we’d be delighted to arrange a private viewing and help you discover everything this stunning villa has to offer.