Construidos
521m2Parcela
1023m2Dormitorios
4Baños
4Piscina
10 x 4 mEstacionamiento
En la parcela521m2
450m2
4
4
1
1
1
2
Abierta
1978
2021
H-1968-AMBE
1023m2
250 m2
10 x 4 m
En la parcela
Reformado
3
1
4
Sur
200 Mts.
90 Km.
200 Mts.
5 Km.
una de las áreas más demandadas de la Costa Blanca. Esta espectacular villa totalmente reformada se encuentra a tan solo 400 metros de la playa y ofrece una combinación perfecta de diseño moderno, confort y ubicación privilegiada cerca del mar.
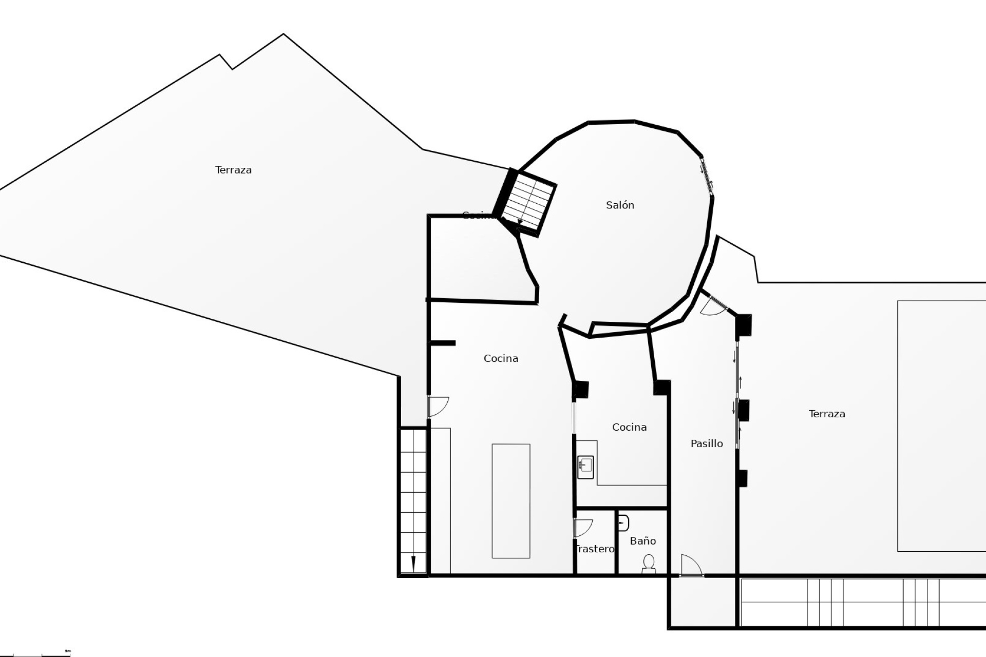
La propiedad cuenta con una superficie construida de 521 m² sobre una amplia parcela de 1.024 m², con orientación sur que garantiza abundante luz natural y sol durante todo el día. Desde la vivienda se disfrutan agradables vistas abiertas a las montañas, creando un entorno tranquilo y privado a pocos minutos del centro de Moraira, su puerto deportivo, restaurantes y servicios.
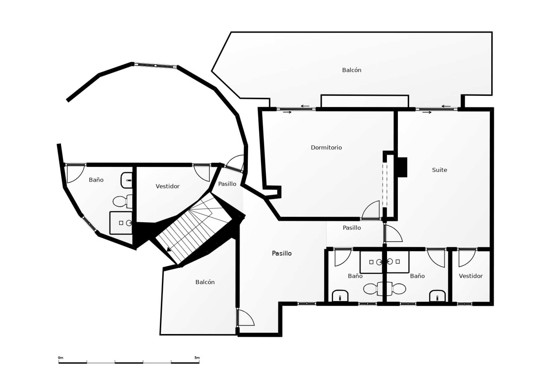
La villa se distribuye en tres plantas y dispone de 4 amplios dormitorios, tres de ellos con baño en suite, además de un cuarto baño completo y un aseo de cortesía. Los espacios de salón y comedor son amplios y luminosos, diseñados para ofrecer comodidad y elegancia, ideales tanto para la vida familiar como para recibir invitados. La cocina moderna está completamente equipada con electrodomésticos de alta gama e incluye una práctica barra de desayuno y una sala destinada a lavandería y trastero.
En la planta baja encontramos una sala para Home Cinema, dos trasteros y una piscina interior climatizada para los meses de invierno.
Además, la vivienda está equipada con calefacción por suelo radiante, pre-instalación de aire acondicionado y ofrece la posibilidad de adquirir los muebles por separado.
En el exterior, la propiedad ofrece varias terrazas soleadas perfectas para disfrutar del estilo de vida mediterráneo, relajarse al aire libre o compartir comidas con familiares y amigos. La terraza delantera ofrece una impresionante piscina infinity de 10x4m. El jardín, cuidadosamente mantenido, ofrece algunos arboles frutales.
Esta casa ofrece aparcamiento para dos vehículos y acceso por puertas eléctricas.
Esta exclusiva villa en Moraira es una oportunidad única para quienes buscan comprar una propiedad de lujo en la Costa Blanca, cerca de la playa y en una de las zonas residenciales más prestigiosas del Mediterráneo. Ideal tanto como residencia permanente, casa de vacaciones o inversión inmobiliaria.
Características:
Contáctanos para más información o para organizar una visita.