Villa de nueva construcción en Finestrat en venta con vistas al mar. Villa adosada en Sierra Cortina con 3 dormitorios, domótica, piscina y bajos costes energéticos. Ideal para vivir o invertir en la Costa Blanca.
En las colinas de Sierra Cortina, Finestrat, se está llevando a cabo un nuevo proyecto residencial con modernas villas adosadas con vistas al mar en dirección a Benidorm. En esta primera fase se construirán 11 villas adosadas.
Descripción
Las villas de nueva construcción han sido diseñadas con un concepto bioclimático y orientadas al bajo consumo energético. Los grandes ventanales proporcionan mucha luz natural y conectan el interior con las terrazas y el jardín.
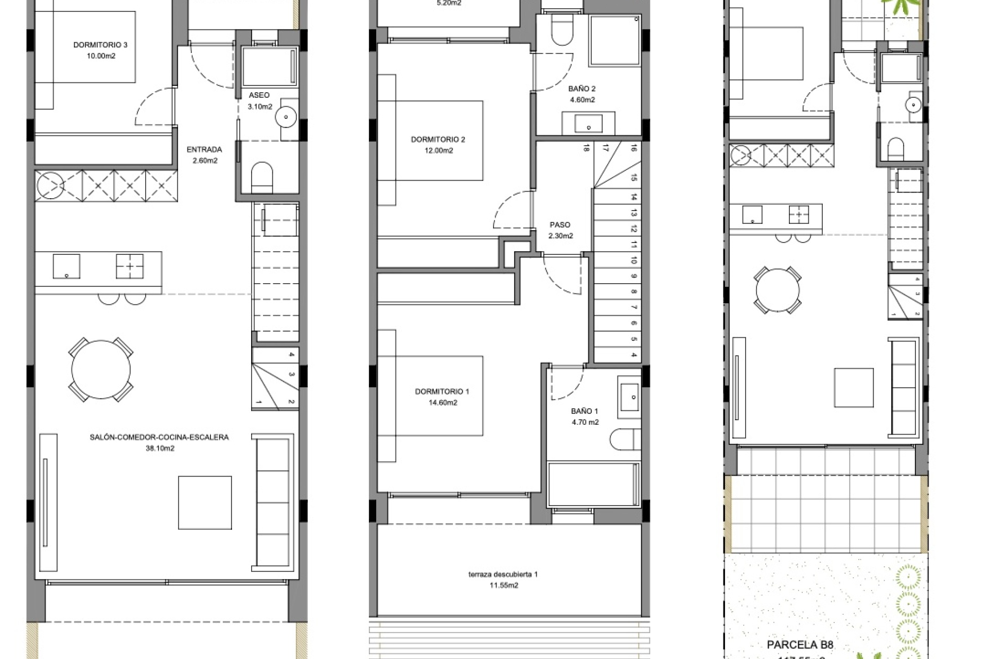
En la planta baja se encuentran el salón-comedor, una cocina abierta con electrodomésticos Bosch o equivalentes, un dormitorio y un cuarto de baño. A través de la escalera interior se accede a la planta superior, con dos dormitorios, cada uno con cuarto de baño en suite y terraza privada.
Las viviendas se construyen con materiales de alta calidad y están equipadas con domótica, persianas eléctricas en los dormitorios, puerta de seguridad y preinstalación de aire acondicionado por conductos. En el exterior, cada vivienda dispone de un jardín con césped, árboles y sistema de riego. El complejo cuenta además con una piscina comunitaria y una zona de juegos para niños.
Características
Nueva construcción en Sierra Cortina, FinestratVistas al mar en dirección a Benidorm3 dormitorios, 3 bañosDiseño bioclimáticoPreinstalación de aire acondicionadoPiscina comunitariaEntrega en aproximadamente 24 mesesPrecio de salidaPor qué visitar esta villa
Vivienda moderna y asequibleExcelente calidadBajos costes energéticosUbicación céntricaEstas villas en venta en Finestrat, Costa Blanca, son una opción asequible para aquellos que buscan una vivienda nueva y moderna.
Póngase en contacto con nuestra oficina para obtener más información y conocer la situación actual en cuanto a disponibilidad y precios.