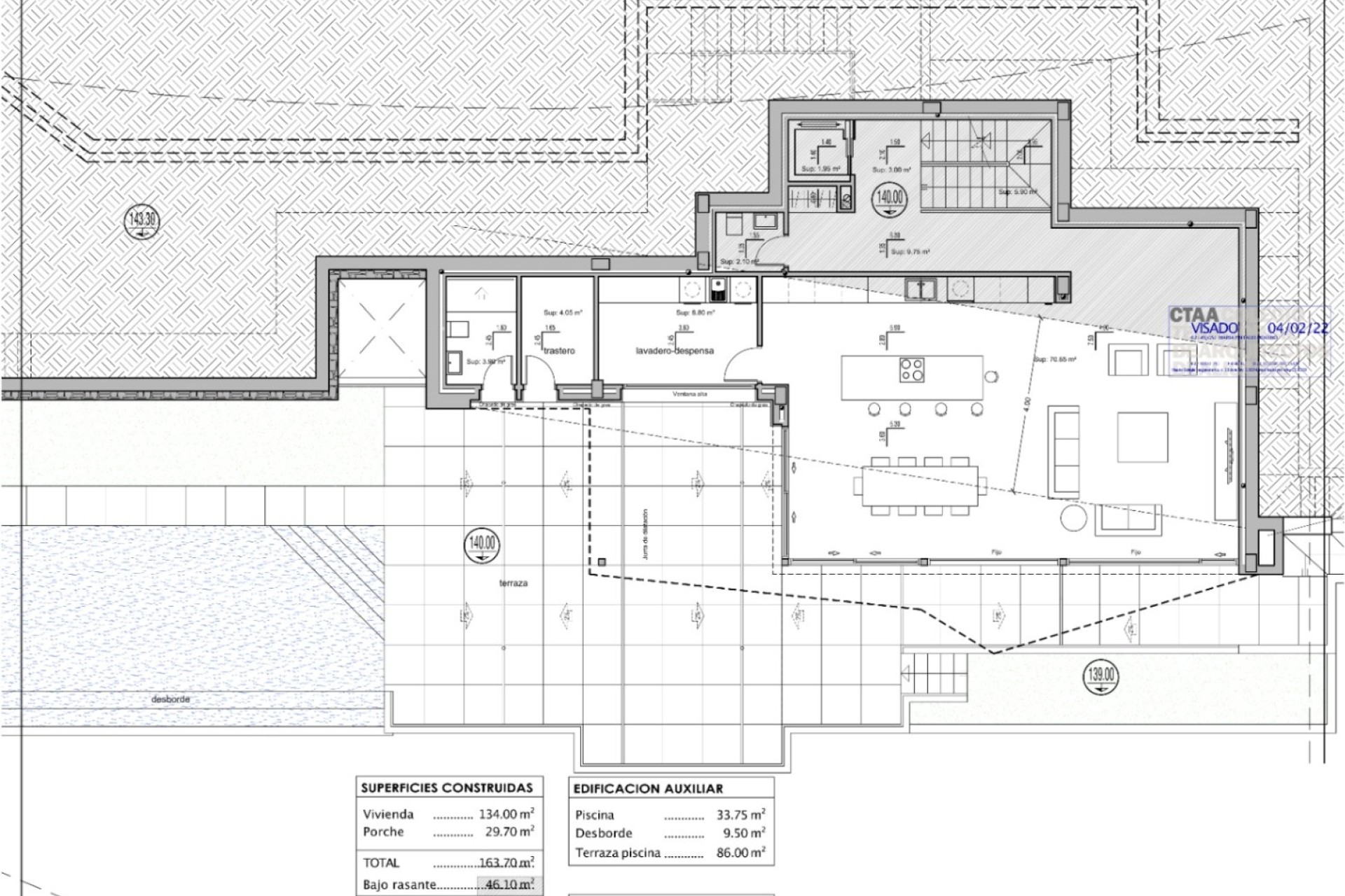
Proyecto de villa de nueva construcción con vistas al mar, situada en la exclusiva urbanización Raco de Galeno, en Benissa Costa, que combina una arquitectura moderna con un diseño funcional. DescripciónLa villa ha sido diseñada con un estilo claro y contemporáneo, con líneas rectas. Los grandes ventanales proporcionan mucha luz natural y una conexión abierta con el entorno verde.La vivienda tiene una distribución abierta en la que el salón, el comedor y la cocina se fusionan a la perfección. Los materiales utilizados —cerámica clara, madera oscura y tonos neutros— aportan tranquilidad y coherencia. Los dormitorios son amplios y ofrecen acceso directo a las terrazas. Los dormitorios principales tienen su propio cuarto de baño y terraza privada. La cocina está equipada con electrodomésticos modernos (Bosch o equivalentes) y tiene una distribución funcional. Toda la villa respira lujo, comodidad y elegancia. Se han utilizado acabados de alta calidad y materiales de primera clase. En el exterior, la vivienda cuenta con una amplia piscina, jardín y varias terrazas.Características Calefacción por suelo radianteAire acondicionadoBomba de calorSistema domóticoDoble acristalamientoPersianas eléctricas en los dormitoriosDucha exteriorSistema de seguridadPor qué visitar esta villaUbicación en una de las zonas más exclusivas de Benissa.Con licencia; entrega posible en 18 mesesEficiente energéticamente y sostenibleGran parcelaUna villa moderna y sostenible en venta en Benissa con un diseño bien pensado y acabados de alta calidad. Reserve hoy mismo una visita y descubra las posibilidades de vivir en Raco de Galeno.El precio mostrado no incluye impuestos ni gastos de compra / La oferta está sujeta a errores, cambios de precio, disponibilidad, omisión y/o retirada del mercado sin previo aviso / Muebles y contenidos según acuerdo personalizado y no según las fotos de la presentación