Construidos
158m2Parcela
800m2Dormitorios
4Baños
3Piscina
12 x 5 m158m2
4
3
H-9041-CA
800m2
12 x 5 m
Villa con apartamento de invitados en venta en La Cometa III, Calpe
Villa independiente con vistas panorámicas y apartamento de invitados en zona tranquila cerca del centro y la playa
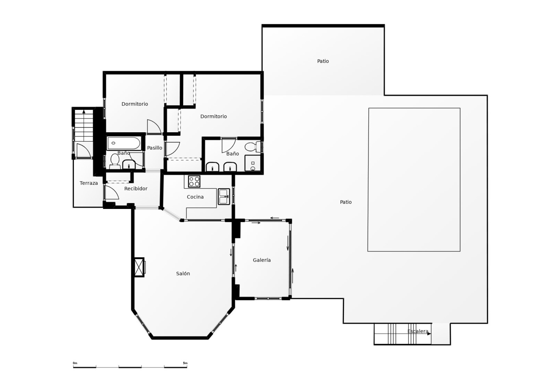
Esta villa independiente con apartamento para invitados se encuentra en la tranquila urbanización de La Cometa III en Calpe, en una parcela orientada al suroeste con vistas a la sierra de Bernia. Construida por el propietario actual, la vivienda se encuentra en su estado original. Está ubicada a menos de cinco minutos en coche del centro de Calpe y de la playa.
La planta superior alberga la vivienda principal, con un salón que conecta con un luminoso invernadero con vistas a la piscina y cocina abierta. Hay dos dormitorios, uno con baño en suite, y otro baño con acceso independiente.
La planta baja está distribuida como un apartamento independiente, con salón, cocina, dormitorio, baño y una estancia adicional actualmente utilizada como sala de práctica. Esta estancia dispone de entrada independiente, aseo propio y acceso al lavadero/trastero.
Dispone de sistema fotovoltaico (2024), aire acondicionado, radiadores eléctricos, chimenea, bomba de calor para agua caliente, doble acristalamiento, mosquiteras, paredes aisladas y sistema de filtrado de agua.
En el exterior hay una terraza cubierta, una terraza soleada alrededor de la piscina salina automática y un jardín frondoso con árboles frutales, plantas mediterráneas y un amplio huerto de hierbas. El acceso para coches conduce a un carport con espacio para dos vehículos, con acceso sin escaleras a la vivienda principal.
Características principales
La vivienda estará disponible a finales de 2026 o principios de 2027. No obstante, la escritura pública puede realizarse con anterioridad, lo que convierte esta propiedad en una opción atractiva para inversores.
Solicite una visita y descubra el potencial de esta versátil villa en Calpe.