€2.300.000
Wohnfl.
350m2Grundst.
913m2Schlafzimmer
4Badezimmer
4Schwimmbad
12 x 5 m350m2
4
4
1
1
1
Geschlossen
H-1923-AMB
913m2
123 m2
12 x 5 m
2
1
4
Süd
2 Km.
90 Km.
0,5 Km.
2,2 Km.
Luxusvilla mit Meerblick in Moraira
Entdecken Sie den Charme dieser spektakulären Villa auf einem 912 m² großen Grundstück, nur wenige Minuten von den wunderschönen Stränden und dem lebendigen Zentrum von Moraira entfernt. Diese Residenz vereint moderne Architektur, Komfort und atemberaubende Meerblicke und bietet so ein außergewöhnliches Wohnerlebnis.
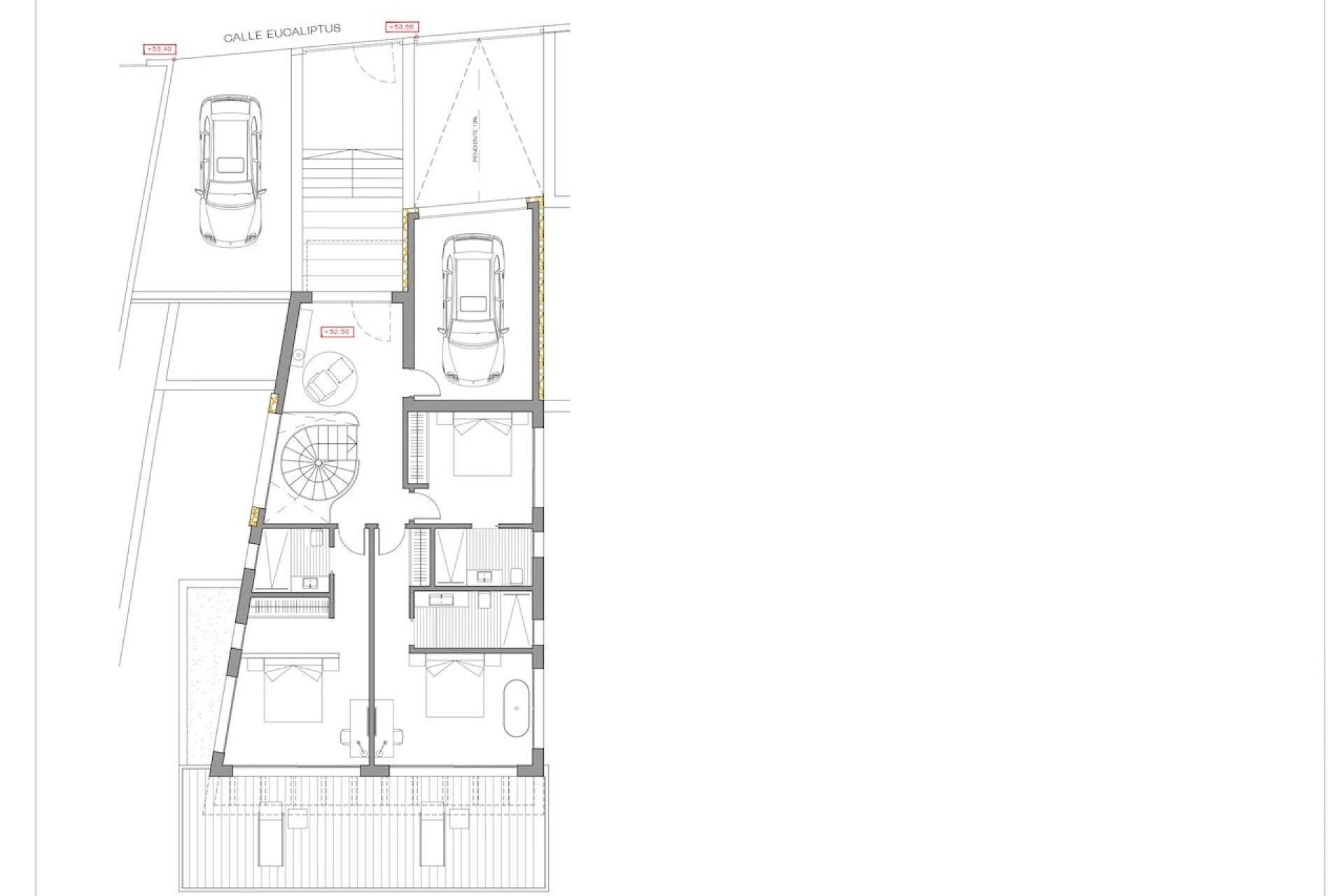
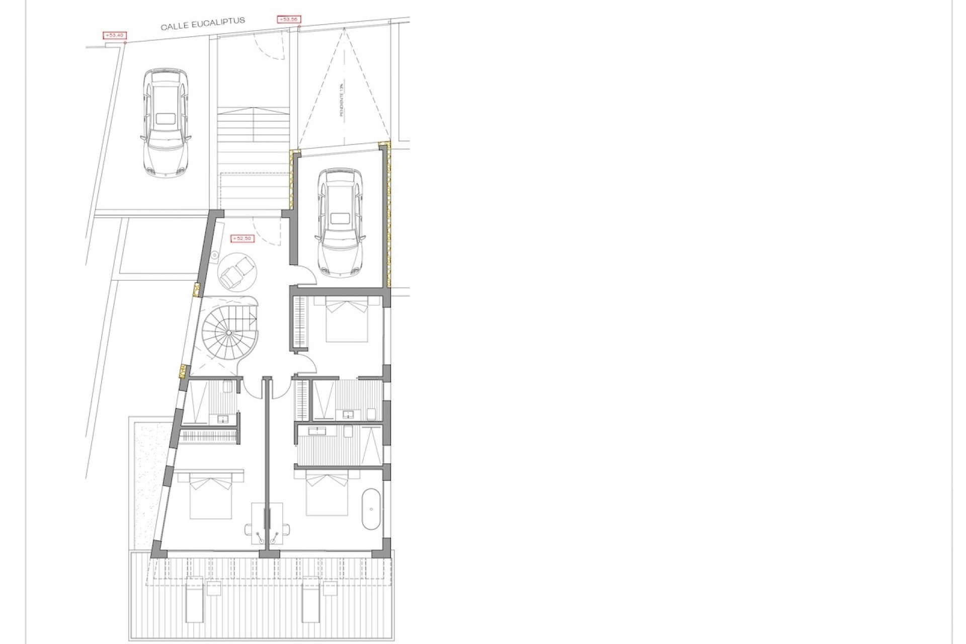
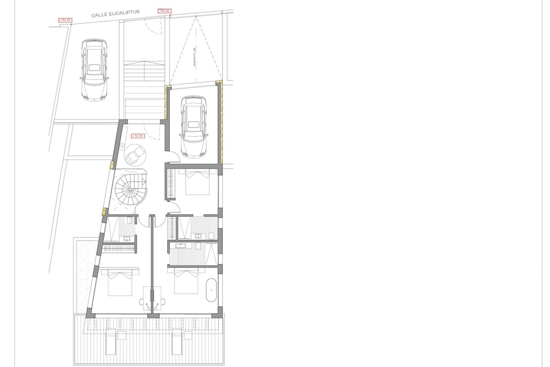
Die Villa erstreckt sich über zwei Etagen, die sowohl funktional als auch stilvoll gestaltet sind. Im Obergeschoss befindet sich der Haupteingang, der zu drei großzügigen Schlafzimmern mit jeweils eigenem Bad führt. Zwei dieser Suiten verfügen zudem über einen privaten Balkon mit herrlicher Aussicht. Eine Garage und zusätzliche Außenstellplätze bieten hier weiteren Komfort.
Eine elegante Wendeltreppe führt ins Untergeschoss, wo ein großes, lichtdurchflutetes Wohn-Esszimmer mit offener Küche den Mittelpunkt bildet. Die Küche mit Kochinsel und Siemens-Geräten öffnet sich direkt zur Terrasse. Auf dieser Ebene befinden sich außerdem ein Gäste-WC, ein Heimkino, ein Hauswirtschaftsraum sowie ein zusätzliches Schlafzimmer mit eigenem Bad.
Die Außenbereiche sind für Entspannung und Unterhaltung geschaffen. Ein spektakulärer Infinity-Pool (11,5 x 4 m) verschmilzt mit der großzügigen Terrasse und dem BBQ-/Loungebereich – der perfekte Ort, um die Panoramablicke auf das Mittelmeer und die malerische Landschaft Morairas zu genießen.
Besondere Merkmale:
• Top-Lage nahe dem Zentrum und den Stränden von Moraira
• Panoramablick auf das Meer
• Grundstück 912 m², bebaute Fläche 350 m², Wohnfläche 292 m²
• 4 Schlafzimmer und 4 Bäder plus 1 Gäste-WC
• Offenes Wohnen mit Küche und Kochinsel
• Infinity-Pool (11,5 x 4 m), große Terrasse und BBQ-Bereich
• Heimkino und Hauswirtschaftsraum
• Garage und Außenstellplätze
• Technal-Fenster mit Sicherheitsglas
• Voll ausgestattete Siemens-Küche
• Bäder und Armaturen von Roca
• LED-Beleuchtung im gesamten Haus
• Aerothermie-System für Warmwasser und Fußbodenheizung
• Klimaanlage über Kanäle (warm/kalt)
• Vorinstallation für Solarpaneele und Sicherheitssysteme
• Einbauschränke, elektrische Rollläden, Innenalarm
Diese Villa vereint Luxus, Qualität und Komfort in einer der begehrtesten Lagen der Costa Blanca. Kontaktieren Sie uns noch heute für weitere Informationen.