Villen · Neubauten Benissa Benissa · Alicante (Costa Blanca)

Villen · Neubauten Benissa Benissa · Alicante (Costa Blanca)

Hauptmerkmale

Villa zum Verkauf in Benissa, Raco de Galeno

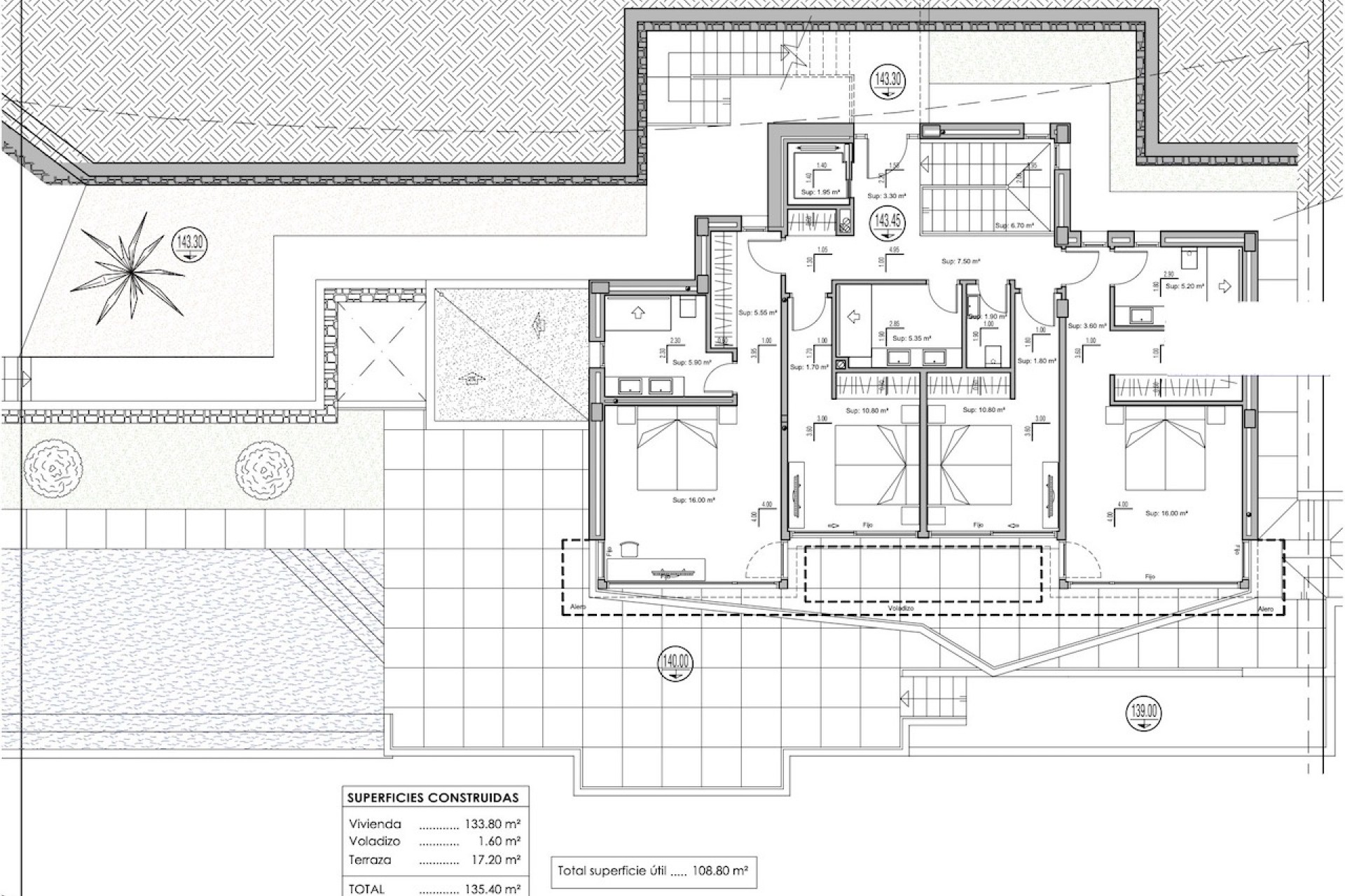
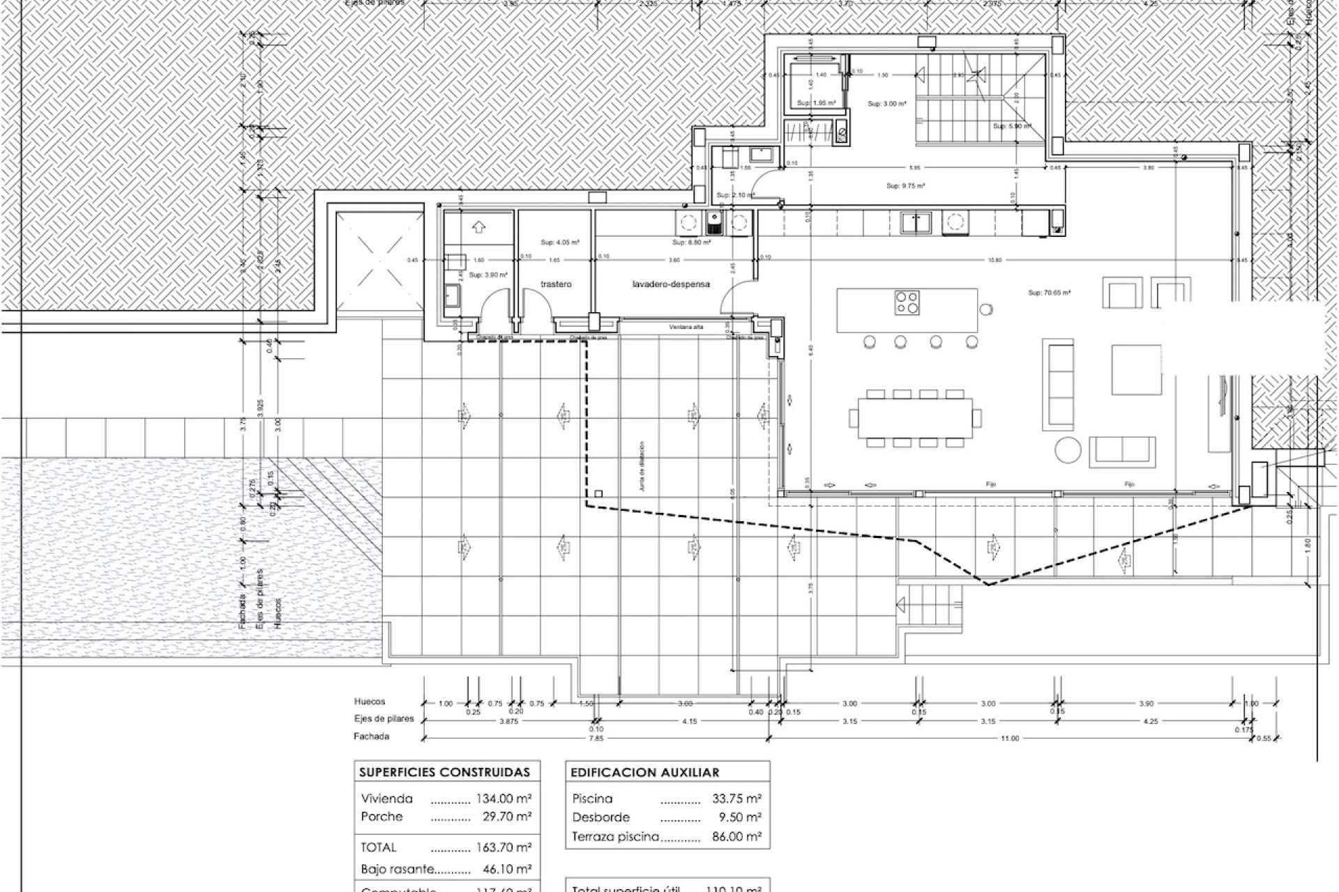
  • Wohnfl.

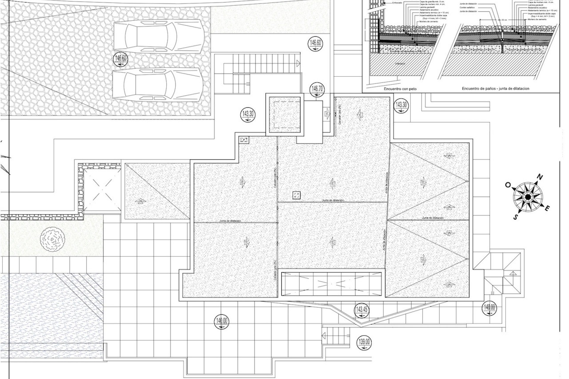
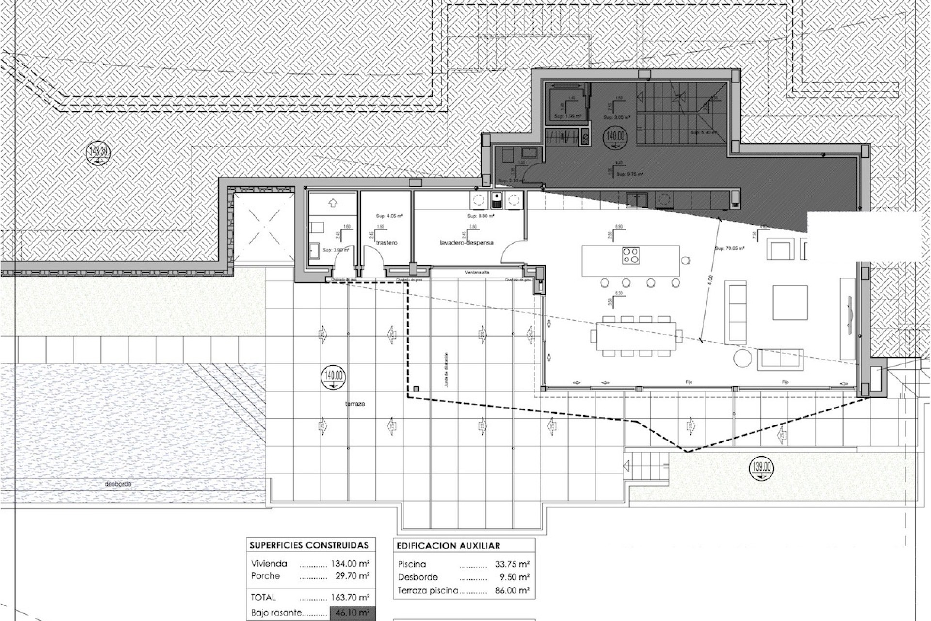
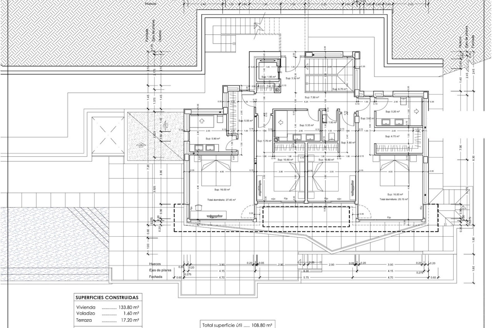
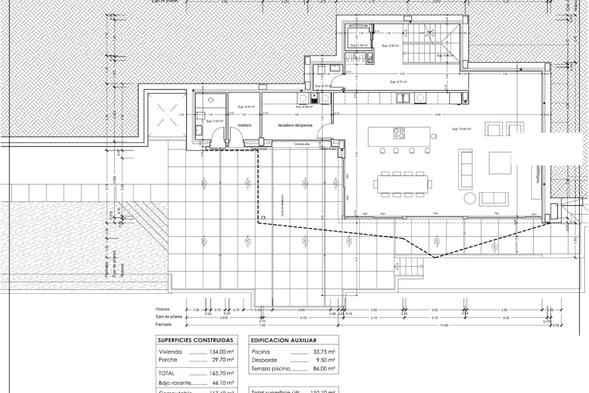
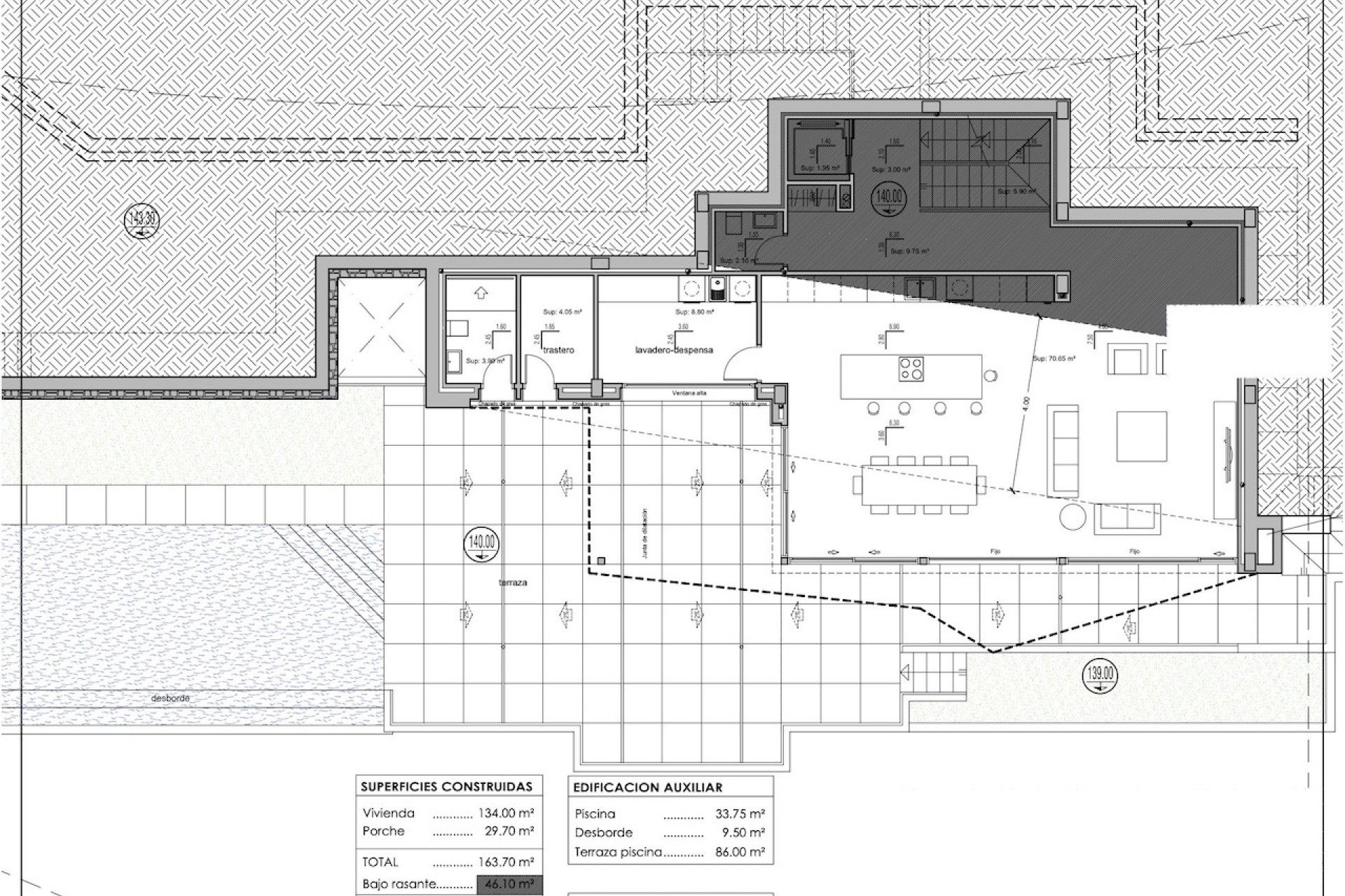
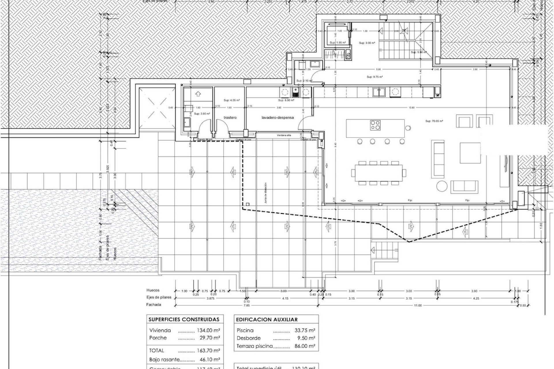
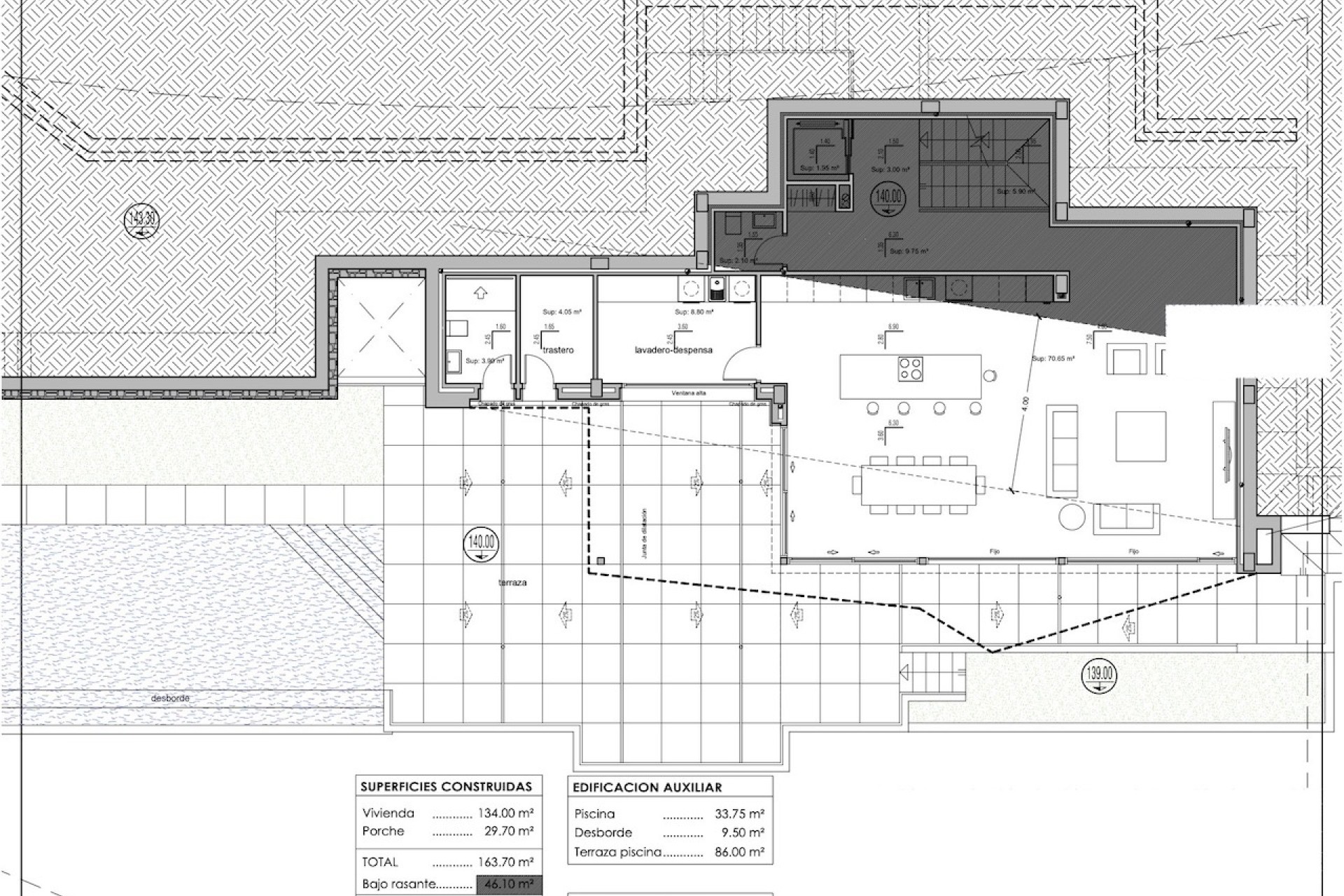
    436m2
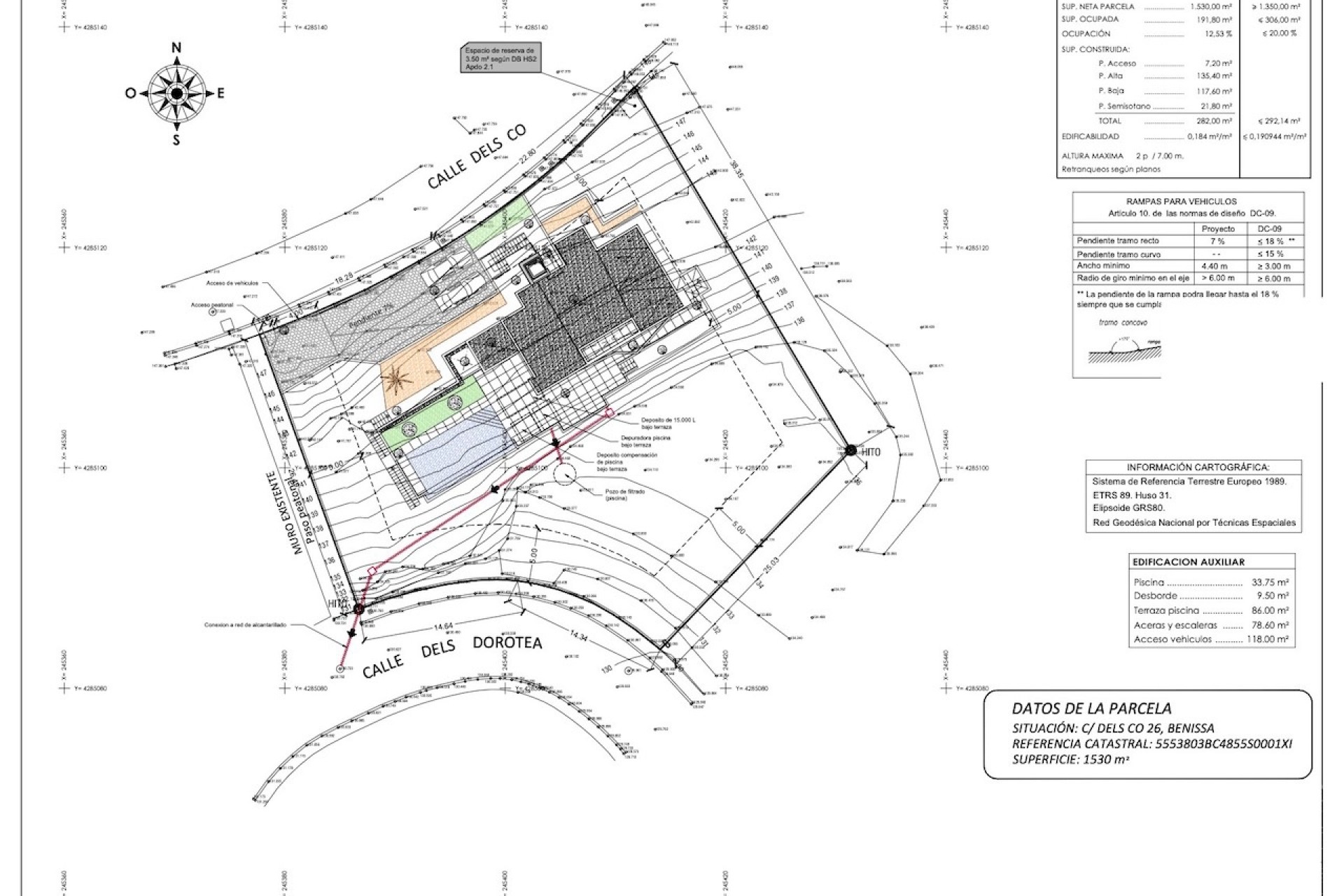
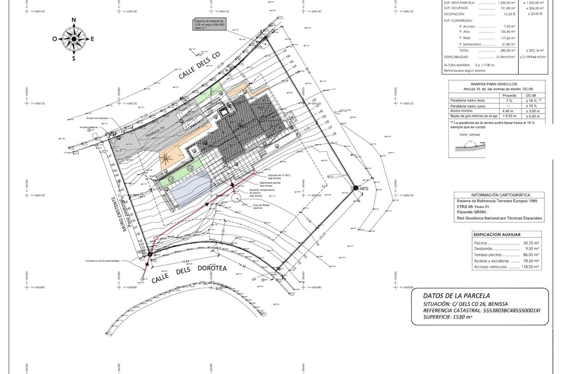
  • Grundst.

    1530m2
  • Schlafzimmer

    4
  • Badezimmer

    5
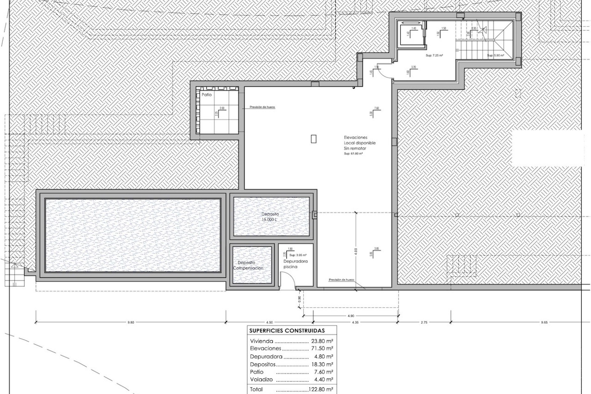
  • Schwimmbad

    12 x 5 m

Charakteristik

Bebaute Fläche:

436m2

Schlafzimmer:

4

Badezimmer:

5

Sitzungen:

1

Esszimmer:

1

Küchen:

Geschlossen

Eigentum ID:

H-1905-AMB

Grundstück:

1530m2

Terrasse:

350 m2

Schwimmbad:

12 x 5 m

Parkmöglichkeiten:

2

Sitzungen:

1

Einbauschränke:

4

Himmelsrichtung:

Süd

Entfernung zum Strand:

2,8 Km.

Entfernung zum Flughafen:

86 Km.

Entfernung Dienstleistungen:

1,5 Km.

Entfernung zum Golfplatz:

8,6 Km.

Garten: Einfache Wartung
Terrasse
Alarmanlage
Boden Heizung
Fenster: Doppelverglasung
Klimaanlage
Satellite TV
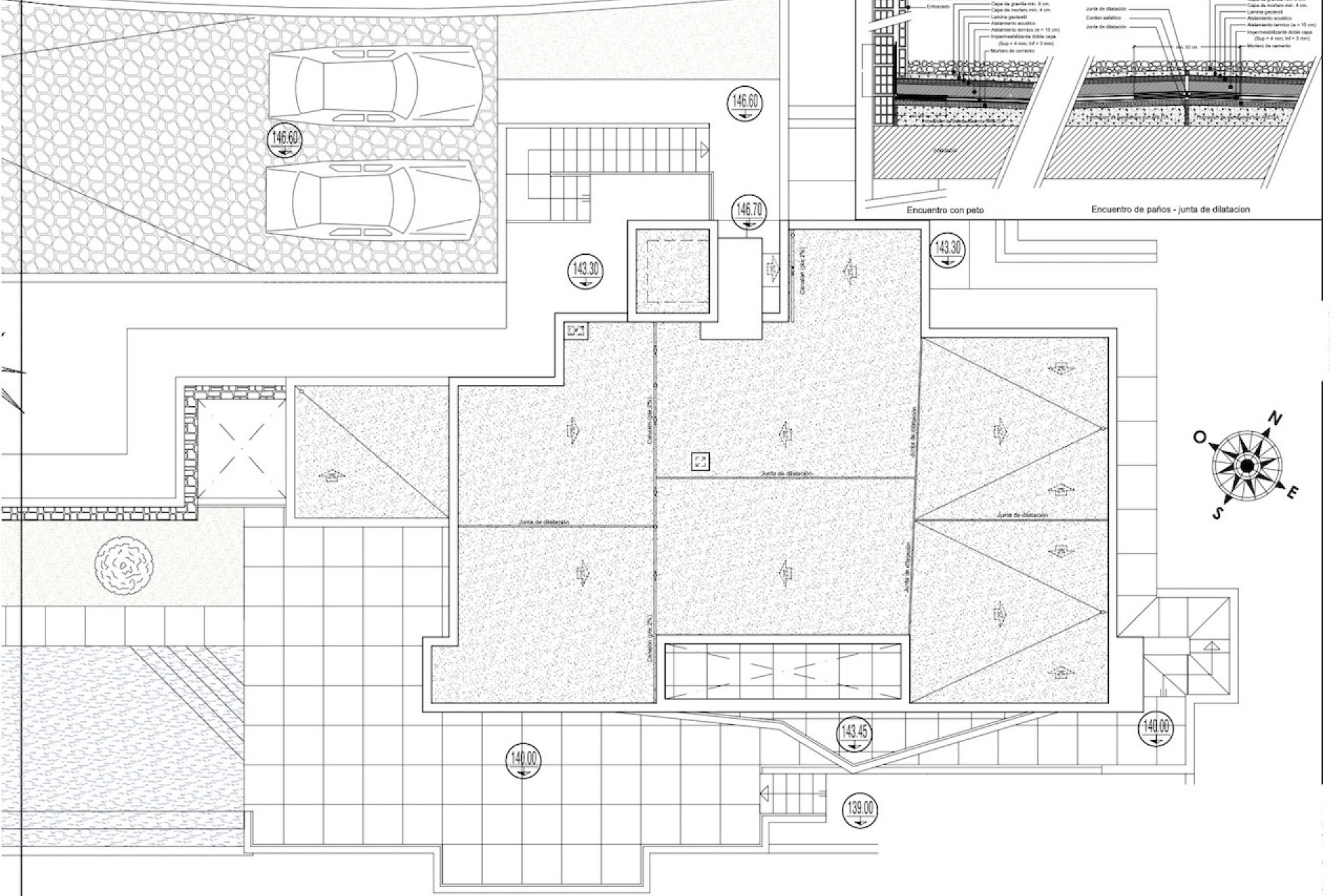
Pool: Privat 8 x 4
Blick: Panorama Meer
Pool: Infinity
Parking: Verfügbar
Internet verfügbar
Terrasse: Überdachte
Abstellkammer
Waschküche
Küche: Offen
Aussendusche
Wasser: Wasseranschluss
Küche: Voll ausgestattet
Fenster: Elektrische Rollläden
Fenster: Moskitonetze

Beschreibung

Casas Ambiente

Casas Ambiente

Eine Anfrage stellen

WhatsApp Kontakt durch WhatsApp
Responsable del tratamiento: Casas Ambiente Moraira, SL, Finalidad del tratamiento: Gestión y control de los servicios ofrecidos a través de la página Web de Servicios inmobiliarios, Envío de información a traves de newsletter y otros, Legitimación: Por consentimiento, Destinatarios: No se cederan los datos, salvo para elaborar contabilidad, Derechos de las personas interesadas: Acceder, rectificar y suprimir los datos, solicitar la portabilidad de los mismos, oponerse altratamiento y solicitar la limitación de éste, Procedencia de los datos: El Propio interesado, Información Adicional: Puede consultarse la información adicional y detallada sobre protección de datos Aquí.
WhatsApp